Start & Co says ..
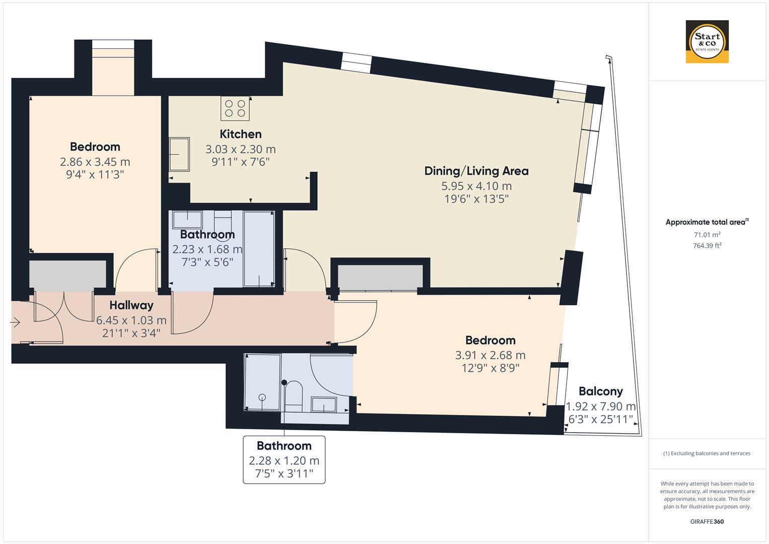
AVAILABLE FURNISHED AS A TURN KEY INVESTMENT | NO ONWARD CHAIN | 750 sq ft Second Floor 2 bedroom apartment in a convenient central town location walking distance to a handful of popular beaches, with gated parking and terrace enjoying the late afternoon and evening sun.
Property Oracle says ..
Therefore, we give this property 6 / 10. *Disclaimer: This is our option and does constitute a recommendation or financial advice. Do your own research. *
- Price
- 7
- Condition
- 8
- Location
- 7
- Land
- 3
- Bedrooms
- 2
- Bathrooms
- 2
- Sqft (est)
- 764.35
The heatmap indicates the level of crime in the area. The color of the heatmap indicates the crime severity and recency.
Metrics Year-on-Year
- Average area value
- 380,500.00 £Decreased by 7.95 %
- Est sale value
- 233,126.75 £Increased by 0.66 %
- Average area rental value
- 1,550.00 £/moIncreased by 31.91 %
- Est letting value
- 764.35 £/mo
- Est rental Yield
- 4.89 %Increased by 43.40 %
- Crime Rate
- 47.00 %Unchanged by 0.00 %
from 413,363.00 £
from 231,598.05 £
from 1,175.00 £/mo
from 0.00 £/mo
from 3.41 %
from 47.00 %
Agent Activity
Start & Co created the listing.
Nearby Schools
| Name | Type | Ofsted | Distance |
|---|---|---|---|
| Newquay Children'S Centre | Children's Centre | 0.15 KM | |
| Trenance Learning Academy | Academy Converter | 0.18 KM | |
| Newquay Junior Academy | Academy Converter | Good | 0.75 KM |
| The Bishops Cofe Learning Academy | Academy Converter | Good | 1.16 KM |
| Newquay Tretherras | Academy Converter | Good | 2.40 KM |
Images
Nearby Streets
| Name | Average Price | Average Sqft | Distance |
|---|---|---|---|
| Fairview Terrace | £ 385,000 | 0 | 0.00 KM |
| Seymour Avenue | £ 0 | 0 | 0.00 KM |
| Springfield Road | £ 373,000 | 0 | 0.00 KM |
| The Old Tramway | £ 617,400 | 0 | 0.00 KM |
| Mayfield Road | £ 150,000 | 0 | 0.00 KM |
Nearby Transport
| Name | NLC | TLC | Distance |
|---|---|---|---|
| Newquay | 3523 | NQY | 0.45 KM |
| Quintrell Downs | 3531 | QUI | 5.67 KM |
Nearby Listings
| Address | Price | Type | Score | Distance |
|---|---|---|---|---|
| Marina Court, Mount Wise, Newquay | £ 125,000 | BUY | 7 / 10 | 0.00 KM |
| Mount Wise, Newquay | £ 270,000 | BUY | 6 / 10 | 0.00 KM |
| Mount Wise, Newquay | £ 285,000 | BUY | 7 / 10 | 0.01 KM |
| Mount Wise, Newquay, TR7 | £ 175,000 | BUY | 6 / 10 | 0.01 KM |
| Apart-Hotel Investment Opportunity | £ 40,000 | BUY | 6 / 10 | 0.02 KM |
Nearby Properties
| Address | Price | Distance |
|---|---|---|
| 6 Mount Wise | £ 95,000 | 0.01 KM |
| 12 Mount Wise | £ 335,000 | 0.02 KM |
| 16 Berry Road | £ 195,000 | 0.05 KM |
| 26 Berry Road | £ 285,000 | 0.06 KM |
| 15 Grosvenor Avenue | £ 272,500 | 0.07 KM |