Blakeley Road, Raby Mere
By Lesley Hooks Estate Agents
£ 450,000
Reviews
3 out of 5 stars
Lesley Hooks Estate Agents says ..
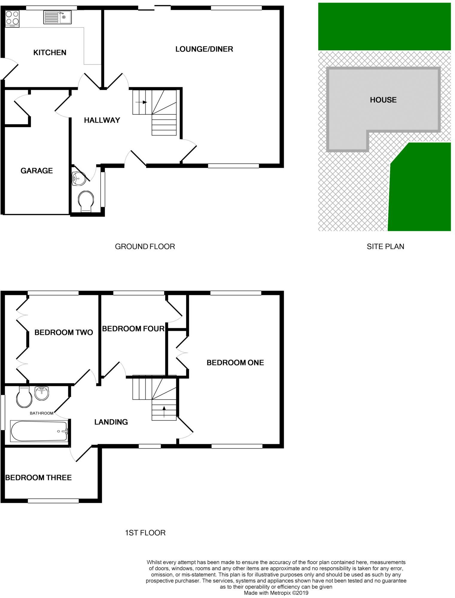
HOLE IN ONE! With views across Bromborough Golf Course, this superb detached home offers entrance hall, downstairs wc, lounge through dining room, kitchen breakfast room, four bedrooms, bathroom, driveway, garage and a most divine rear garden. Tax Band E. NO CHAIN
Property Oracle says ..
This is a detached property located on Blakeley Road in Raby Mere, Wirral. It features four bedrooms and one bathroom. While the property benefits from a well-maintained garden and a desirable location with access to schools and transportation, the interior is in need of renovation and modernisation. The list price of £450,000 is slightly above the average for the area, considering the condition of the property.
Therefore, we give this property 6 / 10. *Disclaimer: This is our option and does constitute a recommendation or financial advice. Do your own research. *
- Price
- 6
- Condition
- 5
- Location
- 7
- Land
- 8
- Bedrooms
- 4
- Bathrooms
- 1
- Sqft (est)
- 1,320.00
The heatmap indicates the level of crime in the area. The color of the heatmap indicates the crime severity and recency.
Metrics Year-on-Year
- Average area value
- 356,102.00 £Decreased by 0.99 %
- Est sale value
- 414,480.00 £Increased by 38.94 %
- Average area rental value
- 1,145.00 £/moIncreased by 15.08 %
- Est letting value
- 1,320.00 £/mo
- Est rental Yield
- 3.86 %Increased by 16.27 %
- Crime Rate
- 15.00 %Unchanged by 0.00 %
Agent Activity
Lesley Hooks Estate Agents created the listing.
Nearby Schools
| Name | Type | Ofsted | Distance |
|---|---|---|---|
| Brookhurst Primary School | Community School | Good | 1.39 KM |
| Poulton Lancelyn Primary School | Academy Converter | Good | 1.95 KM |
| Raeburn Primary School | Community School | Good | 2.17 KM |
| South Wirral High School | Foundation School | Requires improvement | 2.65 KM |
| Bromborough Children'S Centre | Children's Centre | 2.67 KM |
Images
Nearby Streets
| Name | Average Price | Average Sqft | Distance |
|---|---|---|---|
| Greenacre Drive | £ 400,000 | 0 | 0.00 KM |
| Birkdale Avenue | £ 0 | 0 | 0.00 KM |
| Kent Close | £ 0 | 0 | 0.00 KM |
| West House Close | £ 379,950 | 0 | 0.00 KM |
| Rose Croft | £ 0 | 0 | 0.00 KM |
Nearby Transport
| Name | NLC | TLC | Distance |
|---|---|---|---|
| Bromborough | 2190 | BOM | 1.60 KM |
| Bromborough Rake | 2191 | BMR | 1.73 KM |
| Spital | 2199 | SPI | 2.40 KM |
| Eastham Rake | 2128 | ERA | 2.60 KM |
| Port Sunlight | 2198 | PSL | 3.31 KM |
Nearby Listings
| Address | Price | Type | Score | Distance |
|---|---|---|---|---|
| Blakeley Road, Raby Mere | £ 450,000 | BUY | 6 / 10 | 0.00 KM |
| Raby Drive, Raby Mere | £ 750,000 | BUY | 7 / 10 | 0.24 KM |
| Raby Drive, Raby Mere | £ 410,000 | BUY | 7 / 10 | 0.24 KM |
| Lawns Avenue, Raby Mere, Wirral | £ 550,000 | BUY | 7 / 10 | 0.25 KM |
| Lawns Avenue, Wirral, CH63 | £ 495,000 | BUY | 7 / 10 | 0.26 KM |
Nearby Properties
| Address | Price | Distance |
|---|---|---|
| 56 Blakeley Road | £ 365,000 | 0.00 KM |
| 12 Blakeley Road | £ 375,000 | 0.00 KM |
| Green Gables | £ 208,500 | 0.00 KM |
| 58 Blakeley Road | £ 737,500 | 0.00 KM |
| 52 Blakeley Road | £ 445,000 | 0.00 KM |