Cavendish Avenue, Finchley, N3
By Chancellors
£ 1,250,000
Reviews
3 out of 5 stars
Chancellors says ..
Extensively updated and extended by the current owners is this beautifully presented family home. The property is located within the catchment of outstanding local schools and 0.5 miles to Finchley Central tube station.
Property Oracle says ..
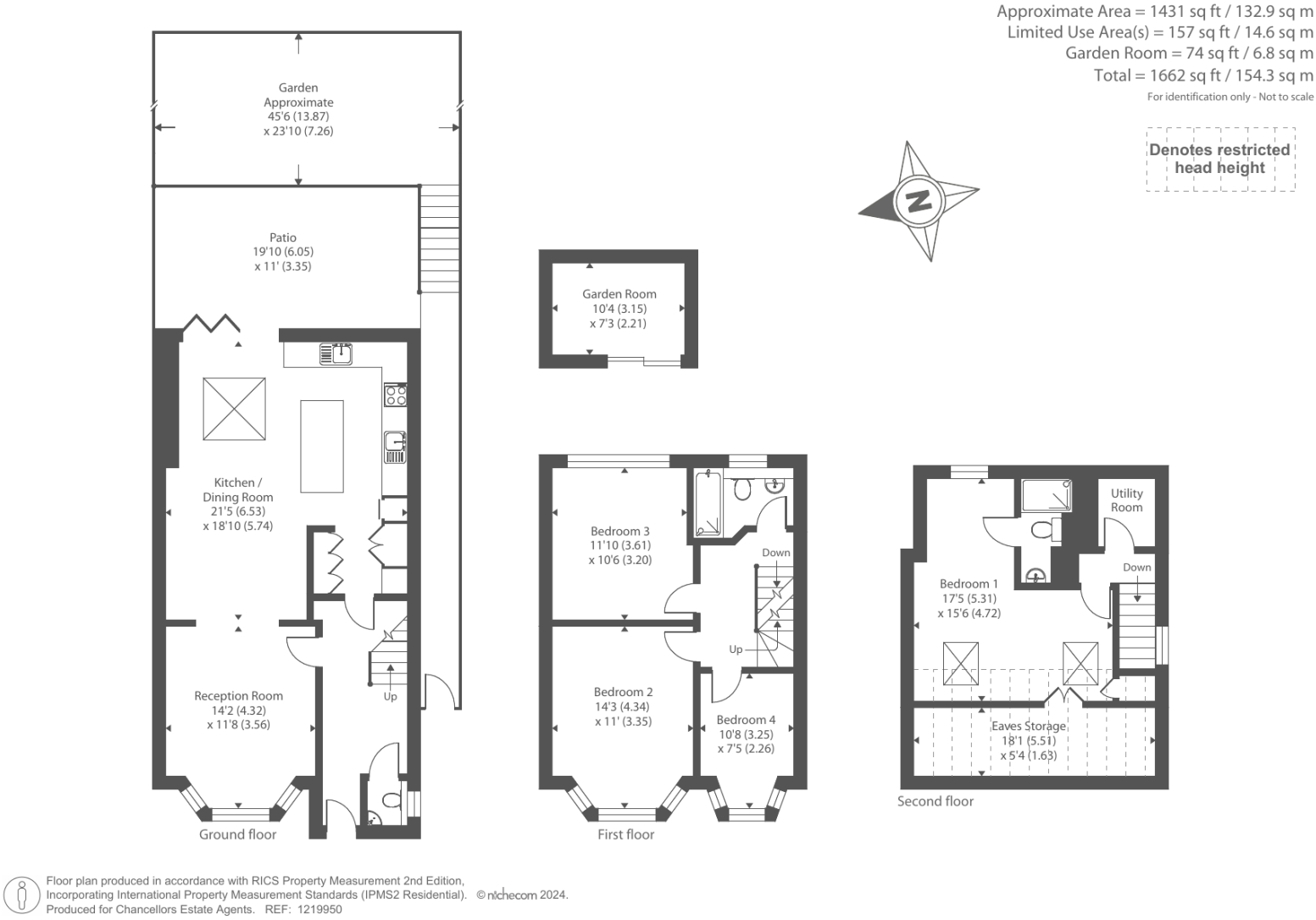
This property, located on Cavendish Avenue in Finchley, N3, presents as a significantly improved family home. The images highlight a recent and comprehensive refurbishment or extension, resulting in a modern and well-presented interior. The kitchen is a particular highlight, showing a contemporary design and high-quality finishes. The bathrooms also appear recently updated. The presence of a garden, although the exact dimensions are not provided, is a valuable asset, especially in a London location. The property appears suitable for a family, given its location near highly-rated schools and the available outdoor space. While the location in Finchley is generally considered desirable with access to transportation links and amenities, more specific details concerning the proximity to Finchley Central Underground station would be beneficial for a thorough assessment. The lack of precise square footage information for similar properties and the absence of a precise plot size for the subject property, limits the ability to comprehensively analyze its value compared to the average price per square foot in the area. The provided list price of £1,250,000, appears reasonable, given the apparent quality of the renovation and desirability of the location, but a more complete comparative market analysis is required for a definitive conclusion on value.
Therefore, we give this property 7 / 10. *Disclaimer: This is our option and does constitute a recommendation or financial advice. Do your own research. *
- Price
- 7
- Condition
- 9
- Location
- 8
- Land
- 7
- Bedrooms
- 4
- Bathrooms
- 3
- Sqft (est)
- 1,662.00
The heatmap indicates the level of crime in the area. The color of the heatmap indicates the crime severity and recency.
Metrics Year-on-Year
- Average area value
- 1,216,667.00 £Increased by 18.81 %
- Est sale value
- 1,610,478.00 £Increased by 46.37 %
- Average area rental value
- 2,646.00 £/moIncreased by 2.16 %
- Est letting value
- 3,324.00 £/moIncreased by 100.00 %
- Est rental Yield
- 2.61 %Decreased by 13.86 %
- Crime Rate
- 7.00 %Unchanged by 0.00 %
Agent Activity
Chancellors marked this listing as sold.
Chancellors created the listing.
Nearby Schools
| Name | Type | Ofsted | Distance |
|---|---|---|---|
| Pardes House Primary School | Voluntary Aided School | Good | 0.46 KM |
| Pardes House Grammar School | Other Independent School | Good | 0.46 KM |
| Finchley And Acton Yochien School | Other Independent School | Good | 0.68 KM |
| Akiva School | Voluntary Aided School | Good | 0.72 KM |
| St Theresa'S Catholic Primary School | Voluntary Aided School | Good | 0.82 KM |
Images
Nearby Streets
| Name | Average Price | Average Sqft | Distance |
|---|---|---|---|
| Anatoolpad | £ 0 | 0 | 0.00 KM |
| Wootton Grove | £ 0 | 0 | 0.00 KM |
| Eger Close | £ 374,975 | 0 | 0.00 KM |
| Albert Place | £ 565,000 | 0 | 0.00 KM |
| Hervey Close | £ 699,500 | 0 | 0.00 KM |
Nearby Transport
| Name | NLC | TLC | Distance |
|---|---|---|---|
| Cricklewood | 1519 | CRI | 4.51 KM |
| Hendon | 1522 | HEN | 5.03 KM |
| Finchley Road And Frognal | 1445 | FNY | 5.21 KM |
| West Hampstead Thameslink | 1525 | WHP | 5.24 KM |
| West Hampstead | 1421 | WHD | 5.35 KM |
Nearby Listings
| Address | Price | Type | Score | Distance |
|---|---|---|---|---|
| Mountfield Road, Finchley | £ 2,000,000 | BUY | 7 / 10 | 0.08 KM |
| Stanhope Avenue, Finchley, London, N3 | £ 925,000 | BUY | 6 / 10 | 0.10 KM |
| Stanhope Avenue, Finchley, N3 | £ 1,250,000 | BUY | 8 / 10 | 0.11 KM |
| Stanhope Avenue, Finchley, London, N3 | £ 950,000 | BUY | Unknown | 0.11 KM |
| Mountfield Road, Finchley, London, N3 | £ 295,000 | BUY | 6 / 10 | 0.12 KM |
Nearby Properties
| Address | Price | Distance |
|---|---|---|
| 24a Cavendish Avenue | £ 270,000 | 0.05 KM |
| 1 Cavendish Avenue | £ 850,000 | 0.05 KM |
| 33a Cavendish Avenue | £ 272,500 | 0.05 KM |
| 30a Cavendish Avenue | £ 556,250 | 0.05 KM |
| 38 Cavendish Avenue | £ 134,500 | 0.05 KM |