Yopa says ..
*** New to the market is this superb 3 bedroom, 2.5 bathroom semi detached home boasting spacious garden, long driveway and detached garage located in the highly sought after town of Rothwell ***
Property Oracle says ..
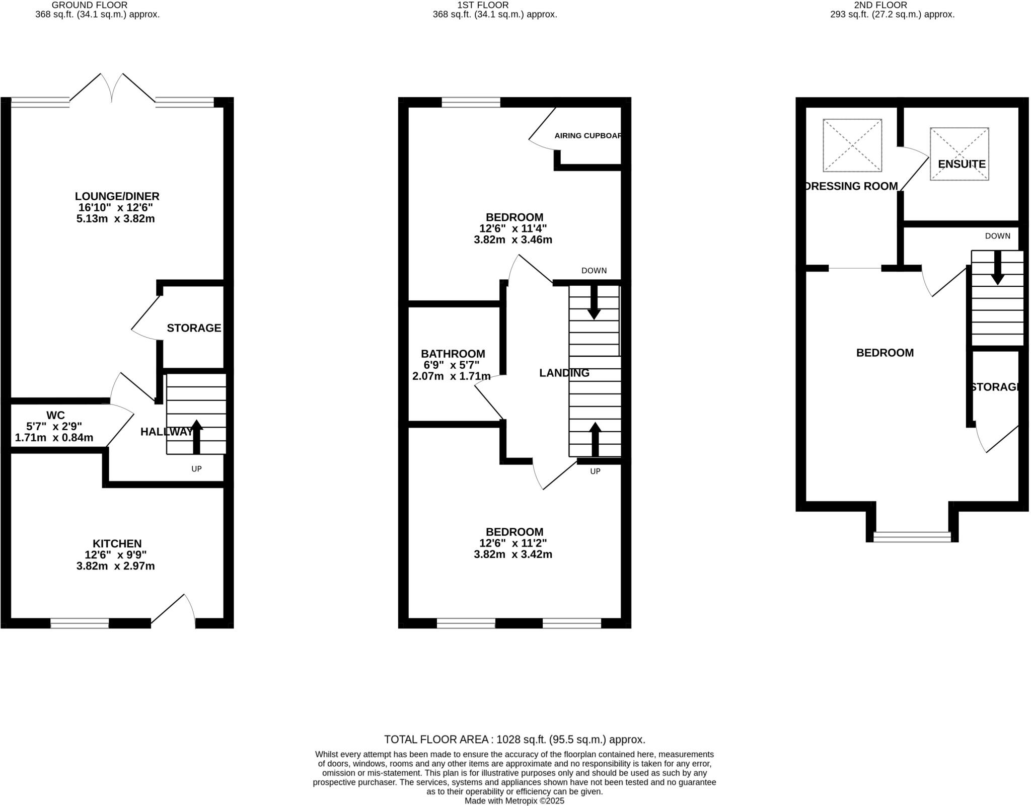
This is a well-presented three-bedroom semi-detached property located in Rothwell, Leeds. The house benefits from a modern interior, a garden, and proximity to local schools. The property appears to be in good condition and offers comfortable family living. The listing price seems appropriate for the property’s features and location, making it an attractive option for potential buyers.
Therefore, we give this property 7 / 10. *Disclaimer: This is our option and does constitute a recommendation or financial advice. Do your own research. *
- Price
- 8
- Condition
- 8
- Location
- 7
- Land
- 7
- Bedrooms
- 3
- Bathrooms
- 3
The heatmap indicates the level of crime in the area. The color of the heatmap indicates the crime severity and recency.
Metrics Year-on-Year
- Average area value
- 488,600.00 £Decreased by 6.01 %
- Average area rental value
- 1,814.00 £/moIncreased by 6.02 %
- Est rental Yield
- 4.46 %Increased by 12.91 %
- Crime Rate
- 26.00 %Unchanged by 0.00 %
Agent Activity
Yopa created the listing.
Nearby Schools
| Name | Type | Ofsted | Distance |
|---|---|---|---|
| Victoria Junior School | Community School | Good | 0.22 KM |
| Rothwell Children'S Centre | Children's Centre | 0.26 KM | |
| Cockburn Haigh Road Academy | Academy Sponsor Led | 0.34 KM | |
| Holy Trinity Church Of England Academy, Rothwell | Academy Sponsor Led | Good | 1.17 KM |
| Rothwell Primary School | Community School | Good | 1.38 KM |
Images
Nearby Streets
| Name | Average Price | Average Sqft | Distance |
|---|---|---|---|
| St Georges Avenue | £ 210,000 | 0 | 0.00 KM |
| Commercial Street | £ 0 | 0 | 0.00 KM |
| Lay Garth | £ 687,500 | 0 | 0.00 KM |
| Richmond Close | £ 0 | 0 | 0.00 KM |
| The Shutts | £ 0 | 0 | 0.00 KM |
Nearby Transport
| Name | NLC | TLC | Distance |
|---|---|---|---|
| Woodlesford | 8578 | WDS | 5.01 KM |
| Outwood | 8309 | OUT | 5.14 KM |
| Cross Gates | 8473 | CRG | 6.80 KM |
| Leeds | 8487 | LDS | 7.96 KM |
| Wakefield Westgate | 8591 | WKF | 8.34 KM |
Nearby Listings
| Address | Price | Type | Score | Distance |
|---|---|---|---|---|
| Woodland Garth, Rothwell, Leeds, West Yorkshire | £ 535,000 | BUY | 7 / 10 | 0.00 KM |
| Woodland Garth, Leeds, LS26 | £ 290,000 | BUY | 7 / 10 | 0.00 KM |
| Woodland Garth, Rothwell, Leeds | £ 284,995 | BUY | 7 / 10 | 0.02 KM |
| Woodland Garth, Rothwell, Leeds | £ 299,995 | BUY | 6 / 10 | 0.03 KM |
| Woodland Crescent, Rothwell, Leeds, West Yorkshire | £ 160,000 | BUY | 6 / 10 | 0.08 KM |
Nearby Properties
| Address | Price | Distance |
|---|---|---|
| 7 Woodland Garth | £ 236,000 | 0.01 KM |
| 12 Woodland Garth | £ 280,000 | 0.03 KM |
| 6 Woodland Crescent | £ 145,000 | 0.08 KM |
| 13 Woodland Crescent | £ 180,000 | 0.08 KM |
| 2 Woodland Crescent | £ 25,000 | 0.08 KM |