Butler Field End, Newark Road, Lincoln, LN1
By Under The Hammer
£ 325,000
Reviews
3 out of 5 stars
Under The Hammer says ..
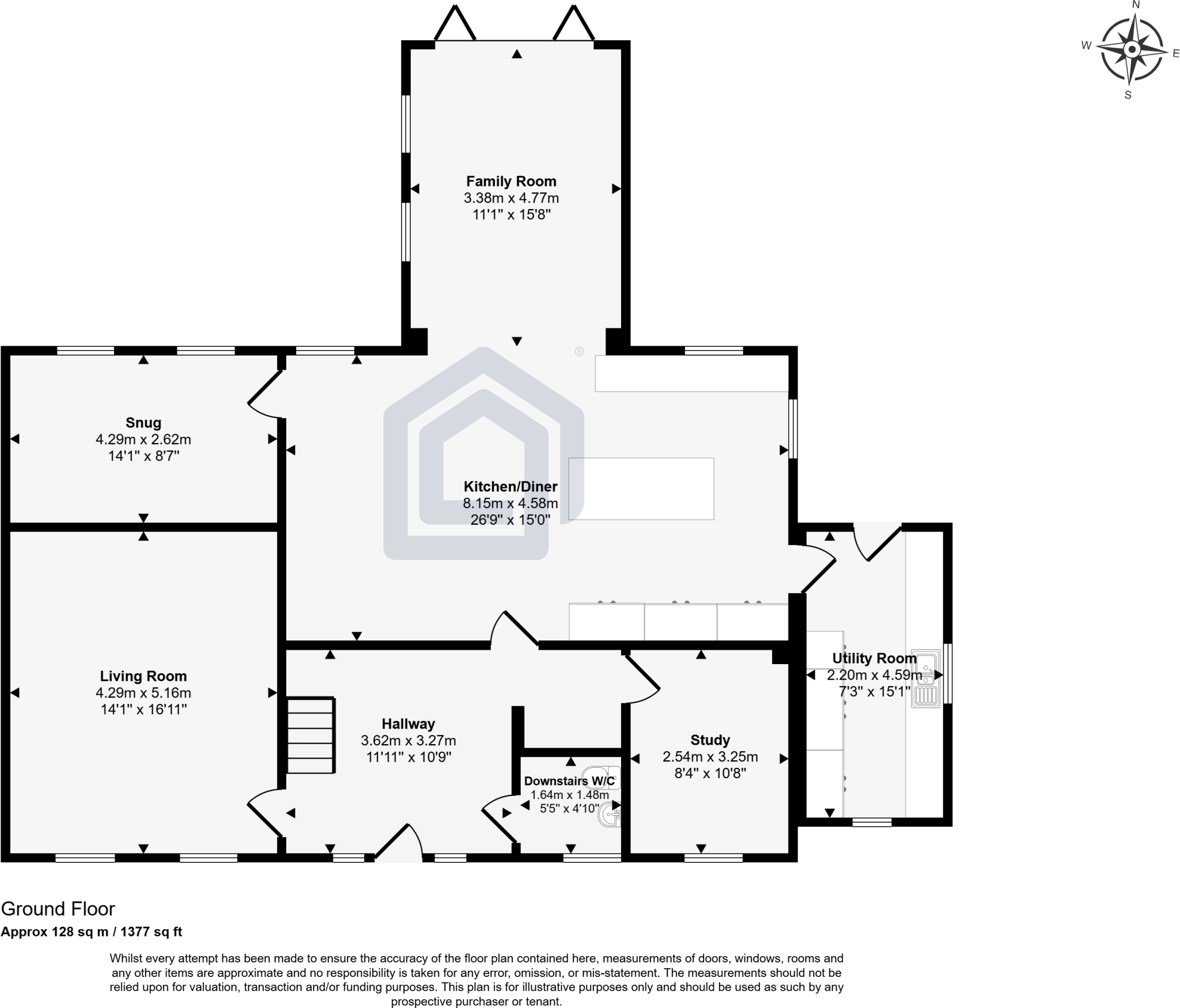
For sale by Under the Hammer online auction on Wednesday 15th October 2025. Nestled in the heart of the picturesque and highly sought-after village of Torksey, just 12 miles from the vibrant and historic city of Lincoln, lies 2 Butlers Field End-a unique and substantial family residence offeri...
Property Oracle says ..
The property at Butler Field End, Newark Road, Lincoln, LN1 2EJ, is a 5-bedroom detached house located in Torksey, West Lindsey. Marketed by Under The Hammer, the property is listed at £325,000. The house appears to be either newly built or recently renovated, featuring modern bathrooms and a kitchen. However, the interior is unfinished, requiring additional work. The property includes a garden and is situated in a location that, while somewhat remote, offers access to nearby schools and transportation. The price seems reasonable given the size and condition of the property, but potential buyers should factor in the cost of completing the interior work.
Therefore, we give this property 6 / 10. *Disclaimer: This is our option and does constitute a recommendation or financial advice. Do your own research. *
- Price
- 7
- Condition
- 5
- Location
- 6
- Land
- 6
- Bedrooms
- 5
- Bathrooms
- 4
The heatmap indicates the level of crime in the area. The color of the heatmap indicates the crime severity and recency.
Metrics Year-on-Year
- Average area value
- 302,567.00 £Increased by 9.67 %
- Average area rental value
- 1,147.00 £/moIncreased by 17.88 %
- Est rental Yield
- 4.55 %Increased by 7.57 %
- Crime Rate
- 19.00 %Unchanged by 0.00 %
Agent Activity
Under The Hammer created the listing.
Nearby Schools
| Name | Type | Ofsted | Distance |
|---|---|---|---|
| Newton-On-Trent Cofe Primary School | Voluntary Controlled School | Good | 3.34 KM |
| The Marton Academy | Academy Converter | 4.34 KM | |
| Dunham-On-Trent Cofe Primary School | Voluntary Controlled School | Good | 6.38 KM |
| North Clifton Primary School | Community School | Good | 6.81 KM |
| Rampton Primary School | Community School | Good | 7.91 KM |
Images
Nearby Streets
| Name | Average Price | Average Sqft | Distance |
|---|---|---|---|
| Fossdyke Walk | £ 127,475 | 0 | 0.00 KM |
| Chestnut Crescent | £ 110,000 | 0 | 0.00 KM |
| Station Road | £ 860,000 | 0 | 0.00 KM |
Nearby Transport
| Name | NLC | TLC | Distance |
|---|---|---|---|
| Saxilby | 6328 | SXY | 9.49 KM |
Nearby Listings
| Address | Price | Type | Score | Distance |
|---|---|---|---|---|
| Butler Field End, Newark Road, Lincoln, LN1 | £ 325,000 | BUY | 6 / 10 | 0.00 KM |
| Butlers Field End, LN1 | £ 425,000 | BUY | 7 / 10 | 0.02 KM |
| Plot 2, Butler Field End, Newark Road,, Lincoln, LN1 | £ 305,000 | BUY | Unknown | 0.11 KM |
| The Oval, Torksey Lock | £ 210,000 | BUY | 7 / 10 | 0.38 KM |
| Little London Park, John Francis Way, Torksey Lock LN1 2ZU | £ 175,000 | BUY | 6 / 10 | 0.44 KM |
Nearby Properties
| Address | Price | Distance |
|---|---|---|
| Markham House | £ 305,600 | 0.22 KM |
| The Willows | £ 290,000 | 0.23 KM |
| Triangle Bungalow | £ 175,000 | 0.23 KM |
| 6 Lock Row | £ 130,000 | 0.52 KM |
| 2 Lock Row | £ 101,500 | 0.52 KM |