Princess Drive, York, North Yorkshire, YO26
By Reeds Rains
£ 180,000
Reviews
2 out of 5 stars
Reeds Rains says ..
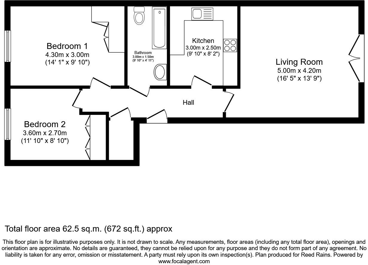
***NO FORWARD CHAIN***FIRST FLOOR APARTMENT***TWO BEDROOMS***SEPARATE KITCHEN***POPULAR LOCATION***CLOSE PROXIMITY TO LOCAL AMENITIES/YORK RING ROAD AND CITY CENTRE***ALLOCATED PARKING SPACE***VIEWING A MUST***EPC RATING B***COUNCIL TAX BAND C***WHITE GOODS INCLUDED***
Property Oracle says ..
This two-bedroom, one-bathroom apartment in Acomb, York is listed for £180,000. The property’s location offers convenient access to local amenities and is within reasonable distance of York city centre and transport links. However, Acomb is not consistently ranked amongst York’s most prestigious residential areas.
The apartment itself appears to be in satisfactory condition, with dated but well-maintained fixtures and fittings. The images show a functional kitchen and bathroom, with neutral décor throughout. However, potential buyers might want to consider some interior modernisations to improve the overall aesthetic appeal. The lack of significant private outdoor space is a notable limitation, given that the property is an apartment with only access to communal grounds.
The lack of detailed information on square footage for comparable properties within the locality makes it difficult to definitively assess the value of this apartment. However, considering the pricing of similar properties in Acomb, and the property’s features, including the lack of private outdoor space, the asking price is reasonably in-line with market expectations for a two-bedroom apartment in this location.
Therefore, we give this property 5 / 10. *Disclaimer: This is our option and does constitute a recommendation or financial advice. Do your own research. *
- Price
- 7
- Condition
- 6
- Location
- 7
- Land
- 1
- Bedrooms
- 2
- Bathrooms
- 1
- Sqft (est)
- 672.00
The heatmap indicates the level of crime in the area. The color of the heatmap indicates the crime severity and recency.
Metrics Year-on-Year
- Average area value
- 591,875.00 £Increased by 5.13 %
- Est sale value
- 320,544.00 £Decreased by 6.47 %
- Average area rental value
- 1,194.00 £/moDecreased by 3.63 %
- Est letting value
- 0.00 £/moDecreased by 100.00 %
- Est rental Yield
- 2.42 %Decreased by 8.33 %
- Crime Rate
- 9.00 %Unchanged by 0.00 %
Agent Activity
Reeds Rains marked this listing as sold.
Reeds Rains created the listing.
Nearby Schools
| Name | Type | Ofsted | Distance |
|---|---|---|---|
| Carr Children'S Centre | Children's Centre | 0.60 KM | |
| Carr Junior School | Academy Converter | 0.60 KM | |
| Carr Infant School | Community School | Good | 0.75 KM |
| Poppleton Road Primary School | Community School | Good | 0.88 KM |
| Acomb Primary School | Academy Converter | 1.60 KM |
Images
Nearby Streets
| Name | Average Price | Average Sqft | Distance |
|---|---|---|---|
| Ouse Acres | £ 0 | 0 | 0.00 KM |
| Glebe Avenue | £ 0 | 0 | 0.00 KM |
| Woodlea Grove | £ 0 | 0 | 0.00 KM |
| Fairfax Close | £ 120,000 | 0 | 0.00 KM |
| School Street | £ 0 | 0 | 0.00 KM |
Nearby Transport
| Name | NLC | TLC | Distance |
|---|---|---|---|
| Poppleton | 8254 | POP | 3.07 KM |
| York | 8263 | YRK | 3.39 KM |
Nearby Listings
| Address | Price | Type | Score | Distance |
|---|---|---|---|---|
| Princess Drive, York, North Yorkshire, YO26 | £ 180,000 | BUY | 5 / 10 | 0.00 KM |
| Princess Drive, York, YO26 5SY | £ 175,000 | BUY | 7 / 10 | 0.03 KM |
| Princess Drive, York, YO26 | £ 270,000 | BUY | 6 / 10 | 0.03 KM |
| Princess Drive, York | £ 200,000 | BUY | 5 / 10 | 0.04 KM |
| Regent Mews, York, YO26 5TD | £ 395,000 | BUY | 7 / 10 | 0.10 KM |
Nearby Properties
| Address | Price | Distance |
|---|---|---|
| 126 Princess Drive | £ 149,995 | 0.03 KM |
| 68 Princess Drive | £ 247,000 | 0.03 KM |
| 102 Princess Drive | £ 113,736 | 0.03 KM |
| 52 Princess Drive | £ 310,000 | 0.03 KM |
| 54 Princess Drive | £ 228,000 | 0.03 KM |