Marvins says ..
Nestled on the charming Moorgreen Road in Cowes, this delightful two-bedroom cottage presents an excellent opportunity for those seeking a comfortable and inviting home. The property boasts a warm and welcoming atmosphere and benefits from off road parking, making it perfect for first-time buyers...
Property Oracle says ..
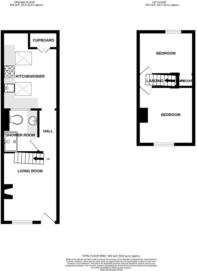
The property is a well-maintained 2-bedroom house in Cowes, Isle of Wight, situated close to good schools and offering a small garden. While smaller than the average property in the area, its good condition, proximity to amenities, and reasonable price make it an attractive option.
Therefore, we give this property 7 / 10. *Disclaimer: This is our option and does constitute a recommendation or financial advice. Do your own research. *
- Price
- 7
- Condition
- 8
- Location
- 7
- Land
- 6
- Bedrooms
- 2
- Bathrooms
- 0
- Sqft (est)
- 463.00
- Lot (est)
- 545.00
The heatmap indicates the level of crime in the area. The color of the heatmap indicates the crime severity and recency.
Metrics Year-on-Year
- Average area value
- 396,429.00 £Increased by 2.18 %
- Est sale value
- 164,365.00 £Decreased by 8.74 %
- Average area rental value
- 1,250.00 £/moDecreased by 3.55 %
- Est letting value
- 463.00 £/moUnchanged by 0.00 %
- Est rental Yield
- 3.78 %Decreased by 5.74 %
- Crime Rate
- 10.00 %Unchanged by 0.00 %
Agent Activity
Marvins created the listing.
Nearby Schools
| Name | Type | Ofsted | Distance |
|---|---|---|---|
| Cowes Primary School | Community School | Good | 0.30 KM |
| Cowes Enterprise College, An Ormiston Academy | Academy Sponsor Led | Good | 0.52 KM |
| Cowes Children'S Centre | Children's Centre Linked Site | 0.71 KM | |
| Lanesend Primary School | Academy Converter | Good | 0.74 KM |
| Gurnard Primary School | Community School | Good | 1.69 KM |
Images
Nearby Streets
| Name | Average Price | Average Sqft | Distance |
|---|---|---|---|
| Coronation Road | £ 272,000 | 0 | 0.00 KM |
| Firs Close | £ 0 | 0 | 0.00 KM |
| Windmill Close | £ 0 | 0 | 0.00 KM |
| The Pippins | £ 492,500 | 0 | 0.00 KM |
| Reynolds Close | £ 0 | 0 | 0.00 KM |
Nearby Listings
| Address | Price | Type | Score | Distance |
|---|---|---|---|---|
| Moorgreen Road, Cowes | £ 225,000 | BUY | 7 / 10 | 0.00 KM |
| Moorgreen Road, Cowes, Isle of Wight | £ 220,000 | BUY | 6 / 10 | 0.02 KM |
| Moorgreen Road, Cowes | £ 255,000 | BUY | 7 / 10 | 0.03 KM |
| Albert Street, Cowes | £ 195,000 | BUY | 6 / 10 | 0.05 KM |
| DELIGHTFUL DETACHED HOME IN CENTRAL COWES - Moorgreen Road, Cowes | £ 295,000 | BUY | 7 / 10 | 0.05 KM |
Nearby Properties
| Address | Price | Distance |
|---|---|---|
| 23 Moorgreen Road | £ 276,000 | 0.02 KM |
| 13 Moorgreen Road | £ 111,000 | 0.02 KM |
| 7 Moorgreen Road | £ 107,500 | 0.02 KM |
| 9 Moorgreen Road | £ 155,000 | 0.02 KM |
| 1 Moorgreen Road | £ 320,000 | 0.02 KM |