Cleveland Road, New Malden, Surrey, KT3
By BidX1
£ 590,000
Reviews
3 out of 5 stars
BidX1 says ..
To be sold at an online auction. For further information, viewing times and legal documentation, please visit bidx1.com.
Property Oracle says ..
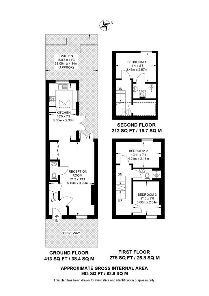
This is a three-bedroom semi-detached house on Cleveland Road, New Malden. The property benefits from a modern interior, including updated kitchen and bathrooms. The location is convenient, with nearby schools and transportation links. While the garden requires some work, it offers outdoor space. The asking price of £590,000 appears competitive compared to other properties in the area. Overall, this property presents a good opportunity for potential buyers looking for a well-located and modernised home.
Therefore, we give this property 7 / 10. *Disclaimer: This is our option and does constitute a recommendation or financial advice. Do your own research. *
- Price
- 7
- Condition
- 8
- Location
- 7
- Land
- 6
- Bedrooms
- 3
- Bathrooms
- 2
The heatmap indicates the level of crime in the area. The color of the heatmap indicates the crime severity and recency.
Metrics Year-on-Year
- Average area value
- 687,500.00 £Decreased by 0.32 %
- Average area rental value
- 2,627.00 £/moIncreased by 13.18 %
- Est rental Yield
- 4.59 %Increased by 13.61 %
- Crime Rate
- 13.00 %Unchanged by 0.00 %
Agent Activity
BidX1 created the listing.
Nearby Schools
| Name | Type | Ofsted | Distance |
|---|---|---|---|
| The Holy Cross School | Academy Converter | 0.43 KM | |
| Westbury House School | Other Independent School | 0.55 KM | |
| The Study School | Other Independent School | 0.63 KM | |
| Christ Church New Malden Cofe Primary School | Voluntary Aided School | Good | 0.82 KM |
| Coombe Girls' School | Academy Converter | Outstanding | 1.10 KM |
Images
Nearby Streets
| Name | Average Price | Average Sqft | Distance |
|---|---|---|---|
| Beeline Way | £ 605,000 | 0 | 0.00 KM |
| Burlington Road | £ 0 | 0 | 0.00 KM |
| Walton Avenue | £ 0 | 0 | 0.00 KM |
| Welbeck Close | £ 925,000 | 0 | 0.00 KM |
| Cavendish Road | £ 0 | 0 | 0.00 KM |
Nearby Transport
| Name | NLC | TLC | Distance |
|---|---|---|---|
| New Malden | 5567 | NEM | 0.52 KM |
| Malden Manor | 5599 | MAL | 1.83 KM |
| Motspur Park | 5645 | MOT | 2.30 KM |
| Berrylands | 5581 | BRS | 2.36 KM |
| Worcester Park | 5579 | WCP | 2.71 KM |
Nearby Listings
| Address | Price | Type | Score | Distance |
|---|---|---|---|---|
| Cleveland Road, New Malden, Surrey, KT3 | £ 590,000 | BUY | 7 / 10 | 0.00 KM |
| Cleveland Road, New Malden, KT3 | £ 800,000 | BUY | Unknown | 0.08 KM |
| Cleveland Road, New Malden | £ 765,000 | BUY | 6 / 10 | 0.08 KM |
| Cleveland Road, New Malden | £ 675,000 | BUY | 8 / 10 | 0.08 KM |
| Cleveland Road, New Malden, KT3 | £ 675,000 | BUY | Unknown | 0.11 KM |
Nearby Properties
| Address | Price | Distance |
|---|---|---|
| 54a Cleveland Road | £ 561,100 | 0.09 KM |
| 44 Cleveland Road | £ 642,000 | 0.09 KM |
| 4 Cleveland Road | £ 495,000 | 0.09 KM |
| 26 Cleveland Road | £ 315,000 | 0.09 KM |
| 51 Cleveland Road | £ 879,750 | 0.09 KM |