McCartneys LLP says ..
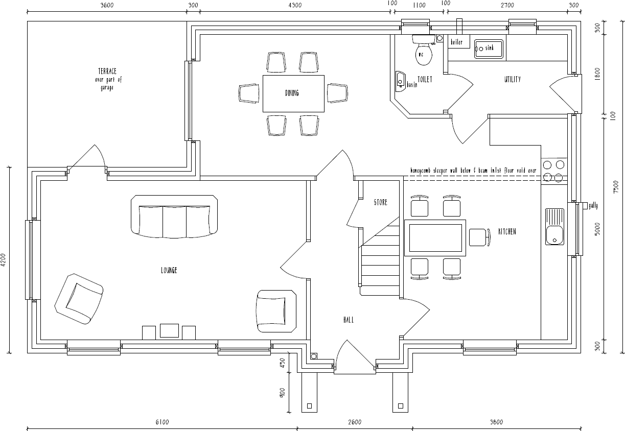
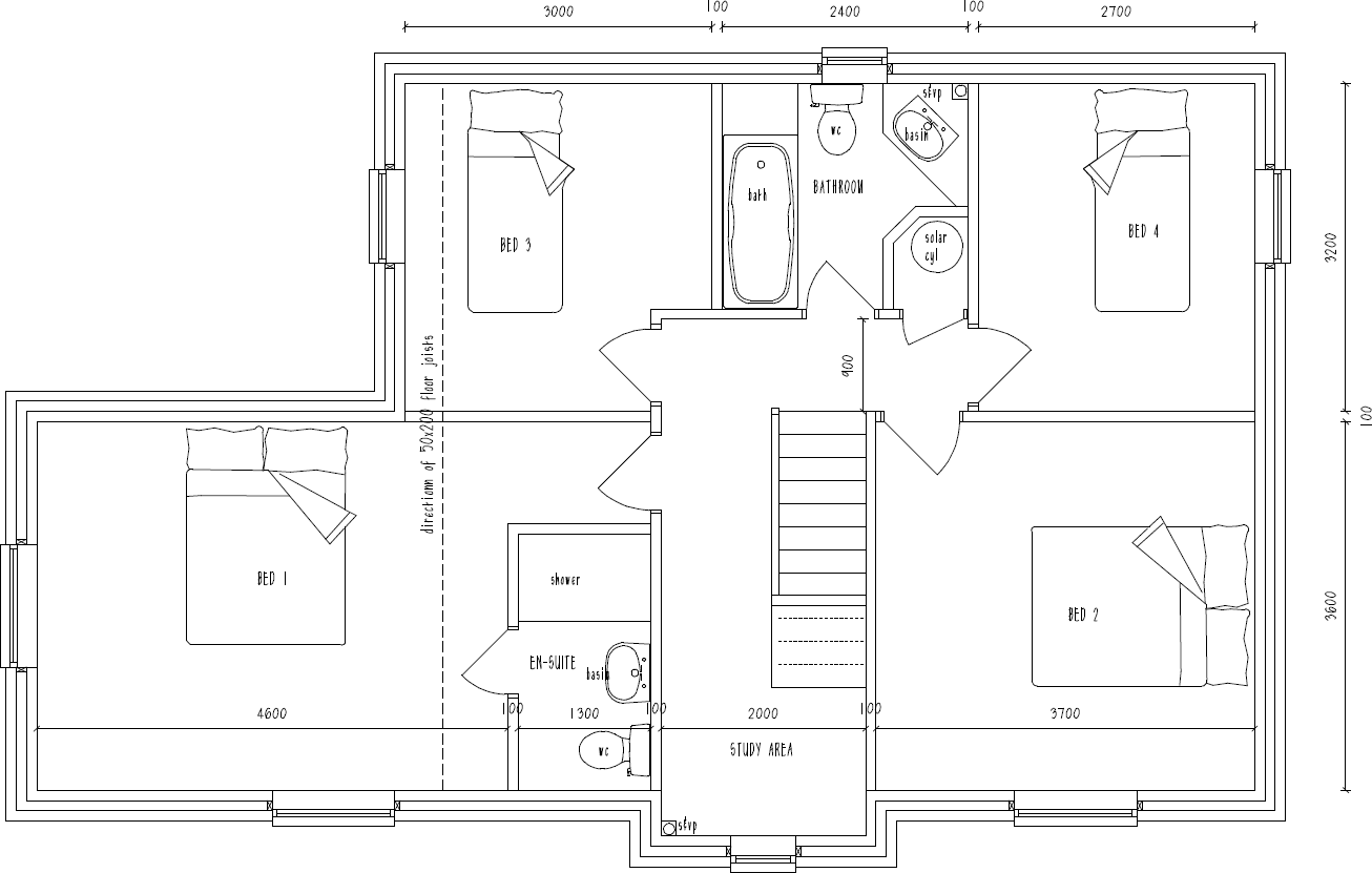
An individual building plot with full planning permission for a detached four bedroom house and garaging, located on Red Bank within Welshpool, offering excellent views over the town to Powys Castle.
Property Oracle says ..
Therefore, we give this property 5 / 10. *Disclaimer: This is our option and does constitute a recommendation or financial advice. Do your own research. *
- Price
- 8
- Condition
- 4
- Location
- 6
- Land
- 5
- Bedrooms
- 4
- Bathrooms
- 2
- Sqft (est)
- 134.55
The heatmap indicates the level of crime in the area. The color of the heatmap indicates the crime severity and recency.
Metrics Year-on-Year
- Average area value
- 311,704.00 £Increased by 34.17 %
- Est sale value
- 49,245.30 £Increased by 10.57 %
- Average area rental value
- 1,067.00 £/moDecreased by 19.35 %
- Est letting value
- 134.55 £/moUnchanged by 0.00 %
- Est rental Yield
- 4.11 %Decreased by 39.82 %
- Crime Rate
- 1.00 %Unchanged by 0.00 %
from 232,321.00 £
from 44,536.05 £
from 1,323.00 £/mo
from 134.55 £/mo
from 6.83 %
from 1.00 %
Agent Activity
McCartneys LLP created the listing.
Nearby Schools
| Name | Type | Ofsted | Distance |
|---|---|---|---|
| Welshpool Church In Wales Primary School | Welsh Establishment | 0.75 KM | |
| Welshpool High School | Welsh Establishment | 1.31 KM | |
| Leighton C.P. School | Welsh Establishment | 3.36 KM | |
| Guilsfield C.P. School | Welsh Establishment | 3.67 KM | |
| Amberleigh Residential Therapeutic School | Welsh Establishment | 4.80 KM |
Images
Nearby Streets
| Name | Average Price | Average Sqft | Distance |
|---|---|---|---|
| Union Street | £ 175,000 | 0 | 0.00 KM |
| Seven Stars Road | £ 0 | 0 | 0.00 KM |
| Stanley Street | £ 95,000 | 0 | 0.00 KM |
| High Street | £ 265,000 | 0 | 0.00 KM |
| High Street | £ 0 | 0 | 0.00 KM |
Nearby Transport
| Name | NLC | TLC | Distance |
|---|---|---|---|
| Welshpool | 4434 | WLP | 1.10 KM |
Nearby Listings
| Address | Price | Type | Score | Distance |
|---|---|---|---|---|
| Red Bank, Welshpool | £ 80,000 | BUY | 5 / 10 | 0.00 KM |
| The Old Bakery, Seven Stars Road, Welshpool | £ 625,000 | BUY | 5 / 10 | 0.24 KM |
| Adelaide Drive, Red Bank, Welshpool, Powys | £ 235,000 | BUY | 6 / 10 | 0.27 KM |
| Trem Dyffryn, Red Bank, Welshpool | £ 320,000 | BUY | 6 / 10 | 0.28 KM |
| 42 Broad Street, Welshpool, Powys, SY21 7RR | £ 195,000 | BUY | Unknown | 0.30 KM |
Nearby Properties
| Address | Price | Distance |
|---|---|---|
| Roanhead | £ 137,000 | 0.01 KM |
| Ty Trace | £ 86,667 | 0.15 KM |
| Cammeray | £ 178,000 | 0.15 KM |
| White Ridges | £ 127,000 | 0.15 KM |
| Hithercroft | £ 210,000 | 0.16 KM |