Batoum Gardens, London W6
Finlay Brewer logo

Batoum Gardens, London W6

By Finlay Brewer

£ 3,250,000

Reviews

4 out of 5 stars

Finlay Brewer says ..

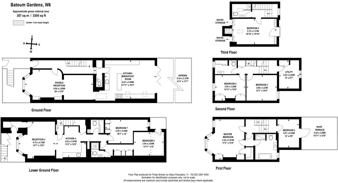
A substantial 7 bedroom Victorian terraced family house with excellent and flexible living/entertaining space and a southerly garden and roof terrace. The elegant, high-ceilinged double reception has a bay window to the front, a feature fireplace with cabinets beside and opens into the f...

Property Oracle says ..

This property is located in the desirable Addison area of Hammersmith and Fulham, known for its excellent schools and transport links. The property itself appears to be in very good condition, having undergone a tasteful refurbishment. The images show a modern, well-maintained interior and exterior. The property benefits from a good-sized garden, which is a significant advantage in this part of London. Given the size, condition, location, and amenities, the list price of £3,250,000 seems high compared to the average price in the area (£849,645) and the average price per sqft (£1,036.00). However, the comparable property at 43 Batoum Gardens sold for £2,800,000, suggesting that the list price is not entirely unreasonable, though still at the higher end of the market.

Therefore, we give this property 8 / 10. *Disclaimer: This is our option and does constitute a recommendation or financial advice. Do your own research. *

Price
6
Condition
9
Location
9
Land
8
Bedrooms
7
Bathrooms
5
Sqft (est)
2,957.92
Lot (est)
3,304.52

The heatmap indicates the level of crime in the area. The color of the heatmap indicates the crime severity and recency.

Metrics Year-on-Year

Average area value
1,006,667.00 £
Increased by 5.72 %
from 952,186.00 £
Est sale value
3,164,974.40 £
Increased by 19.02 %
from 2,659,170.08 £
Average area rental value
1,276.00 £/mo
Decreased by 19.29 %
from 1,581.00 £/mo
Est letting value
2,957.92 £/mo
Unchanged by 0.00 %
from 2,957.92 £/mo
Est rental Yield
1.52 %
Decreased by 23.62 %
from 1.99 %
Crime Rate
4.00 %
Unchanged by 0.00 %
from 4.00 %

Agent Activity

  • Finlay Brewer created the listing.

Nearby Schools

NameTypeOfstedDistance
Bute House Preparatory School For GirlsOther Independent School0.51 KM
Addison Primary SchoolCommunity SchoolGood0.62 KM
Sacred Heart High SchoolAcademy ConverterOutstanding0.66 KM
Young Dancers AcademyOther Independent SchoolOutstanding0.70 KM
Miles Coverdale Primary SchoolCommunity SchoolOutstanding0.70 KM

Images

Batoum Gardens - ReceptionB3 (1).JPG Batoum Gardens - KitchenA3 (1).JPG Batoum Gardens - KitchenC3 (1).JPG Batoum Gardens - Garden3 (1).JPG Batoum Gardens - GardenA3 (1).JPG Batoum Gardens - ReceptionA3 (1).JPG Batoum Gardens - BedroomB3 (1).JPG Batoum Gardens - BedroomC3 (1).JPG Batoum Gardens - Ensuite3 (1).JPG Batoum Gardens - Bedroom3 (1).JPG Batoum Gardens - Bathroom3 (1).JPG Batoum Gardens - BedroomA3 (1).JPG Batoum Gardens - Utility Room3 (1).JPG Batoum Gardens - Shower Room3 (1).JPG Batoum Gardens - LGF - KitchenA3 (1).JPG Batoum Gardens - LGF - Reception3 (1).JPG Batoum Gardens - LGF - BedroomA3 (1).JPG Batoum Gardens - LGF - Bedroom3 (1).JPG Batoum Gardens - Exterior3 (1).JPG

Nearby Streets

NameAverage PriceAverage SqftDistance
Trussley Road £ 000.00 KM
Sulgrave Road £ 1,800,00000.00 KM
Shepherd's Bush Road £ 000.00 KM
Samuels Close £ 000.00 KM
Southway Close £ 000.00 KM

Nearby Transport

NameNLCTLCDistance
Shepherd'S Bush9587SPB1.03 KM
Kensington (Olympia)3092KPA1.60 KM
Kensal Green1447KNL3.48 KM
West Brompton8875WBP3.50 KM
Kensal Rise1448KNR3.96 KM

Nearby Listings

AddressPriceTypeScoreDistance
Batoum Gardens, London W6 £ 2,975,000BUYUnknown0.00 KM
Batoum Gardens, London, W6 £ 2,975,000BUY7 / 100.01 KM
Batoum Gardens, London W6 £ 2,200,000BUY7 / 100.04 KM
Sulgrave Road, London W6 £ 450,000BUY6 / 100.05 KM
Batoum Gardens, London W6 £ 475,000BUY7 / 100.07 KM

Nearby Properties

AddressPriceDistance
37a Batoum Gardens £ 482,0000.08 KM
7a Batoum Gardens £ 685,0000.08 KM
43 Batoum Gardens £ 2,800,0000.08 KM
1 Batoum Gardens £ 2,650,0000.08 KM
37b Batoum Gardens £ 300,0000.08 KM