Pearsons says ..
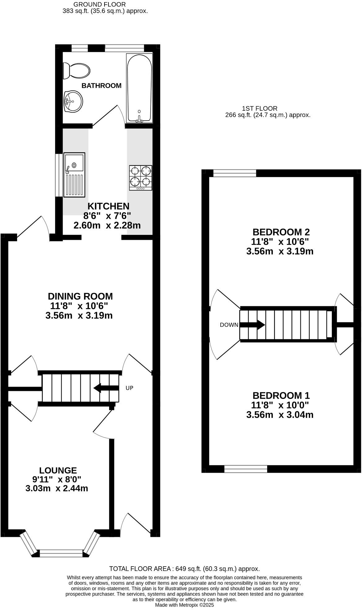
This two-bedroom terraced home is perfectly situated to enjoy everything Southsea has to offer. The property is conveniently located within walking distance of Fratton Train Station and Albert Road, where shops, bars and restaurants can be found. The internal accommodation comprises; entrance hal...
Property Oracle says ..
This is a two-bedroom terraced house located in Central Southsea. The property benefits from a modern kitchen and a garden, although the garden requires some attention. While the property is in fair condition, some rooms show signs of wear and tear and would benefit from cosmetic improvements. The location is a positive aspect, with proximity to schools, transportation, and local amenities. Considering the price and the potential for improvement, this property could be a good investment for first-time buyers or investors.
Therefore, we give this property 5 / 10. *Disclaimer: This is our option and does constitute a recommendation or financial advice. Do your own research. *
- Price
- 7
- Condition
- 5
- Location
- 7
- Land
- 4
- Bedrooms
- 2
- Bathrooms
- 1
- Sqft (est)
- 515.74
The heatmap indicates the level of crime in the area. The color of the heatmap indicates the crime severity and recency.
Metrics Year-on-Year
- Average area value
- 269,625.00 £Decreased by 6.52 %
- Est sale value
- 182,056.22 £Increased by 13.50 %
- Average area rental value
- 1,216.00 £/moDecreased by 16.14 %
- Est letting value
- 515.74 £/moUnchanged by 0.00 %
- Est rental Yield
- 5.41 %Decreased by 10.28 %
- Crime Rate
- 5.00 %Unchanged by 0.00 %
Agent Activity
Pearsons created the listing.
Nearby Schools
| Name | Type | Ofsted | Distance |
|---|---|---|---|
| Bramble Infant School And Nursery | Community School | Good | 0.05 KM |
| The Brambles Children'S Centre And Nursery School | Children's Centre Linked Site | 0.11 KM | |
| Devonshire Infant School | Community School | Good | 0.45 KM |
| Priory School | Academy Sponsor Led | Good | 0.49 KM |
| Fernhurst Junior School | Community School | Good | 0.49 KM |
Images
Nearby Streets
| Name | Average Price | Average Sqft | Distance |
|---|---|---|---|
| Boulton Road | £ 0 | 0 | 0.00 KM |
| Beatrice Road | £ 270,000 | 0 | 0.00 KM |
| Campbell Road | £ 0 | 0 | 0.00 KM |
| Proctor Lane | £ 0 | 0 | 0.00 KM |
| Fratton Way | £ 162,500 | 0 | 0.00 KM |
Nearby Transport
| Name | NLC | TLC | Distance |
|---|---|---|---|
| Fratton | 5509 | FTN | 0.52 KM |
| Portsmouth And Southsea | 5537 | PMS | 2.02 KM |
| Portsmouth Harbour | 5540 | PMH | 3.79 KM |
| Hilsea | 5539 | HLS | 4.41 KM |
| Cosham | 5896 | CSA | 5.64 KM |
Nearby Listings
| Address | Price | Type | Score | Distance |
|---|---|---|---|---|
| Talbot Road, Southsea | £ 235,000 | BUY | 5 / 10 | 0.00 KM |
| Talbot Road, Southsea, Hampshire | £ 230,000 | BUY | Unknown | 0.03 KM |
| Talbot Road, Southsea, Hampshire | £ 152,500 | BUY | Unknown | 0.03 KM |
| Talbot Road, Southsea | £ 249,950 | BUY | 6 / 10 | 0.04 KM |
| Talbot Road, Southsea | £ 232,500 | BUY | 6 / 10 | 0.04 KM |
Nearby Properties
| Address | Price | Distance |
|---|---|---|
| 19 Talbot Road | £ 183,250 | 0.01 KM |
| 5 Talbot Road | £ 65,000 | 0.01 KM |
| 15 Talbot Road | £ 183,000 | 0.01 KM |
| 35 Talbot Road | £ 125,000 | 0.01 KM |
| 7 Talbot Road | £ 180,000 | 0.01 KM |