Pearmain House, Harrow, London, HA2
By So Resi
£ 126,000
Reviews
3 out of 5 stars
So Resi says ..
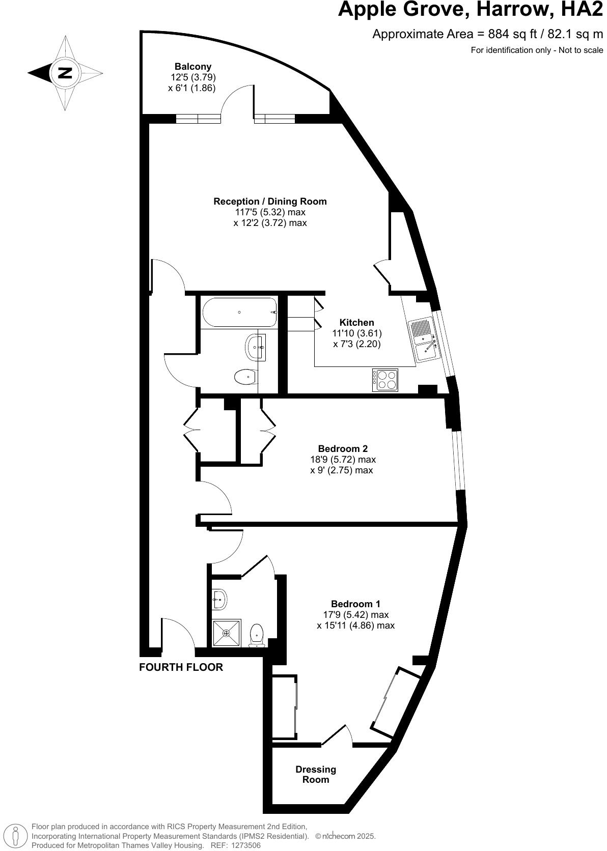
This bright, modern and spacious two-bedroom apartment on the fourth floor of a seven-story block is available in Harrow through Shared Ownership. The accommodation comprises a hallway, a living room with a kitchen area, two bedrooms, an en suite, and a bathroom. Out...
Property Oracle says ..
This property is a two-bedroom flat located in Harrow, London. The flat is modern and well-maintained, as seen in the provided images. It features a modern kitchen and bathroom, and the living area is spacious and bright. The property also benefits from a balcony. While the list price is significantly below the average price for the area, this may be due to the smaller size of the flat compared to the average. The location is convenient, with several schools and transportation options nearby. However, additional information regarding the specific location within Harrow and the quality of nearby schools would help refine this analysis.
Therefore, we give this property 6 / 10. *Disclaimer: This is our option and does constitute a recommendation or financial advice. Do your own research. *
- Price
- 6
- Condition
- 9
- Location
- 7
- Land
- 3
- Bedrooms
- 2
- Bathrooms
- 0
- Sqft (est)
- 774.00
- Lot (est)
- 884.00
The heatmap indicates the level of crime in the area. The color of the heatmap indicates the crime severity and recency.
Metrics Year-on-Year
- Average area value
- 341,429.00 £Increased by 9.95 %
- Est sale value
- 242,262.00 £Decreased by 25.65 %
- Average area rental value
- 875.00 £/moDecreased by 18.53 %
- Est letting value
- 0.00 £/moDecreased by 100.00 %
- Est rental Yield
- 3.08 %Decreased by 25.78 %
- Crime Rate
- 4.00 %Unchanged by 0.00 %
Agent Activity
So Resi created the listing.
Nearby Schools
| Name | Type | Ofsted | Distance |
|---|---|---|---|
| Rayners Lane Children'S Centre | Children's Centre Linked Site | 0.47 KM | |
| Grange Primary School | Community School | Requires improvement | 0.47 KM |
| Grange | Children's Centre Linked Site | 0.70 KM | |
| The Welldon Park Academy | Academy Sponsor Led | 0.91 KM | |
| Whitmore High School | Community School | Outstanding | 0.97 KM |
Images
Nearby Streets
| Name | Average Price | Average Sqft | Distance |
|---|---|---|---|
| The Arches | £ 400,000 | 0 | 0.00 KM |
| Rooks Corner | £ 0 | 0 | 0.00 KM |
| Beechwood Gardens | £ 0 | 0 | 0.00 KM |
| Newton Close | £ 282,500 | 0 | 0.00 KM |
| Windsor Close | £ 0 | 0 | 0.00 KM |
Nearby Transport
| Name | NLC | TLC | Distance |
|---|---|---|---|
| Northolt Park | 1478 | NLT | 1.23 KM |
| Harrow-On-The-Hill | 598 | HOH | 2.84 KM |
| Sudbury Hill Harrow | 1484 | SDH | 2.96 KM |
| Greenford | 3136 | GFD | 3.34 KM |
| Headstone Lane | 1434 | HDL | 3.82 KM |
Nearby Listings
| Address | Price | Type | Score | Distance |
|---|---|---|---|---|
| Pearmain House, Harrow, London, HA2 | £ 126,000 | BUY | 6 / 10 | 0.00 KM |
| Pearmain House, Harrow, London, HA2 | £ 122,500 | BUY | Unknown | 0.00 KM |
| Juniper Close, Harrow | £ 325,000 | BUY | 6 / 10 | 0.08 KM |
| Coles Crescent, Harrow, HA2 | £ 585,000 | BUY | 6 / 10 | 0.08 KM |
| Coles Crescent, Harrow | £ 575,000 | BUY | 6 / 10 | 0.09 KM |
Nearby Properties
| Address | Price | Distance |
|---|---|---|
| 27 Coles Crescent | £ 123,750 | 0.05 KM |
| 17 Coles Crescent | £ 249,950 | 0.05 KM |
| 21 Coles Crescent | £ 101,500 | 0.07 KM |
| 35 Coles Crescent | £ 430,000 | 0.07 KM |
| 51 Coles Crescent | £ 483,985 | 0.07 KM |