US
Brandy Way, Sutton, Surrey. SM3
By Ushers Estate Agents
£ 475,000
Reviews
3 out of 5 stars
Ushers Estate Agents says ..
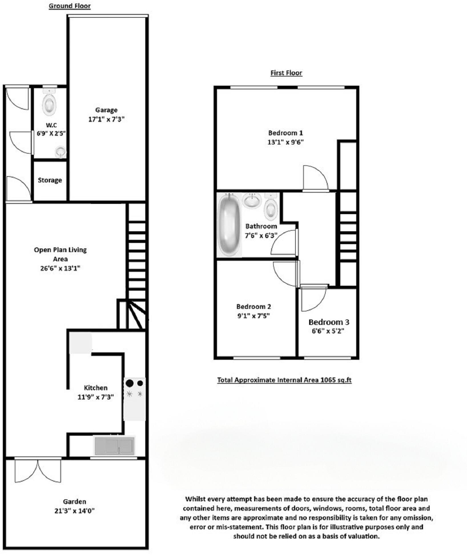
** Guide Price £475,000 to £485,000 * NO CHAIN ** Ushers are pleased to offer this rarely available 3 bedroom terrace house situated in a popular location in South Sutton. The property benefits from a 10'2 long entrance hall, downstairs cloakroom, 15'10 lounge, 12' kitchen breakfast r...
Property Oracle says ..
Therefore, we give this property 6 / 10. *Disclaimer: This is our option and does constitute a recommendation or financial advice. Do your own research. *
- Price
- 7
- Condition
- 6
- Location
- 7
- Land
- 7
- Bedrooms
- 3
- Bathrooms
- 1
The heatmap indicates the level of crime in the area. The color of the heatmap indicates the crime severity and recency.
Metrics Year-on-Year
- Average area value
- 426,436.00 £Decreased by 1.59 %
- Average area rental value
- 1,587.00 £/moDecreased by 7.46 %
- Est rental Yield
- 4.47 %Decreased by 5.89 %
- Crime Rate
- 2.00 %Unchanged by 0.00 %
from 433,305.00 £
from 1,715.00 £/mo
from 4.75 %
from 2.00 %
Agent Activity
Ushers Estate Agents created the listing.
Nearby Schools
| Name | Type | Ofsted | Distance |
|---|---|---|---|
| Overton Grange School | Academy Converter | Good | 0.67 KM |
| Avenue Primary Academy | Academy Converter | 0.83 KM | |
| Thomas Wall Nursery Children'S Centre (Sutton Central West) | Children's Centre | 0.89 KM | |
| Shanklin Community Children'S Centre | Children's Centre | 0.94 KM | |
| Sutton High School Gdst | Other Independent School | 0.94 KM |
Images
Nearby Streets
| Name | Average Price | Average Sqft | Distance |
|---|---|---|---|
| Bramble Acres Close | £ 0 | 0 | 0.00 KM |
| Grange Road | £ 250,000 | 0 | 0.00 KM |
| Worcester Road | £ 1,500,000 | 0 | 0.00 KM |
| Cornwall Road | £ 1,272,500 | 0 | 0.00 KM |
| St. James Road | £ 0 | 0 | 0.00 KM |
Nearby Transport
| Name | NLC | TLC | Distance |
|---|---|---|---|
| Belmont | 5350 | BLM | 1.15 KM |
| Cheam | 5352 | CHE | 1.36 KM |
| Sutton | 5385 | SUO | 1.36 KM |
| West Sutton | 5293 | WSU | 1.40 KM |
| Sutton Common | 5436 | SUC | 2.45 KM |
Nearby Listings
| Address | Price | Type | Score | Distance |
|---|---|---|---|---|
| Brandy Way, Sutton, Surrey. SM3 | £ 475,000 | BUY | 6 / 10 | 0.00 KM |
| Grange Road, Sutton, Surrey, SM2 | £ 635,000 | BUY | 6 / 10 | 0.04 KM |
| Sackville Road, Sutton | £ 730,000 | BUY | Unknown | 0.07 KM |
| Sackville Road, Sutton, SM2 | £ 385,000 | BUY | 7 / 10 | 0.07 KM |
| Overton Road, Sutton, SM2 | £ 325,000 | BUY | Unknown | 0.09 KM |
Nearby Properties
| Address | Price | Distance |
|---|---|---|
| 11 Brandy Way | £ 430,000 | 0.01 KM |
| 25 Brandy Way | £ 225,000 | 0.01 KM |
| 13 Brandy Way | £ 250,000 | 0.01 KM |
| 35 Brandy Way | £ 249,950 | 0.01 KM |
| 5 Brandy Way | £ 250,000 | 0.01 KM |