Links Estate Agents says ..
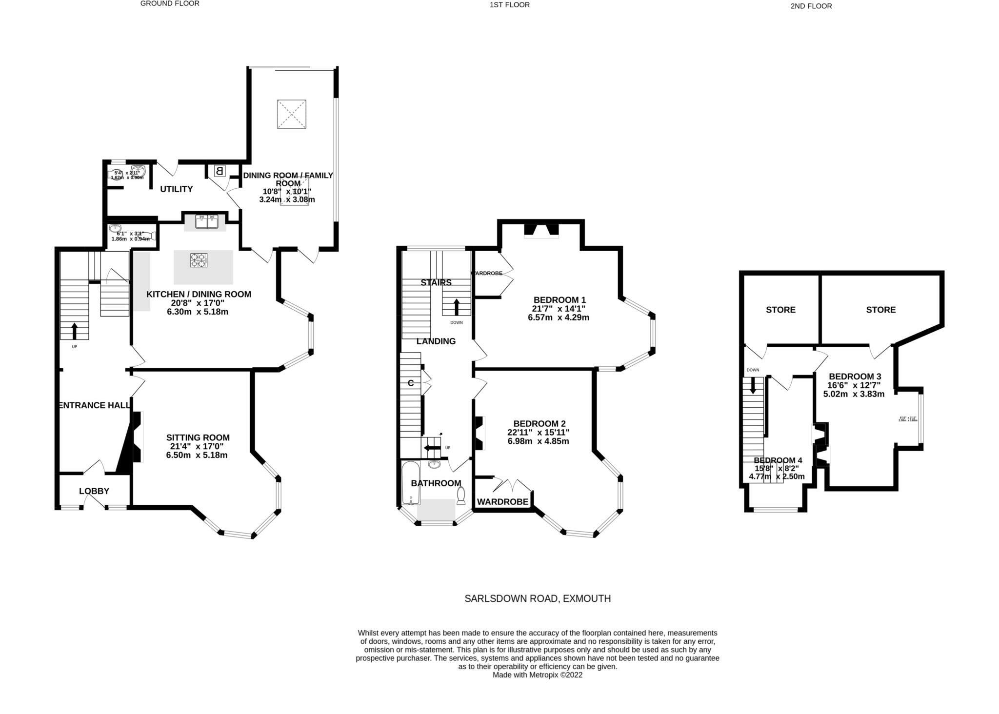
This is a rare opportunity to purchase this extended, 4 bedroom, corner bay semi detached Edwardian house within `The Avenues` area of Exmouth, having large gardens, garaging and ample off road parking for several vehicles.
Property Oracle says ..
This extended four-bedroom Edwardian semi-detached house is situated in the desirable Avenues area of Exmouth, East Devon. The property offers substantial living space, and notable features such as a recently renovated kitchen and the presence of multiple fireplaces and original features add character. The garden is quite extensive, and the availability of a garage and ample off-road parking are significant advantages. The property’s age is evident in the architectural style, however, some elements may benefit from updating or modernizing to meet contemporary standards. Although some photographs reveal areas needing minor cosmetic improvements, the overall impression is one of a well-maintained family home. The house benefits from its location near good schools and Exmouth’s train station. Whilst the listing price appears reasonable based on comparable sales in the locality, precise pricing analysis is hindered by the inconsistent data on square footage for nearby properties. This property would make an excellent family home for those seeking a well-located property within a sought-after area of Exmouth, but prospective buyers should allow for potential minor renovations based on their personal preferences.
Therefore, we give this property 7 / 10. *Disclaimer: This is our option and does constitute a recommendation or financial advice. Do your own research. *
- Price
- 7
- Condition
- 7
- Location
- 8
- Land
- 7
- Bedrooms
- 4
- Bathrooms
- 1
- Sqft (est)
- 1,828.47
The heatmap indicates the level of crime in the area. The color of the heatmap indicates the crime severity and recency.
Metrics Year-on-Year
- Average area value
- 385,000.00 £Decreased by 11.33 %
- Est sale value
- 1,217,761.02 £Increased by 93.60 %
- Average area rental value
- 1,650.00 £/moIncreased by 37.04 %
- Est letting value
- 3,656.94 £/mo
- Est rental Yield
- 5.14 %Increased by 54.35 %
- Crime Rate
- 1.00 %Unchanged by 0.00 %
Agent Activity
Links Estate Agents created the listing.
Nearby Schools
| Name | Type | Ofsted | Distance |
|---|---|---|---|
| Marpool Primary School | Foundation School | Good | 0.87 KM |
| Exmouth & District Children'S Centre | Children's Centre | 0.87 KM | |
| Withycombe Raleigh Church Of England Primary School | Voluntary Controlled School | Good | 1.23 KM |
| St Joseph'S Catholic Primary School, Exmouth | Academy Converter | Good | 1.28 KM |
| Bassetts Farm Primary School | Foundation School | Good | 1.63 KM |
Images
Nearby Streets
| Name | Average Price | Average Sqft | Distance |
|---|---|---|---|
| Walnut Grove | £ 220,000 | 0 | 0.00 KM |
| Vale Road | £ 0 | 0 | 0.00 KM |
| Sutton Road | £ 279,950 | 0 | 0.00 KM |
| Park Way | £ 345,000 | 0 | 0.00 KM |
| The Crescent | £ 0 | 0 | 0.00 KM |
Nearby Transport
| Name | NLC | TLC | Distance |
|---|---|---|---|
| Exmouth | 5756 | EXM | 2.49 KM |
| Lympstone Village | 5761 | LYM | 5.22 KM |
| Starcross | 3413 | SCS | 6.15 KM |
| Dawlish Warren | 3409 | DWW | 6.17 KM |
| Lympstone Commando | 5762 | LYC | 7.04 KM |
Nearby Listings
| Address | Price | Type | Score | Distance |
|---|---|---|---|---|
| Sarlsdown Road, Exmouth | £ 925,000 | BUY | 7 / 10 | 0.00 KM |
| Sarlsdown Road, Exmouth | £ 260,000 | BUY | 6 / 10 | 0.01 KM |
| Stevenstone Road, Exmouth, Devon | £ 1,000,000 | BUY | 8 / 10 | 0.08 KM |
| Stevenstone Road, Exmouth, Devon | £ 260,000 | BUY | 6 / 10 | 0.10 KM |
| Stevenstone Road, Exmouth, Devon | £ 140,000 | BUY | 5 / 10 | 0.10 KM |
Nearby Properties
| Address | Price | Distance |
|---|---|---|
| 3a Sarlsdown Road | £ 915,000 | 0.01 KM |
| 5b Sarlsdown Road | £ 825,000 | 0.01 KM |
| 12 Sarlsdown Road | £ 600,000 | 0.01 KM |
| 9 Sarlsdown Road | £ 207,500 | 0.02 KM |
| 2a Sarlsdown Road | £ 460,107 | 0.02 KM |