Bridge Street, Avon Wharf, Christchurch, BH23
By Spencers Coastal
£ 1,595,000
Reviews
3 out of 5 stars
Spencers Coastal says ..
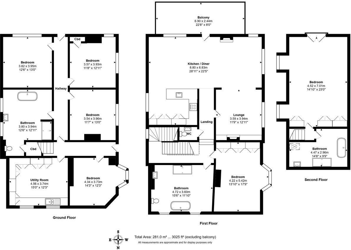
An exceptional Grade II listed riverside residence, offering an expansive 3,000 sqft of elegant accommodation and a superb 39ft private mooring. Perfectly positioned in the heart of Christchurch, this remarkable home is within effortless reach of boutique shops and acclaimed restaurants. This ...
Property Oracle says ..
This property is a 5 bedroom, 3 bathroom detached house located in Christchurch, Dorset. The property is situated on Bridge Street, Avon Wharf, offering a waterfront location with views of the river and boats. The house appears to be in excellent condition, having undergone recent renovations or modernisation. The interior boasts a modern and stylish design, with a well-equipped kitchen, spacious living areas, and comfortable bedrooms. The property includes a small garden area and benefits from its proximity to local amenities and transportation links. The list price is higher than the average for the area, but this is likely due to the property’s waterfront location, size, condition, and unique features.
Therefore, we give this property 7 / 10. *Disclaimer: This is our option and does constitute a recommendation or financial advice. Do your own research. *
- Price
- 7
- Condition
- 9
- Location
- 10
- Land
- 4
- Bedrooms
- 5
- Bathrooms
- 3
- Sqft (est)
- 2,184.91
- Lot (est)
- 3,024.66
The heatmap indicates the level of crime in the area. The color of the heatmap indicates the crime severity and recency.
Metrics Year-on-Year
- Average area value
- 376,983.00 £Decreased by 11.57 %
- Est sale value
- 1,090,270.09 £Increased by 15.78 %
- Average area rental value
- 1,330.00 £/moDecreased by 14.91 %
- Est letting value
- 2,184.91 £/moUnchanged by 0.00 %
- Est rental Yield
- 4.23 %Decreased by 3.86 %
- Crime Rate
- 8.00 %Unchanged by 0.00 %
Agent Activity
Spencers Coastal created the listing.
Nearby Schools
| Name | Type | Ofsted | Distance |
|---|---|---|---|
| Christchurch West | Children's Centre | 0.71 KM | |
| The Priory Church Of England Primary School | Voluntary Aided School | Requires improvement | 0.76 KM |
| Twynham School | Academy Converter | Outstanding | 1.29 KM |
| St Katharine'S Church Of England Primary School | Voluntary Aided School | Good | 1.45 KM |
| Christchurch Learning Centre | Pupil Referral Unit | Good | 1.46 KM |
Images
Nearby Streets
| Name | Average Price | Average Sqft | Distance |
|---|---|---|---|
| Orchid Way | £ 0 | 0 | 0.00 KM |
| Tamlyn's Farm Mews | £ 525,000 | 0 | 0.00 KM |
| Springwater Drive | £ 0 | 0 | 0.00 KM |
| Stanpit Roundabout | £ 0 | 0 | 0.00 KM |
| Meredith Close | £ 399,950 | 0 | 0.00 KM |
Nearby Transport
| Name | NLC | TLC | Distance |
|---|---|---|---|
| Christchurch | 5879 | CHR | 1.51 KM |
| Pokesdown | 5885 | POK | 5.96 KM |
| Hinton Admiral | 5880 | HNA | 6.64 KM |
Nearby Listings
| Address | Price | Type | Score | Distance |
|---|---|---|---|---|
| Bridge Street, Avon Wharf, Christchurch, BH23 | £ 1,595,000 | BUY | 7 / 10 | 0.00 KM |
| CHRISTCHURCH TOWN CENTRE | £ 625,000 | BUY | 6 / 10 | 0.05 KM |
| Avon Cottage, Avon Wharf, Bridge Street, Christchurch, BH23 | £ 750,000 | BUY | 6 / 10 | 0.05 KM |
| Avon Cottage, Avon Wharf, Bridge Street, Christchurch, BH23 | £ 750,000 | BUY | 6 / 10 | 0.05 KM |
| CHRISTCHURCH TOWN CENTRE | £ 299,995 | BUY | 6 / 10 | 0.05 KM |
Nearby Properties
| Address | Price | Distance |
|---|---|---|
| 25 Bridge Street | £ 950,000 | 0.01 KM |
| 1 Bridge Street | £ 1,050,000 | 0.01 KM |
| 1b Bridge Street | £ 400,000 | 0.01 KM |
| 76 Bridge Street | £ 295,000 | 0.07 KM |
| 48 Bridge Street | £ 374,250 | 0.07 KM |