Pegg Estates says ..
Presenting this immaculate terraced property, currently available for sale. Nestled in an optimal location, this property offers excellent connectivity with public transport links, proximity to local amenities, and nearby schools. For those who appreciate the outdoors and convenience of green space
Property Oracle says ..
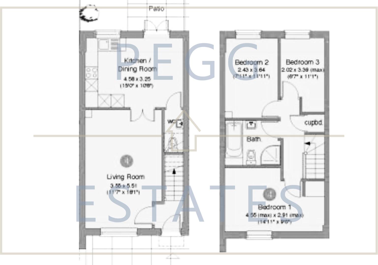
This three-bedroom terraced house in Ellacombe, Torquay, is listed at £240,000. The property benefits from a modern kitchen and bathroom, and appears well-maintained from the provided images. While the plot size is not specified, there is evidence of a small, manageable rear garden. The location is convenient, with nearby schools (Ellacombe Church of England Academy, rated “Good” by Ofsted, is particularly close) and transportation links to Torquay railway station. However, the average house price in the area is £224,356, and the average price per sqft is £250. This property is slightly above average in price, given its size of 745.94 sqft. Nearby comparable properties show a range of prices, some lower and some higher than the listing price, making it difficult to definitively assess the value. More information on the plot size would be beneficial in a full valuation.
Therefore, we give this property 6 / 10. *Disclaimer: This is our option and does constitute a recommendation or financial advice. Do your own research. *
- Price
- 6
- Condition
- 8
- Location
- 7
- Land
- 4
- Bedrooms
- 3
- Bathrooms
- 1
- Sqft (est)
- 745.94
The heatmap indicates the level of crime in the area. The color of the heatmap indicates the crime severity and recency.
Metrics Year-on-Year
- Average area value
- 212,800.00 £Decreased by 19.35 %
- Est sale value
- 148,442.06 £Decreased by 21.34 %
- Average area rental value
- 1,098.00 £/moIncreased by 11.02 %
- Est letting value
- 745.94 £/mo
- Est rental Yield
- 6.19 %Increased by 37.56 %
- Crime Rate
- 12.00 %Unchanged by 0.00 %
Agent Activity
Pegg Estates created the listing.
Nearby Schools
| Name | Type | Ofsted | Distance |
|---|---|---|---|
| Ellacombe Church Of England Academy | Academy Sponsor Led | Good | 0.18 KM |
| Torquay Children'S Centre | Children's Centre | 0.36 KM | |
| Ef Academy Torbay | Other Independent School | 0.45 KM | |
| Eat That Frog C.I.C | Special Post 16 Institution | Good | 0.49 KM |
| The Spires College | Foundation School | Good | 0.70 KM |
Images
Nearby Streets
| Name | Average Price | Average Sqft | Distance |
|---|---|---|---|
| Briary Lane | £ 0 | 0 | 0.00 KM |
| Garden Road | £ 0 | 0 | 0.00 KM |
| Castle Circus Court | £ 295,000 | 0 | 0.00 KM |
| Saint Marychurch Road | £ 363,333 | 0 | 0.00 KM |
| Banner Cross Steps | £ 350,000 | 0 | 0.00 KM |
Nearby Transport
| Name | NLC | TLC | Distance |
|---|---|---|---|
| Torquay | 3434 | TQY | 2.06 KM |
| Torre | 3432 | TRR | 2.15 KM |
| Paignton | 3427 | PGN | 5.75 KM |
| Teignmouth | 3430 | TGM | 9.35 KM |
Nearby Listings
| Address | Price | Type | Score | Distance |
|---|---|---|---|---|
| Parkside Place, Torquay | £ 240,000 | BUY | 6 / 10 | 0.00 KM |
| Parkside Place, Ellacombe Road, Torquay | £ 270,000 | BUY | 7 / 10 | 0.03 KM |
| Ellacombe Road, Torquay, TQ1 3AT | £ 180,000 | BUY | 5 / 10 | 0.04 KM |
| Ellacombe Road, Torquay, TQ1 | £ 160,000 | BUY | 6 / 10 | 0.05 KM |
| Wellington Road, Torquay | £ 140,000 | BUY | 5 / 10 | 0.06 KM |
Nearby Properties
| Address | Price | Distance |
|---|---|---|
| 5 Ellacombe Road | £ 125,000 | 0.04 KM |
| 21 Ellacombe Road | £ 36,500 | 0.04 KM |
| 37 Ellacombe Road | £ 119,000 | 0.04 KM |
| 17 Ellacombe Road | £ 67,950 | 0.04 KM |
| 39 Ellacombe Road | £ 104,500 | 0.04 KM |