Halsbury Road, Westbury Park, Bristol
GO

Halsbury Road, Westbury Park, Bristol

By Goodchild Estate Agents

£ 690,000

Reviews

3 out of 5 stars

Goodchild Estate Agents says ..

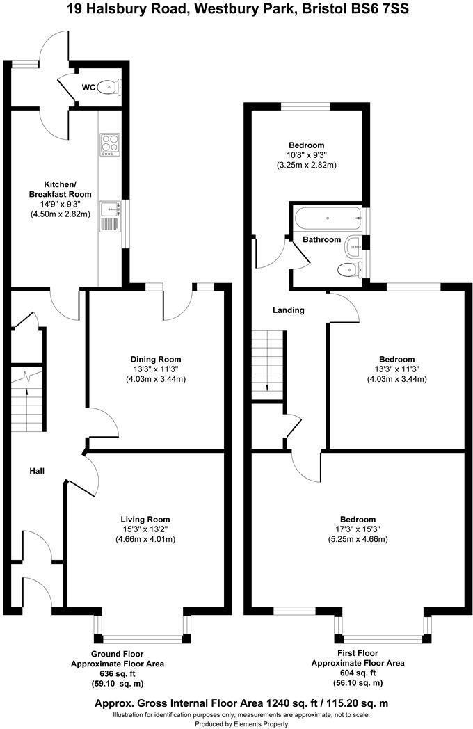
A charming and deceptively spacious three-bedroom Victorian home offering around 1,240 Sq.Ft. (115.2 Sq.M.) of bright, well-balanced accommodation. Positioned on one of Westbury Park’s most desirable roads and within the Redland Green School catchment, this characterful property combines period d...

Property Oracle says ..

This is a three-bedroom terraced house located in the desirable Westbury Park area of Bristol. The property benefits from a garden and is situated close to several well-regarded schools. While the house is generally in good order, it would benefit from some modernisation to bring it up to contemporary standards. The location is a major selling point, offering convenient access to local amenities and transport links. The price is reasonable for the area, but potential buyers should factor in the cost of renovations.

Therefore, we give this property 7 / 10. *Disclaimer: This is our option and does constitute a recommendation or financial advice. Do your own research. *

Price
7
Condition
6
Location
8
Land
7
Bedrooms
3
Bathrooms
1
Sqft (est)
1,099.96

The heatmap indicates the level of crime in the area. The color of the heatmap indicates the crime severity and recency.

Metrics Year-on-Year

Average area value
747,632.00 £
Increased by 6.43 %
from 702,490.00 £
Est sale value
772,171.92 £
Increased by 45.64 %
from 530,180.72 £
Average area rental value
1,826.00 £/mo
Decreased by 8.79 %
from 2,002.00 £/mo
Est letting value
1,099.96 £/mo
Unchanged by 0.00 %
from 1,099.96 £/mo
Est rental Yield
2.93 %
Decreased by 14.33 %
from 3.42 %
Crime Rate
6.00 %
Unchanged by 0.00 %
from 6.00 %

Agent Activity

  • Goodchild Estate Agents created the listing.

Nearby Schools

NameTypeOfstedDistance
Henleaze Junior SchoolAcademy ConverterOutstanding0.51 KM
Henleaze Infant SchoolCommunity SchoolRequires improvement0.51 KM
Claremont SchoolCommunity Special SchoolGood0.58 KM
Westbury Park SchoolAcademy ConverterOutstanding0.62 KM
Redland Green SchoolAcademy ConverterOutstanding0.93 KM

Images

Halsbury Road, Westbury Park Kitchen.jpg Halsbury Road, Westbury Park Front.jpg Halsbury Road, Westbury Park Dining Room.jpg Halsbury Road, Westbury Park Living Room.jpg Halsbury Road, Westbury Park Rear of Property.jpg Halsbury Road, Westbury Park Bed 1b.jpg Halsbury Road, Westbury Park Bed 2.jpg Halsbury Road, Westbury Park Bathroom.jpg Halsbury Road, Westbury Park Bed 3.jpg Halsbury Road, Westbury Park Kitchen 2.jpg Halsbury Road, Westbury Park Rear Garden.jpg Halsbury Road, Westbury Park Staircase.jpg Halsbury Road, Westbury Park Bed 1.jpg Halsbury Road, Westbury Park Bed 2b.jpg Halsbury Road, Westbury Park Side of Property.jpg

Nearby Streets

NameAverage PriceAverage SqftDistance
Remenham Park £ 788,7501,2090.00 KM
Palmerston Road £ 785,00000.00 KM
Dundonald Road £ 971,66700.00 KM
Ladysmith Road £ 000.00 KM
The Drive £ 688,33300.00 KM

Nearby Transport

NameNLCTLCDistance
Redland3247RDA1.60 KM
Clifton Down3202CFN1.83 KM
Montpelier3203MTP2.44 KM
Bristol Temple Meads3231BRI4.50 KM
Bedminster3245BMT4.71 KM

Nearby Listings

AddressPriceTypeScoreDistance
Halsbury Road, Westbury Park, Bristol £ 690,000BUY7 / 100.00 KM
Halsbury Road | Westbury Park £ 765,000BUY7 / 100.04 KM
Halsbury Road | Westbury Park £ 865,000BUY8 / 100.04 KM
Halsbury Road, Westbury Park, Bristol, BS6 7SR £ 585,000BUY6 / 100.04 KM
Halsbury Road | Westbury Park £ 385,000BUY6 / 100.07 KM

Nearby Properties

AddressPriceDistance
43 Halsbury Road £ 550,0000.03 KM
23d Halsbury Road £ 187,0000.03 KM
23c Halsbury Road £ 131,0000.03 KM
11 Halsbury Road £ 649,0000.03 KM
37 Halsbury Road £ 612,0000.03 KM