SE
Langley Avenue, Worcester Park
By SeOUL Residential
£ 650,000
Reviews
3 out of 5 stars
SeOUL Residential says ..
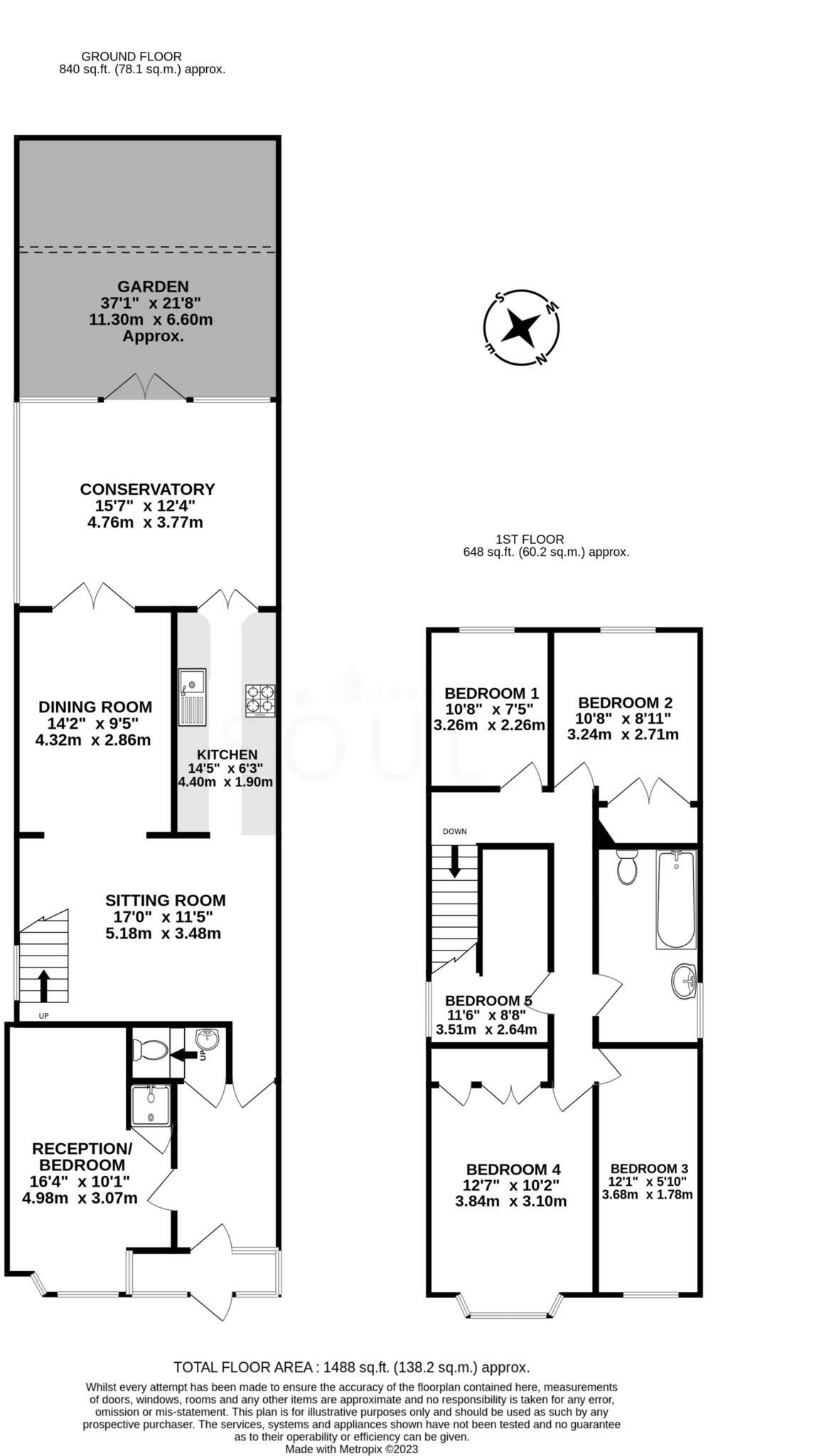
A lovely 5 bedroom detached property in KT4 area. A reception room and spacious family/living room leading to the kitchen and the gorgeous conservatory with a generous private rear garden. On the first floor, 5 bedrooms and a family bathroom. The property also has off street parking for a few cars.
Property Oracle says ..
Therefore, we give this property 7 / 10. *Disclaimer: This is our option and does constitute a recommendation or financial advice. Do your own research. *
- Price
- 7
- Condition
- 6
- Location
- 8
- Land
- 7
- Bedrooms
- 5
- Bathrooms
- 2
- Sqft (est)
- 2,052.25
The heatmap indicates the level of crime in the area. The color of the heatmap indicates the crime severity and recency.
Metrics Year-on-Year
- Average area value
- 866,667.00 £Increased by 67.38 %
- Est sale value
- 954,296.25 £Decreased by 8.10 %
- Average area rental value
- 2,225.00 £/moIncreased by 16.19 %
- Est letting value
- 2,052.25 £/moUnchanged by 0.00 %
- Est rental Yield
- 3.08 %Decreased by 30.63 %
- Crime Rate
- 8.00 %Unchanged by 0.00 %
from 517,784.00 £
from 1,038,438.50 £
from 1,915.00 £/mo
from 2,052.25 £/mo
from 4.44 %
from 8.00 %
Agent Activity
SeOUL Residential created the listing.
Nearby Schools
| Name | Type | Ofsted | Distance |
|---|---|---|---|
| Green Oak Children'S Centre (Formally Nonsuch And Cheam Sure Start Children'S Centre) | Children's Centre | 0.21 KM | |
| Green Oak Children'S Centre (Formally Stonecot And Worcester Park Children'S Centre) | Children's Centre | 0.21 KM | |
| St Cecilia'S Catholic Primary School | Voluntary Aided School | Outstanding | 0.22 KM |
| Brookways School | Other Independent Special School | Good | 0.28 KM |
| Dorchester Primary School | Foundation School | Good | 0.90 KM |
Images
Nearby Streets
| Name | Average Price | Average Sqft | Distance |
|---|---|---|---|
| Stanton Close | £ 0 | 0 | 0.00 KM |
| London Road | £ 239,000 | 0 | 0.00 KM |
| Chiltern Close | £ 500,000 | 0 | 0.00 KM |
| Trafalgar Avenue | £ 396,250 | 0 | 0.00 KM |
| Westbourne Avenue | £ 1,990,000 | 0 | 0.00 KM |
Nearby Transport
| Name | NLC | TLC | Distance |
|---|---|---|---|
| Worcester Park | 5579 | WCP | 2.38 KM |
| West Sutton | 5293 | WSU | 2.45 KM |
| Motspur Park | 5645 | MOT | 2.62 KM |
| Cheam | 5352 | CHE | 2.67 KM |
| Sutton Common | 5436 | SUC | 3.08 KM |
Nearby Listings
| Address | Price | Type | Score | Distance |
|---|---|---|---|---|
| Langley Avenue, Worcester Park | £ 650,000 | BUY | 7 / 10 | 0.00 KM |
| Langley Avenue, Worcester Park, Surrey. KT4 | £ 499,950 | BUY | 7 / 10 | 0.00 KM |
| Covey Road, Worcester Park, KT4 8RA | £ 700,000 | BUY | 7 / 10 | 0.05 KM |
| Langley Avenue, Worcester Park | £ 600,000 | BUY | 7 / 10 | 0.06 KM |
| Langley Avenue, Worcester Park | £ 650,000 | BUY | 6 / 10 | 0.07 KM |
Nearby Properties
| Address | Price | Distance |
|---|---|---|
| 4 Langley Avenue | £ 249,950 | 0.01 KM |
| 44 Langley Avenue | £ 660,000 | 0.01 KM |
| 21 Langley Avenue | £ 305,000 | 0.01 KM |
| 43 Langley Avenue | £ 312,000 | 0.01 KM |
| 32 Langley Avenue | £ 362,000 | 0.01 KM |