Waddington Road, West Bradford, Clitheroe, Lancashire, BB7
By Mortimers Chartered Surveyors
£ 635,000
Reviews
2 out of 5 stars
Mortimers Chartered Surveyors says ..
A delightful detached property nestled in a quiet position within West Bradford village in the Ribble Valley. Extended and offering characterful features, there is a generous amount of outside space and gardens to enjoy, ideal for growing families. With pleasant open aspec...
Property Oracle says ..
The property is located in West Bradford, Clitheroe, Lancashire. The area benefits from relatively close proximity to Clitheroe train station (2.38km), providing access to rail travel. Several primary schools are within a reasonable distance, including Waddington And West Bradford Church Of England Voluntary Aided Primary School (rated ‘Good’ by Ofsted) and Clitheroe Pendle Primary School (rated ‘Outstanding’). However, the provided data does not offer insights into secondary schooling options or the overall quality of local amenities such as shops and other places of significance. More information is needed to provide a comprehensive location assessment.
Based on the provided images, the property shows signs of age and requires some modernisation. Whilst some rooms have undergone recent renovations, particularly the kitchen extension, other areas appear dated and in need of updating. The overall condition is inconsistent, with some areas appearing well-maintained and others requiring attention. The garden also needs some attention.
The property includes a garden of significant size, as seen in the photos. The presence of outbuildings and a pond adds to the overall land area and potential for outdoor use.
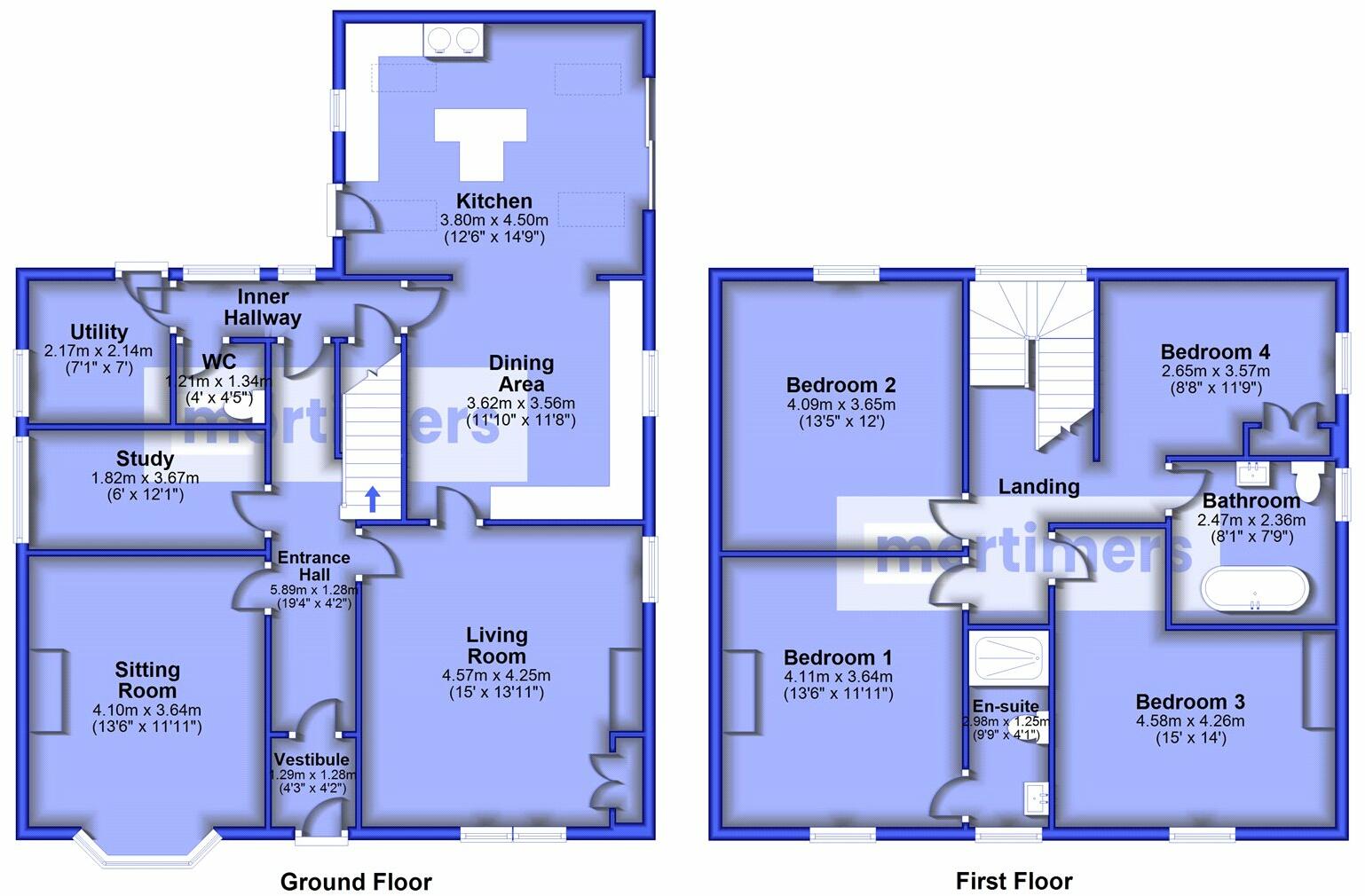
The list price of £635,000 is significantly higher than the average house price in the area (£237,980). However, without square footage information for comparable properties, it is challenging to determine if this price reflects the property’s size and features accurately. The average price per square foot in the area is £430, and while the property’s size is given as 1,680.25 sqft, this would suggest a price significantly above average. The lack of comparable properties’ square footage data hinders a more precise price-per-square-foot comparison and a conclusive assessment of the property’s value. Further information is required to provide a complete price assessment.
Therefore, we give this property 5 / 10. *Disclaimer: This is our option and does constitute a recommendation or financial advice. Do your own research. *
- Price
- 4
- Condition
- 6
- Location
- 0
- Land
- 7
- Bedrooms
- 4
- Bathrooms
- 2
- Sqft (est)
- 1,680.25
The heatmap indicates the level of crime in the area. The color of the heatmap indicates the crime severity and recency.
Metrics Year-on-Year
- Average area value
- 629,996.00 £Increased by 71.74 %
- Est sale value
- 1,060,237.75 £Increased by 109.63 %
- Average area rental value
- 949.00 £/moIncreased by 5.44 %
- Est letting value
- 0.00 £/mo
- Est rental Yield
- 1.81 %Decreased by 38.44 %
- Crime Rate
- 18.00 %Unchanged by 0.00 %
Agent Activity
Mortimers Chartered Surveyors created the listing.
Nearby Schools
| Name | Type | Ofsted | Distance |
|---|---|---|---|
| Waddington And West Bradford Church Of England Voluntary Aided Primary School | Voluntary Aided School | Good | 1.12 KM |
| Moorland School Limited | Other Independent School | 1.48 KM | |
| Clitheroe Pendle Primary School | Community School | Outstanding | 2.18 KM |
| Clitheroe Royal Grammar School | Academy Converter | 2.35 KM | |
| St Michael And St John'S Roman Catholic Primary School, Clitheroe | Voluntary Aided School | Requires improvement | 2.77 KM |
Images
Nearby Streets
| Name | Average Price | Average Sqft | Distance |
|---|---|---|---|
| Eaves Hall Lane | £ 0 | 0 | 0.00 KM |
| Moorland Avenue | £ 350,000 | 0 | 0.00 KM |
| Maytree Close | £ 0 | 0 | 0.00 KM |
| Park Avenue | £ 225,000 | 0 | 0.00 KM |
Nearby Transport
| Name | NLC | TLC | Distance |
|---|---|---|---|
| Clitheroe | 2574 | CLH | 2.38 KM |
| Whalley (Lancashire) | 2736 | WHE | 8.11 KM |
Nearby Listings
| Address | Price | Type | Score | Distance |
|---|---|---|---|---|
| Waddington Road, West Bradford, Clitheroe, Lancashire, BB7 | £ 635,000 | BUY | 5 / 10 | 0.00 KM |
| Chapel Lane, West Bradford, Ribble Valley | £ 50,000 | BUY | 5 / 10 | 0.19 KM |
| Clitheroe Road, West Bradford, Clitheroe BB7 | £ 775,000 | BUY | 7 / 10 | 0.20 KM |
| Orchard Villas, West Bradford | £ 375,000 | BUY | 7 / 10 | 0.23 KM |
| Eaves Hall Lane, West Bradford, Clitheroe, Lancashire | £ 525,000 | BUY | 7 / 10 | 0.30 KM |
Nearby Properties
| Address | Price | Distance |
|---|---|---|
| Millstone House | £ 535,000 | 0.04 KM |
| 2 Millstone Cottages | £ 360,000 | 0.06 KM |
| Brook House | £ 365,000 | 0.19 KM |
| West Bank | £ 249,000 | 0.22 KM |
| Netherwood | £ 155,000 | 0.23 KM |