The Length , St. Nicholas At Wade , Kent, CT7 0PW
By Hilden Management Limited
£ 415,000
Reviews
4 out of 5 stars
Hilden Management Limited says ..
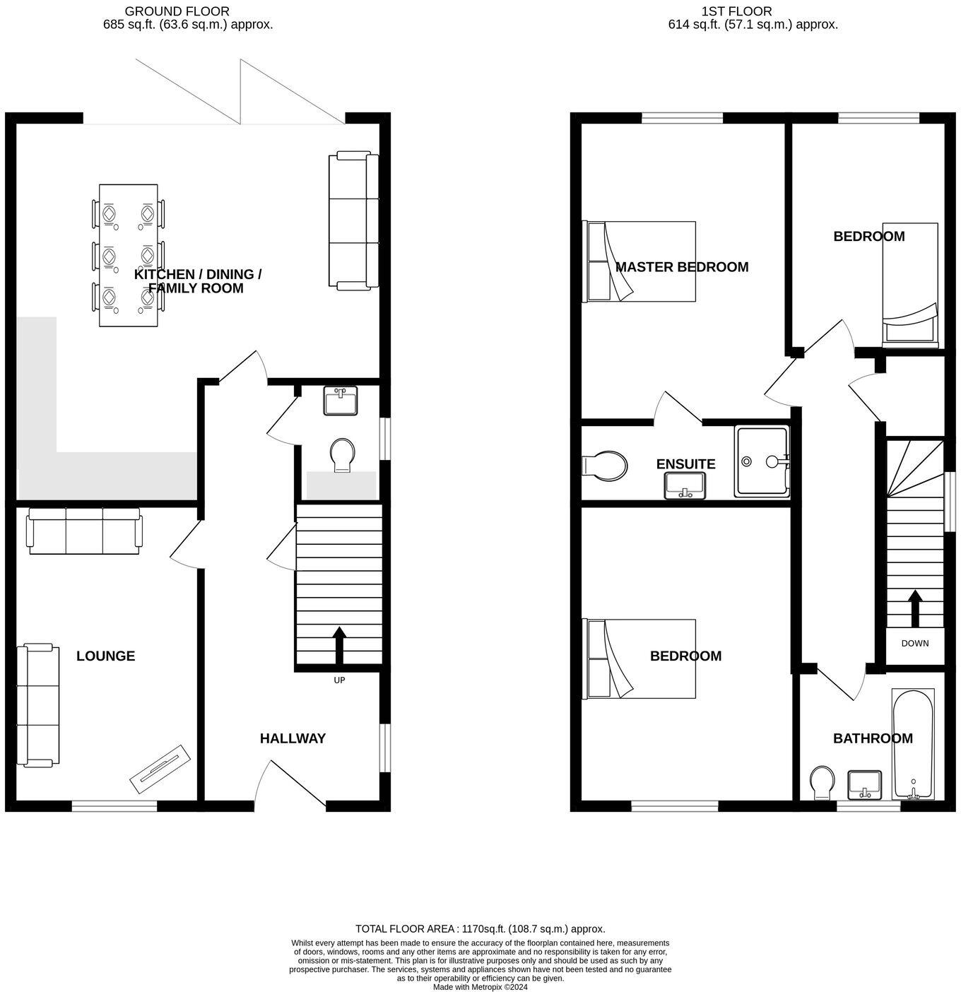
This three-bedroom link-detached home meets a multitude of criteria. Constructed with a charming country aesthetic and detailed with hung tiles, this property boasts an outstanding open-plan kitchen, living, and dining area, complete with bi-fold doors that open onto a picturesque rear garden....
Property Oracle says ..
This property is a modern link detached house located in St. Nicholas at Wade, Kent. The location benefits from being within a reasonable distance of local amenities and transport links, including the Southeastern train line. The property itself appears to be in excellent condition, newly built or recently renovated to a high standard. It features a good-sized garden, adding to its appeal. While the list price is slightly above the average price per square foot for the area, this is justifiable considering the property’s modern condition, desirable features, and the relatively small plot size compared to other properties in the area. The overall impression is of a well-presented, modern home in a convenient location.
Therefore, we give this property 8 / 10. *Disclaimer: This is our option and does constitute a recommendation or financial advice. Do your own research. *
- Price
- 7
- Condition
- 10
- Location
- 8
- Land
- 7
- Bedrooms
- 3
- Bathrooms
- 2
- Sqft (est)
- 1,020.00
- Lot (est)
- 1,170.00
The heatmap indicates the level of crime in the area. The color of the heatmap indicates the crime severity and recency.
Metrics Year-on-Year
- Average area value
- 381,857.00 £Increased by 4.46 %
- Est sale value
- 381,480.00 £Increased by 4.47 %
- Average area rental value
- 2,250.00 £/moIncreased by 41.60 %
- Est letting value
- 2,040.00 £/moIncreased by 100.00 %
- Est rental Yield
- 7.07 %Increased by 35.44 %
- Crime Rate
- 45.00 %Unchanged by 0.00 %
Agent Activity
Hilden Management Limited created the listing.
Nearby Schools
| Name | Type | Ofsted | Distance |
|---|---|---|---|
| St Nicholas At Wade Church Of England Primary School | Voluntary Controlled School | Good | 0.68 KM |
| Monkton Church Of England Primary School | Voluntary Controlled School | Good | 3.34 KM |
| Birchington Church Of England Primary School | Voluntary Controlled School | Good | 6.17 KM |
| Birchington Children'S Centre | Children's Centre | 6.22 KM | |
| Preston Primary School | Community School | Good | 6.33 KM |
Images
Nearby Streets
| Name | Average Price | Average Sqft | Distance |
|---|---|---|---|
| Orchard Close | £ 404,000 | 0 | 0.00 KM |
| The Finches | £ 0 | 0 | 0.00 KM |
| Thanet Way | £ 179,995 | 0 | 0.00 KM |
| St. Nicholas Park | £ 0 | 0 | 0.00 KM |
Nearby Transport
| Name | NLC | TLC | Distance |
|---|---|---|---|
| Birchington-On-Sea | 5163 | BCH | 5.77 KM |
| Minster | 5019 | MSR | 7.32 KM |
| Westgate-On-Sea | 5195 | WGA | 9.70 KM |
Nearby Listings
| Address | Price | Type | Score | Distance |
|---|---|---|---|---|
| The Length , St. Nicholas At Wade , Kent, CT7 0PW | £ 415,000 | BUY | 8 / 10 | 0.00 KM |
| The Length , St. Nicholas At Wade , Kent, CT7 0PW | £ 415,000 | BUY | 7 / 10 | 0.00 KM |
| The Length, St. Nicholas At Wade, Birchington, Kent, CT7 | £ 365,000 | BUY | Unknown | 0.10 KM |
| Manor Road, St. Nicholas At Wade, Birchington, Kent | £ 315,000 | BUY | 7 / 10 | 0.10 KM |
| St Nicholas At Wade , Birchington , CT7 0NY | £ 595,000 | BUY | 7 / 10 | 0.11 KM |
Nearby Properties
| Address | Price | Distance |
|---|---|---|
| Alpha Cottage | £ 440,000 | 0.01 KM |
| Walmer Cottage | £ 180,000 | 0.01 KM |
| Engelberg | £ 221,750 | 0.10 KM |
| Alberta | £ 155,000 | 0.12 KM |
| Queensland | £ 665,000 | 0.12 KM |