Ripley Castle, Ripley, Near Harrogate, North Yorkshire, HG3
By Carter Jonas
£ 15,000,000
Reviews
4 out of 5 stars
Carter Jonas says ..
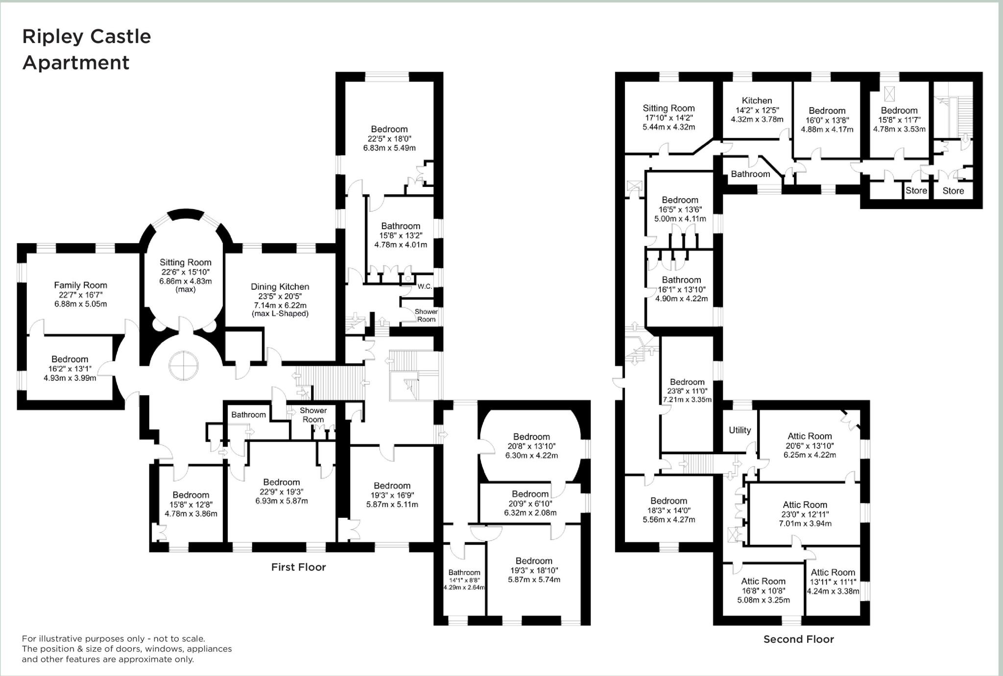
An historic 14th Century Grade I listed Castle on the edge of the Yorkshire Dales including The Castle Apartment, East Wing, Estate Offices, Coffee shop, Gift shop, Tea room, Gatehouse, Ornamental gardens and parkland, lakes and deer park extending to some 166 acres.
Property Oracle says ..
This listing presents a unique opportunity to acquire Ripley Castle, a significant Grade I listed historical property situated in the desirable village of Ripley, near Harrogate, North Yorkshire. The property includes an extensive estate of over 166 acres incorporating beautiful gardens, parkland, lakes, and potentially other outbuildings or structures. The castle itself appears to be in good condition, with photographic evidence showing well-preserved architectural details and various interiors showcasing a mix of original features and modern updates. The property’s location in the picturesque village of Ripley provides a peaceful and idyllic setting, while also being conveniently located near the amenities of Harrogate, a highly sought-after location. The proximity to schools is also noteworthy. The asking price is substantial, reflective of the rarity and uniqueness of owning such a historical property, and a comprehensive valuation would be required to fully ascertain its market worth and assess the price against other high-value estates. The lack of precise square footage data for the whole estate presents a challenge for a detailed square foot price analysis. Overall, this is a significant property that offers a rare opportunity to own a piece of history and extensive acreage in a highly sought-after part of the UK.
Therefore, we give this property 8 / 10. *Disclaimer: This is our option and does constitute a recommendation or financial advice. Do your own research. *
- Price
- 7
- Condition
- 8
- Location
- 7
- Land
- 10
- Bedrooms
- 0
- Bathrooms
- 0
- Sqft (est)
- 18,170.24
The heatmap indicates the level of crime in the area. The color of the heatmap indicates the crime severity and recency.
Metrics Year-on-Year
- Average area value
- 545,000.00 £Increased by 23.83 %
- Est sale value
- 9,139,630.72 £Increased by 86.30 %
- Average area rental value
- 1,381.00 £/moDecreased by 24.49 %
- Est letting value
- 18,170.24 £/moUnchanged by 0.00 %
- Est rental Yield
- 3.04 %Decreased by 39.08 %
- Crime Rate
- 17.00 %Unchanged by 0.00 %
Agent Activity
Carter Jonas created the listing.
Nearby Schools
| Name | Type | Ofsted | Distance |
|---|---|---|---|
| Ripley Endowed Church Of England School | Voluntary Controlled School | Requires improvement | 0.29 KM |
| Killinghall Church Of England Primary School | Voluntary Controlled School | Good | 2.29 KM |
| Saltergate Infant School | Community School | Good | 3.94 KM |
| Saltergate Community Junior School | Community School | Requires improvement | 3.94 KM |
| Harrogate West Children'S Centre | Children's Centre | 4.01 KM |
Images
Nearby Streets
| Name | Average Price | Average Sqft | Distance |
|---|---|---|---|
| Chantry Court | £ 0 | 0 | 0.00 KM |
| Hollybank Lane | £ 0 | 0 | 0.00 KM |
| Birthwaite Lane | £ 1,250,000 | 0 | 0.00 KM |
Nearby Transport
| Name | NLC | TLC | Distance |
|---|---|---|---|
| Harrogate | 8213 | HGT | 6.36 KM |
| Hornbeam Park | 8212 | HBP | 8.25 KM |
| Starbeck | 8221 | SBE | 8.90 KM |
| Pannal | 8479 | PNL | 9.98 KM |
Nearby Listings
| Address | Price | Type | Score | Distance |
|---|---|---|---|---|
| Ripley Castle, Ripley, Near Harrogate, North Yorkshire, HG3 | £ 15,000,000 | BUY | 8 / 10 | 0.00 KM |
| The Ripley Castle Estate, Ripley, Near Harrogate, North Yorkshire, HG3 | £ 21,000,000 | BUY | 8 / 10 | 0.01 KM |
| Ripley Estate Woodland, Ripley, Near Harrogate, North Yorkshire, HG3 | £ 650,000 | BUY | 6 / 10 | 0.08 KM |
| The Boars Head Hotel & Birchwood House Annexe, Ripley, Near Harrogate, North Yorkshire, HG3 | £ 2,250,000 | BUY | Unknown | 0.26 KM |
| The Village Store, Ripley, Near Harrogate, North Yorkshire, HG3 | £ 850,000 | BUY | 5 / 10 | 0.30 KM |
Nearby Properties
| Address | Price | Distance |
|---|---|---|
| 6 Chantry Court | £ 550,000 | 0.18 KM |
| 1 Chantry Court | £ 570,000 | 0.18 KM |
| 5 Chantry Court | £ 320,000 | 0.18 KM |
| 3 Town Hall Cottages | £ 335,000 | 0.32 KM |
| 4 Town Hall Cottages | £ 340,000 | 0.32 KM |