Horseshoe Lane East, Merrow, GU1
By Chantries and Pewleys Estate Agents
£ 1,100,000
Reviews
3 out of 5 stars
Chantries and Pewleys Estate Agents says ..
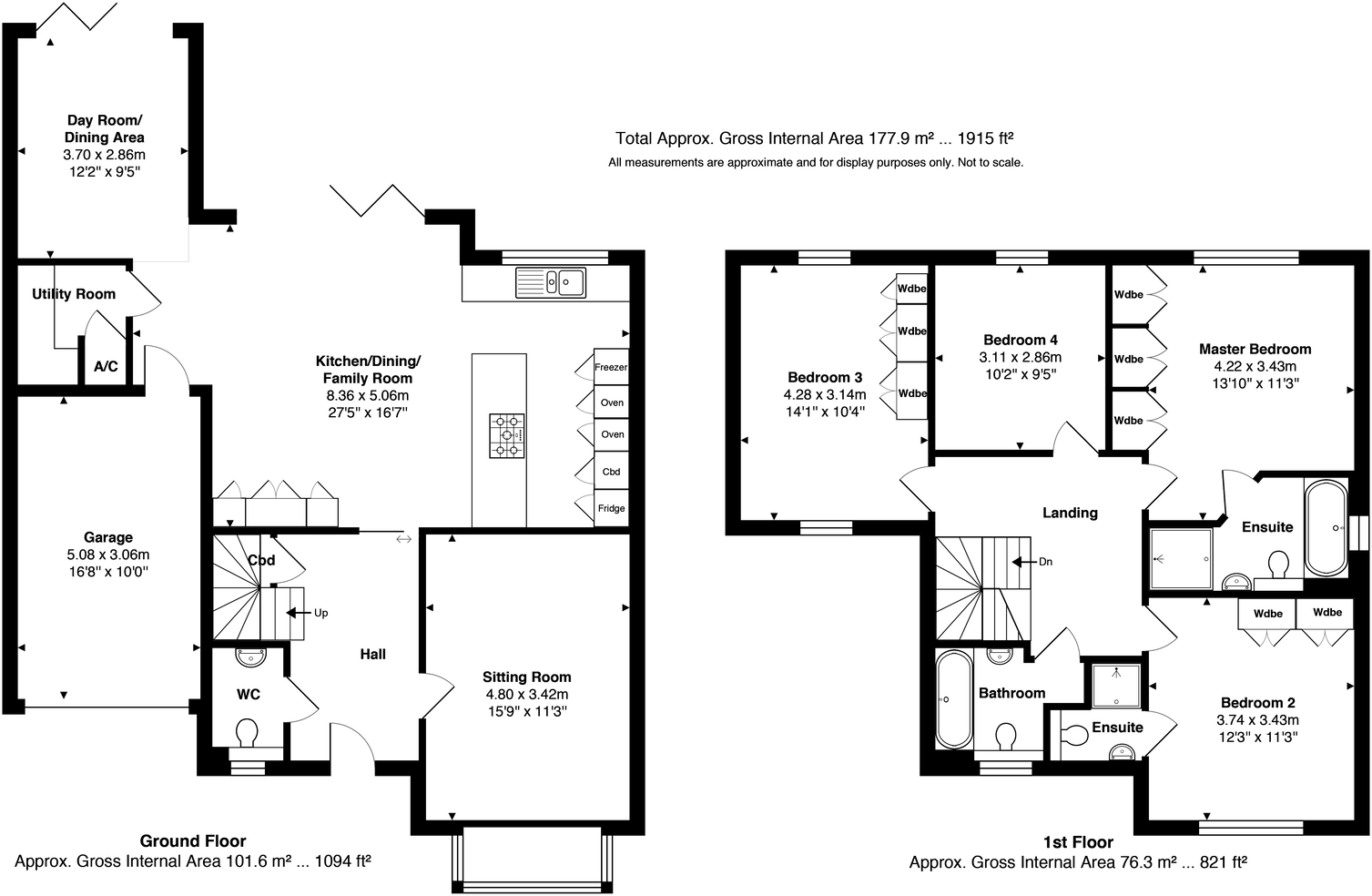
Beautifully appointed four-bedroom family home, close to excellent schools and Merrow Downs. Built in 2016 and finished to an exacting standard, 85 Horseshoe Lane East is a beautifully presented four-bedroom family home.
Property Oracle says ..
This four-bedroom, three-bathroom house located on Horseshoe Lane East in Merrow, Guildford, is presented in excellent condition. The property boasts a modern and stylish interior with updated kitchen and bathrooms. The images showcase a well-maintained and contemporary design throughout.
The location in Merrow is highly desirable, offering proximity to well-regarded schools, including St Peter’s Catholic School and Bushy Hill Junior School. The nearby Merrow Downs provides ample green space for recreation. Guildford town centre, with its extensive amenities, is also easily accessible.
While the images indicate a sizeable garden, the provided plot size of 0.00 sqft is inconsistent and requires clarification. This uncertainty affects the complete evaluation of the property.
The price of £1,100,000 falls within the range of similar properties in the area, although definitive comparison is limited by the lack of precise square footage data for nearby properties. The overall presentation and desirable location justify the price point; however, the unconfirmed plot size affects the overall assessment of its value.
Therefore, we give this property 7 / 10. *Disclaimer: This is our option and does constitute a recommendation or financial advice. Do your own research. *
- Price
- 7
- Condition
- 8
- Location
- 9
- Land
- 7
- Bedrooms
- 4
- Bathrooms
- 3
- Sqft (est)
- 1,914.90
The heatmap indicates the level of crime in the area. The color of the heatmap indicates the crime severity and recency.
Metrics Year-on-Year
- Average area value
- 891,667.00 £Increased by 21.04 %
- Est sale value
- 1,198,727.40 £Increased by 89.70 %
- Average area rental value
- 2,393.00 £/moIncreased by 18.17 %
- Est letting value
- 1,914.90 £/mo
- Est rental Yield
- 3.22 %Decreased by 2.42 %
- Crime Rate
- 6.00 %Unchanged by 0.00 %
Agent Activity
Chantries and Pewleys Estate Agents created the listing.
Nearby Schools
| Name | Type | Ofsted | Distance |
|---|---|---|---|
| St Peter'S Catholic School | Academy Converter | 0.19 KM | |
| St Thomas Of Canterbury Catholic Primary School | Academy Converter | 0.56 KM | |
| Bushy Hill Junior School | Foundation School | Good | 0.70 KM |
| Boxgrove Sure Start Children'S Centre | Children's Centre | 0.80 KM | |
| Boxgrove Primary School | Academy Converter | Good | 0.85 KM |
Images
Nearby Streets
| Name | Average Price | Average Sqft | Distance |
|---|---|---|---|
| White House Drive | £ 1,075,000 | 0 | 0.00 KM |
| Urnfield Close | £ 0 | 0 | 0.00 KM |
| Highgrove | £ 250,000 | 0 | 0.00 KM |
| Kingfisher Court | £ 250,000 | 0 | 0.00 KM |
| Merrow Common Road | £ 1,049,975 | 1,232 | 0.00 KM |
Nearby Transport
| Name | NLC | TLC | Distance |
|---|---|---|---|
| London Road (Guildford) | 5632 | LRD | 3.09 KM |
| Chilworth | 5296 | CHL | 3.60 KM |
| Clandon | 5555 | CLA | 4.38 KM |
| Shalford (Surrey) | 5638 | SFR | 4.71 KM |
| Guildford | 5631 | GLD | 4.83 KM |
Nearby Listings
| Address | Price | Type | Score | Distance |
|---|---|---|---|---|
| Horseshoe Lane East, Merrow, GU1 | £ 1,100,000 | BUY | 7 / 10 | 0.00 KM |
| Horseshoe Lane East, Guildford, Surrey, GU1 | £ 400,000 | BUY | 8 / 10 | 0.05 KM |
| Laustan Close, Merrow, GU1 | £ 450,000 | BUY | 7 / 10 | 0.20 KM |
| Merrow Croft, Guildford, Surrey, GU1 | £ 1,575,000 | BUY | 7 / 10 | 0.21 KM |
| Merrow Croft, GU1 | £ 1,100,000 | BUY | 7 / 10 | 0.21 KM |
Nearby Properties
| Address | Price | Distance |
|---|---|---|
| 83 Horseshoe Lane East | £ 999,950 | 0.01 KM |
| 85 Horseshoe Lane East | £ 960,000 | 0.01 KM |
| 70a Horseshoe Lane East | £ 1,000,000 | 0.01 KM |
| 97 Horseshoe Lane East | £ 1,095,000 | 0.01 KM |
| 78 Horseshoe Lane East | £ 510,000 | 0.02 KM |