Peareswood Gardens, Stanmore
GI

Peareswood Gardens, Stanmore

By Gibbs Gillespie

£ 640,000

Reviews

3 out of 5 stars

Gibbs Gillespie says ..

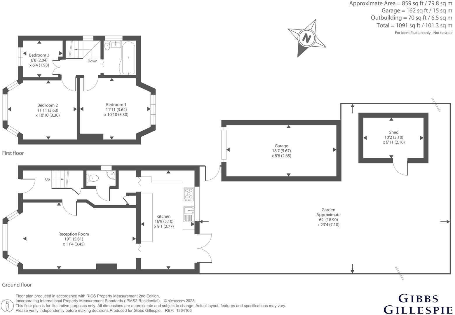
Presenting this charming three-bedroom semi-detached family home. Located in a sought-after family friendly neighbourhood, minutes away from outstanding local schools including Krishna Avanti House, parks, transport links and amenities. The accommodation comprises of a bright and spaci...

Property Oracle says ..

This is a three-bedroom semi-detached house located in Belmont, Stanmore. The property offers a garden with a shed and off street parking. The house appears to be in generally good condition, with a modern kitchen and bathroom, but could benefit from some cosmetic updates. The location is convenient for schools, with Park High School being a notable option. Transportation links are a bit further away. Considering the location, condition, and size, the asking price of £640,000 seems reasonable and potentially represents good value in the current market. The property is likely to appeal to families looking for a home in a good school district.

Therefore, we give this property 6 / 10. *Disclaimer: This is our option and does constitute a recommendation or financial advice. Do your own research. *

Price
7
Condition
7
Location
7
Land
6
Bedrooms
3
Bathrooms
1
Sqft (est)
859.00
Lot (est)
1,444.00

The heatmap indicates the level of crime in the area. The color of the heatmap indicates the crime severity and recency.

Metrics Year-on-Year

Average area value
426,436.00 £
Decreased by 1.59 %
from 433,305.00 £
Est sale value
413,179.00 £
Increased by 21.77 %
from 339,305.00 £
Average area rental value
1,587.00 £/mo
Decreased by 7.46 %
from 1,715.00 £/mo
Est letting value
859.00 £/mo
Unchanged by 0.00 %
from 859.00 £/mo
Est rental Yield
4.47 %
Decreased by 5.89 %
from 4.75 %
Crime Rate
3.00 %
Unchanged by 0.00 %
from 3.00 %

Agent Activity

  • Gibbs Gillespie created the listing.

Nearby Schools

NameTypeOfstedDistance
Park High SchoolAcademy ConverterOutstanding0.44 KM
Kenmore Park Junior SchoolCommunity SchoolGood0.81 KM
Kenmore Park Infant And Nursery SchoolCommunity SchoolGood0.81 KM
Whitchurch Primary School & NurseryCommunity SchoolGood0.89 KM
Kenmore Park Children'S CentreChildren's Centre Linked Site0.90 KM

Images

1364166-23-68e794... 1364166-14-68e792... 1364166-10-68e792... 1364166-17-68e793... 1364166-15-68e793... 1364166-2-68e7905... 1364166-4-68e790f... Picture No. 52 1364166-8-68e791a... 1364166-21-68e794... 1364166-20-68e794... 1364166-22-68e794... 1364166-16-68e793... 1364166-18-68e793... 1364166-13-68e792... 1364166-12-68e792... 1364166-11-68e792... 1364166-1-68e7900... 1364166-3-68e790a... 1364166-7-68e7918... 1364166-19-68e794...

Nearby Streets

NameAverage PriceAverage SqftDistance
Chichester Court £ 351,65000.00 KM
Court Close £ 000.00 KM
Coombe Close £ 000.00 KM
Glebe Lane £ 355,00000.00 KM
Lowther Road £ 331,66700.00 KM

Nearby Transport

NameNLCTLCDistance
Kenton1399KNT2.98 KM
South Kenton1453SOK3.63 KM
Harrow And Wealdstone1397HRW4.12 KM
North Wembley1422NWB4.34 KM
Harrow-On-The-Hill598HOH4.94 KM

Nearby Listings

AddressPriceTypeScoreDistance
Peareswood Gardens, Stanmore £ 640,000BUY6 / 100.00 KM
Peareswood Gardens, Stanmore, HA7 £ 795,000BUY7 / 100.05 KM
Peareswood Gardens, Stanmore, HA7 £ 800,000BUY7 / 100.06 KM
Anmersh Grove, Stanmore, Middlesex £ 750,000BUY6 / 100.09 KM
Peareswood Gardens, Stanmore, HA7 £ 595,000BUYUnknown0.09 KM

Nearby Properties

AddressPriceDistance
6 Peareswood Gardens £ 331,5000.01 KM
26 Peareswood Gardens £ 545,0000.01 KM
22 Peareswood Gardens £ 450,0000.01 KM
34 Peareswood Gardens £ 325,0000.01 KM
52 Peareswood Gardens £ 370,0000.01 KM