70 Knyverton Road, Bournemouth,
By Christopher Shaw Residential
£ 200,000
Reviews
3 out of 5 stars
Christopher Shaw Residential says ..
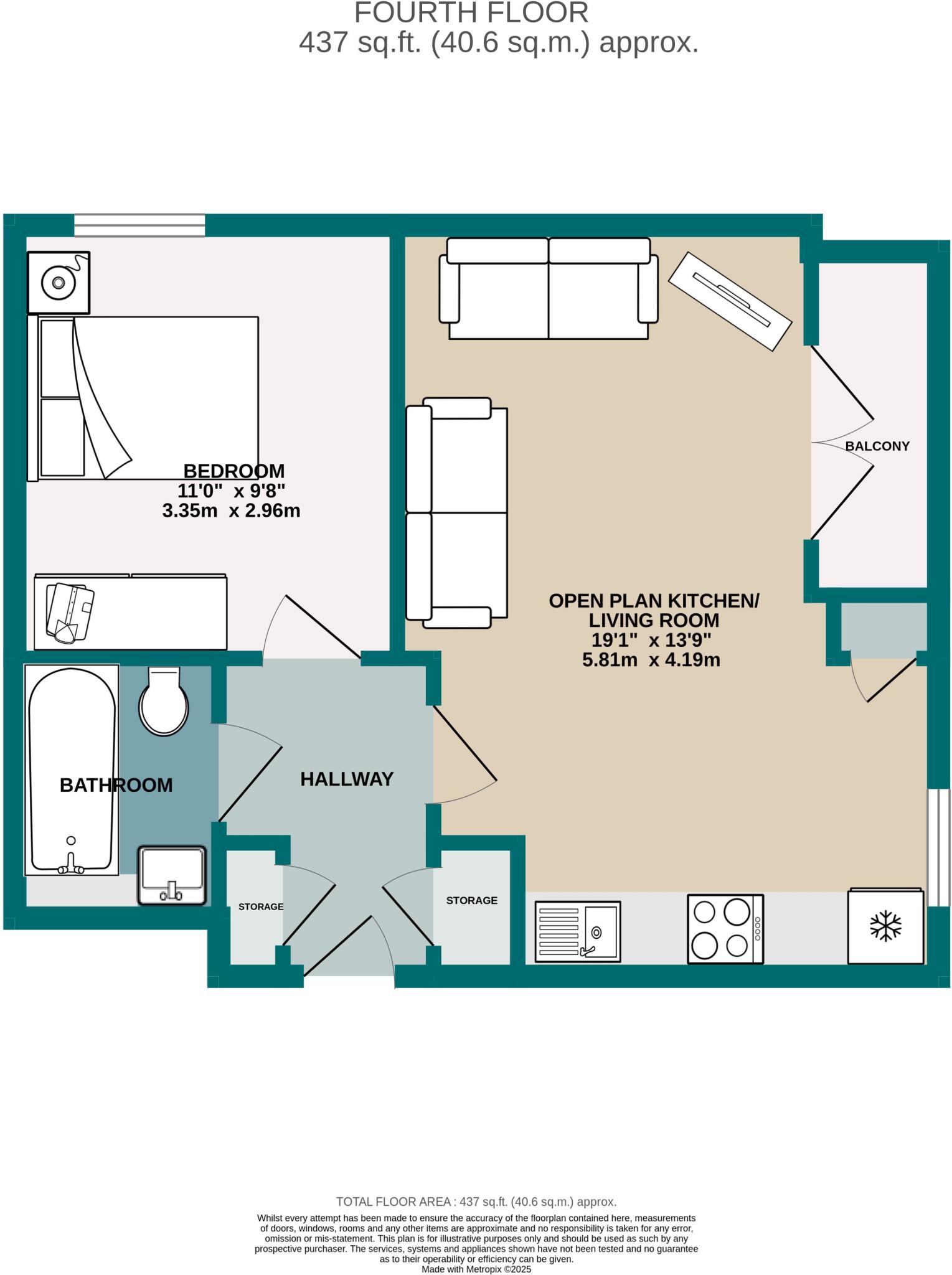
MRKT Property Experts are delighted to present this smart one bedroom apartment in the exclusive Exton Gardens development, which offers communal gym, sauna and swimming pool!
Property Oracle says ..
The property is a well-presented 1-bedroom flat in a convenient Bournemouth location. While smaller than the average property in the area, its modern condition and access to communal amenities, including a swimming pool and gym, are attractive features. The list price may represent good value, but a detailed comparison with similar properties is necessary to confirm this. The lack of private outdoor space is a notable drawback.
Therefore, we give this property 6 / 10. *Disclaimer: This is our option and does constitute a recommendation or financial advice. Do your own research. *
- Price
- 7
- Condition
- 9
- Location
- 8
- Land
- 3
- Bedrooms
- 1
- Bathrooms
- 1
- Sqft (est)
- 437.01
The heatmap indicates the level of crime in the area. The color of the heatmap indicates the crime severity and recency.
Metrics Year-on-Year
- Average area value
- 219,474.00 £Decreased by 15.67 %
- Est sale value
- 125,421.87 £Decreased by 17.29 %
- Average area rental value
- 1,322.00 £/moDecreased by 1.42 %
- Est letting value
- 437.01 £/moUnchanged by 0.00 %
- Est rental Yield
- 7.23 %Increased by 16.99 %
- Crime Rate
- 13.00 %Unchanged by 0.00 %
Agent Activity
Christopher Shaw Residential created the listing.
Nearby Schools
| Name | Type | Ofsted | Distance |
|---|---|---|---|
| Kings Bournemouth | Other Independent School | Good | 0.89 KM |
| Livingstone Academy Bournemouth | Free Schools | 1.04 KM | |
| Bournemouth Christian School | Other Independent School | Good | 1.22 KM |
| St Michael'S Church Of England Primary School | Academy Converter | Good | 1.27 KM |
| St Martin'S School | Other Independent School | 1.74 KM |
Images
Nearby Streets
| Name | Average Price | Average Sqft | Distance |
|---|---|---|---|
| Old Christchurch Road | £ 0 | 0 | 0.00 KM |
| F.P. No 008 | £ 0 | 0 | 0.00 KM |
| Granville Place | £ 50,000 | 0 | 0.00 KM |
| Pier Approach | £ 0 | 0 | 0.00 KM |
| Dalkeith Lane | £ 232,500 | 0 | 0.00 KM |
Nearby Transport
| Name | NLC | TLC | Distance |
|---|---|---|---|
| Bournemouth | 5876 | BMH | 1.61 KM |
| Branksome | 5875 | BSM | 4.83 KM |
| Pokesdown | 5885 | POK | 5.86 KM |
| Parkstone (Dorset) | 5882 | PKS | 7.88 KM |
Nearby Listings
| Address | Price | Type | Score | Distance |
|---|---|---|---|---|
| 70 Knyverton Road, Bournemouth, | £ 200,000 | BUY | 6 / 10 | 0.00 KM |
| Bournemouth | £ 175,000 | BUY | 6 / 10 | 0.09 KM |
| Bournemouth | £ 145,000 | BUY | 6 / 10 | 0.17 KM |
| Adelaide Lane, Bournemouth, BH1 | £ 120,000 | BUY | 5 / 10 | 0.17 KM |
| Hinton Road, Bournemouth | £ 149,950 | BUY | 6 / 10 | 0.17 KM |
Nearby Properties
| Address | Price | Distance |
|---|---|---|
| 60a Old Christchurch Road | £ 480,000 | 0.19 KM |
| 12a Albert Road | £ 123,500 | 0.21 KM |
| 6a Albert Road | £ 175,000 | 0.21 KM |
| 69a Old Christchurch Road | £ 82,696 | 0.23 KM |
| 79 Old Christchurch Road | £ 480,000 | 0.23 KM |