Bradleys says ..
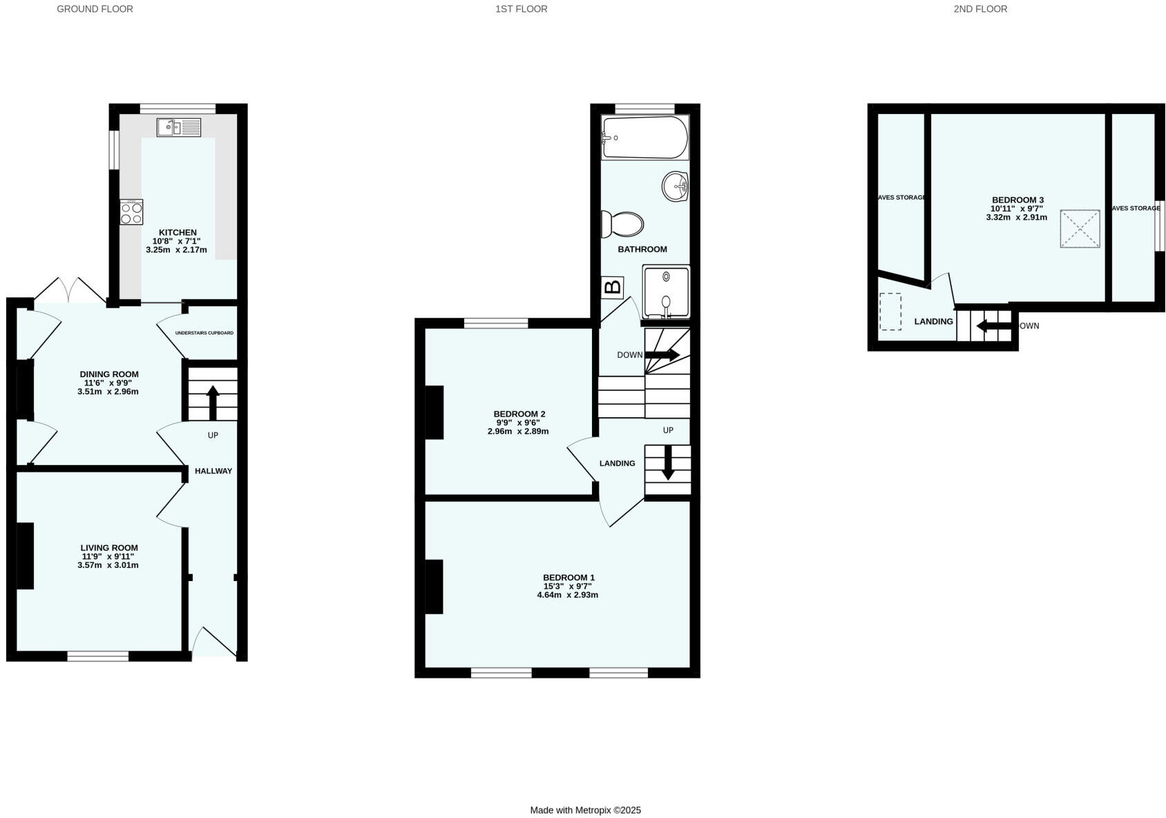
NO ONWARD CHAIN Located in the sought after area of St Thomas, this immaculately presented three double bedroom Victorian terrace is offered to the market with no onward chain. The property blends, period charm with modern finishes and is an ideal home for young families, first time buy...
Property Oracle says ..
Therefore, we give this property 7 / 10. *Disclaimer: This is our option and does constitute a recommendation or financial advice. Do your own research. *
- Price
- 8
- Condition
- 7
- Location
- 8
- Land
- 6
- Bedrooms
- 3
- Bathrooms
- 1
- Sqft (est)
- 645.73
The heatmap indicates the level of crime in the area. The color of the heatmap indicates the crime severity and recency.
Metrics Year-on-Year
- Average area value
- 421,780.00 £Increased by 21.83 %
- Est sale value
- 364,191.72 £Increased by 75.70 %
- Average area rental value
- 1,390.00 £/moDecreased by 6.33 %
- Est letting value
- 645.73 £/moUnchanged by 0.00 %
- Est rental Yield
- 3.95 %Decreased by 23.15 %
- Crime Rate
- 8.00 %Unchanged by 0.00 %
from 346,205.00 £
from 207,279.33 £
from 1,484.00 £/mo
from 645.73 £/mo
from 5.14 %
from 8.00 %
Agent Activity
Bradleys created the listing.
Nearby Schools
| Name | Type | Ofsted | Distance |
|---|---|---|---|
| St Thomas Primary School | Academy Converter | Good | 0.06 KM |
| Montgomery Primary School | Foundation School | Good | 0.66 KM |
| West Exe Nursery School | Local Authority Nursery School | Outstanding | 0.75 KM |
| West Exe Children'S Centre | Children's Centre | 0.86 KM | |
| West Exe School | Academy Sponsor Led | 0.95 KM |
Images
Nearby Streets
| Name | Average Price | Average Sqft | Distance |
|---|---|---|---|
| St Edmunds Court | £ 0 | 0 | 0.00 KM |
| Edwin Road | £ 0 | 0 | 0.00 KM |
| Dyers Court | £ 0 | 0 | 0.00 KM |
| Clarence Road | £ 0 | 0 | 0.00 KM |
| Waterloo Road | £ 0 | 0 | 0.00 KM |
Nearby Transport
| Name | NLC | TLC | Distance |
|---|---|---|---|
| Exeter St Thomas | 3414 | EXT | 0.17 KM |
| Exeter Central | 5755 | EXC | 1.37 KM |
| Exeter St David'S | 3410 | EXD | 1.58 KM |
| St James Park (Exeter) | 5751 | SJP | 2.56 KM |
| Polsloe Bridge | 3422 | POL | 4.46 KM |
Nearby Listings
| Address | Price | Type | Score | Distance |
|---|---|---|---|---|
| Cecil Road, Exeter, Devon | £ 260,000 | BUY | 7 / 10 | 0.00 KM |
| Cecil Road, St.Thomas, EX2 | £ 240,000 | BUY | 7 / 10 | 0.01 KM |
| Cecil Road, Exeter, Devon, EX2 | £ 174,250 | BUY | 7 / 10 | 0.01 KM |
| Cecil Road, Exeter | £ 280,000 | BUY | 5 / 10 | 0.01 KM |
| Oxford Street, Exeter, Devon | £ 260,000 | BUY | 7 / 10 | 0.03 KM |
Nearby Properties
| Address | Price | Distance |
|---|---|---|
| 37 Cecil Road | £ 142,000 | 0.01 KM |
| 55 Cecil Road | £ 220,000 | 0.01 KM |
| 54 Cecil Road | £ 155,000 | 0.01 KM |
| 12 Cecil Road | £ 166,000 | 0.01 KM |
| 24 Cecil Road | £ 162,500 | 0.01 KM |