Haybrook says ..
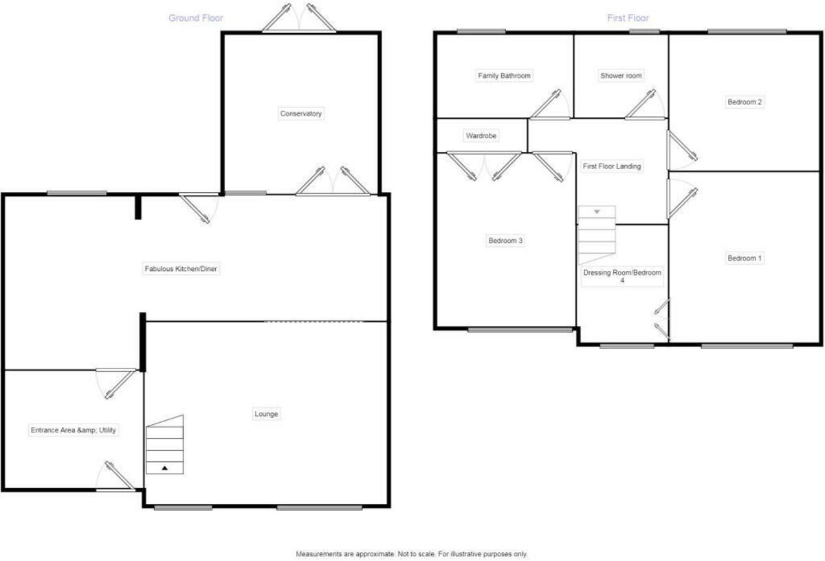
Stop! Look at this lovely semi detached property located in a fabulous part of Wombwell, perfect for the growing family and ready to view today with Haybrook. THE FOURTH BEDROOM HAS BEEN TASTEFULLY CHANGED INTO A CHANGING ROOM
Property Oracle says ..
This three-bedroom semi-detached house in Wombwell, Barnsley offers a potentially attractive proposition for families or those seeking a home in a reasonably convenient location. The property benefits from a seemingly well-maintained interior and what appears to be a decent-sized garden. The kitchen has been recently modernised. The photos depict a modern, updated interior showing a clean and tidy space. The property’s proximity to local schools such as Kings Oak Primary Learning Centre (Outstanding Ofsted rating), and Wombwell Train Station adds to its appeal, making commuting and access to essential services straightforward. However, without knowing the precise square footage and having only visual evidence of the property’s condition, a thorough structural survey would be recommended to assess any potential maintenance or repair costs in the near future. The lack of provided square footage makes a truly accurate price comparison difficult. The price appears competitive within the parameters of available comparable properties, but more data is needed for a firm conclusion. A buyer should obtain a full survey and property valuation before purchasing.
Therefore, we give this property 7 / 10. *Disclaimer: This is our option and does constitute a recommendation or financial advice. Do your own research. *
- Price
- 7
- Condition
- 8
- Location
- 7
- Land
- 6
- Bedrooms
- 3
- Bathrooms
- 2
The heatmap indicates the level of crime in the area. The color of the heatmap indicates the crime severity and recency.
Metrics Year-on-Year
- Average area value
- 956,598.00 £Increased by 11.44 %
- Average area rental value
- 2,934.00 £/moIncreased by 6.69 %
- Est rental Yield
- 3.68 %Decreased by 4.17 %
- Crime Rate
- 2.00 %Unchanged by 0.00 %
Agent Activity
Haybrook marked this listing as sold.
Haybrook created the listing.
Nearby Schools
| Name | Type | Ofsted | Distance |
|---|---|---|---|
| High View Primary Learning Centre | Academy Converter | 0.61 KM | |
| Kings Oak Primary Learning Centre | Community School | Outstanding | 1.22 KM |
| Wombwell Family Centre | Children's Centre Linked Site | 1.23 KM | |
| Netherwood Academy | Academy Sponsor Led | Requires improvement | 1.76 KM |
| The Ellis Church Of England (Voluntary Aided) Primary School | Voluntary Aided School | Good | 2.37 KM |
Images
Nearby Streets
| Name | Average Price | Average Sqft | Distance |
|---|---|---|---|
| Neville Court | £ 0 | 0 | 0.00 KM |
| West Street | £ 0 | 0 | 0.00 KM |
| Mitchells Way | £ 0 | 0 | 0.00 KM |
| Midland Way | £ 0 | 0 | 0.00 KM |
| School Street | £ 0 | 0 | 0.00 KM |
Nearby Transport
| Name | NLC | TLC | Distance |
|---|---|---|---|
| Wombwell | 6688 | WOM | 1.34 KM |
| Elsecar | 6667 | ELR | 3.71 KM |
| Barnsley | 6774 | BNY | 7.55 KM |
| Chapeltown (South Yorkshire) | 6664 | CLN | 9.44 KM |
Nearby Listings
| Address | Price | Type | Score | Distance |
|---|---|---|---|---|
| Roy Kilner Road, Wombwell, Barnsley | £ 199,950 | BUY | 7 / 10 | 0.02 KM |
| Rose Grove, Wombwell, Barnsley, S73 | £ 195,000 | BUY | 6 / 10 | 0.12 KM |
| Rose Grove, Wombwell, Barnsley, South Yorkshire, S73 | £ 220,000 | BUY | 7 / 10 | 0.14 KM |
| Rose Grove, Wombwell, Barnsley | £ 200,000 | BUY | 7 / 10 | 0.18 KM |
| Rose Place, Wombwell, Barnsley | £ 180,000 | BUY | 6 / 10 | 0.20 KM |
Nearby Properties
| Address | Price | Distance |
|---|---|---|
| 34 Wilson Street | £ 220,000 | 0.19 KM |
| 52 Wilson Street | £ 109,995 | 0.19 KM |
| 56 Rose Grove | £ 145,000 | 0.20 KM |
| 57 Wilson Street | £ 150,000 | 0.22 KM |
| 49 Wilson Street | £ 81,000 | 0.22 KM |