Cheshire Park, Warfield
PR

Cheshire Park, Warfield

By Property Bee UK

£ 650,000

Reviews

4 out of 5 stars

Property Bee UK says ..

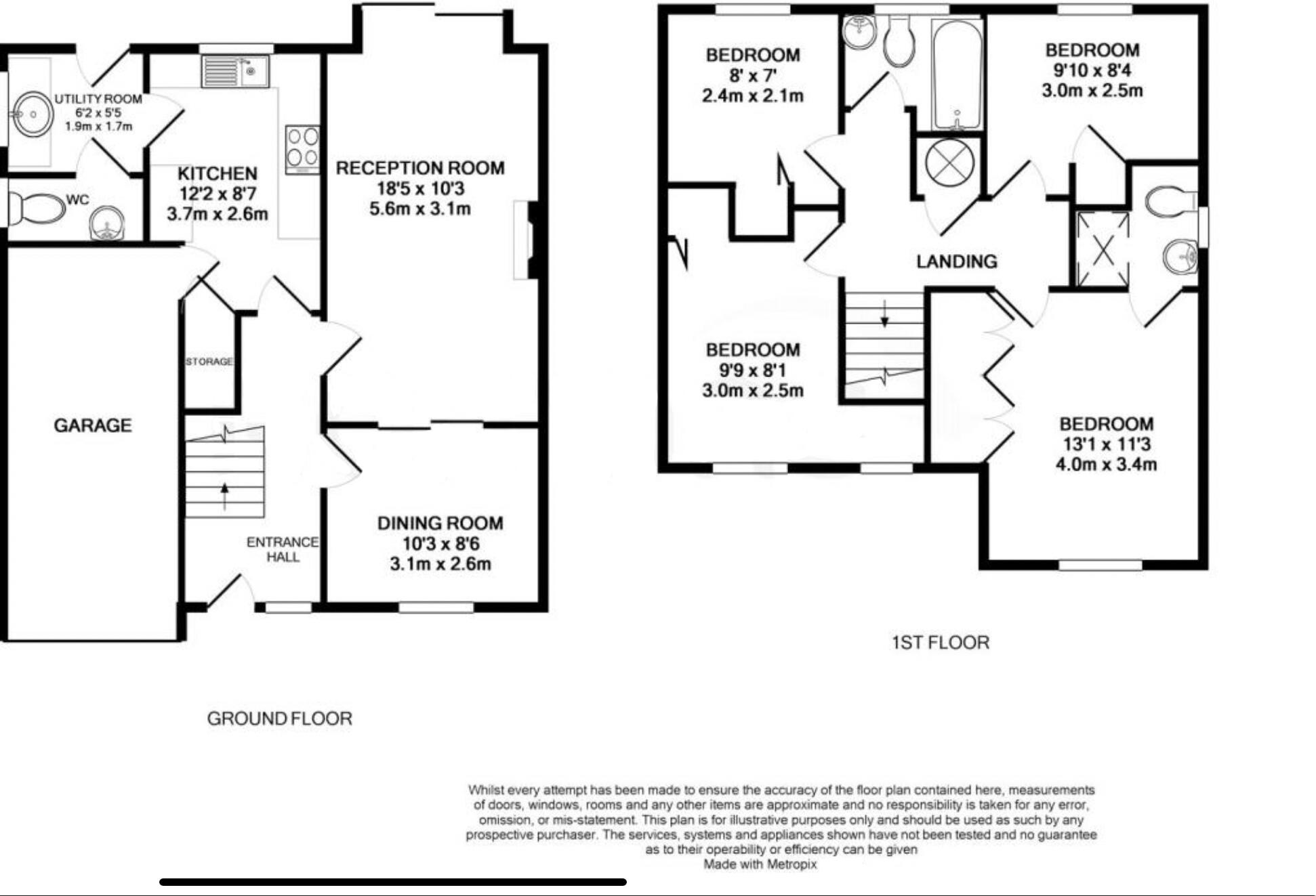
Situated on a the sought after Cheshire Park development, within a short walk of the popular Whitegrove primary school, health centre and superstore sits this immaculately presented and excellent sized four bedroom detached family home.

Property Oracle says ..

This property is a 4-bedroom, 2-bathroom house located in Cheshire Park, Warfield, Berkshire. The property is presented in excellent condition and benefits from a modern fitted kitchen and bathrooms. The house has been recently updated and is move-in ready. There is a good-sized garden with patio area, ideal for families. The location is convenient with good access to local schools and transport links. The asking price of £650,000 is slightly above the average price for the area, however, considering the property’s condition, size, and location, it could be considered reasonable. More information on the plot size would be beneficial to confirm this.

Therefore, we give this property 8 / 10. *Disclaimer: This is our option and does constitute a recommendation or financial advice. Do your own research. *

Price
7
Condition
9
Location
8
Land
8
Bedrooms
4
Bathrooms
2
Sqft (est)
857.35

The heatmap indicates the level of crime in the area. The color of the heatmap indicates the crime severity and recency.

Metrics Year-on-Year

Average area value
488,571.00 £
Decreased by 8.34 %
from 533,016.00 £
Est sale value
485,260.10 £
Increased by 15.51 %
from 420,101.50 £
Average area rental value
2,010.00 £/mo
Decreased by 11.84 %
from 2,280.00 £/mo
Est letting value
1,714.70 £/mo
Unchanged by 0.00 %
from 1,714.70 £/mo
Est rental Yield
4.94 %
Decreased by 3.70 %
from 5.13 %
Crime Rate
6.00 %
Unchanged by 0.00 %
from 6.00 %

Agent Activity

  • Property Bee UK created the listing.

Nearby Schools

NameTypeOfstedDistance
Maples Children'S CentreChildren's Centre Linked Site0.32 KM
Whitegrove Primary SchoolCommunity SchoolGood0.50 KM
Warfield Church Of England Primary SchoolVoluntary Controlled SchoolGood0.80 KM
Holly Spring Primary SchoolCommunity SchoolGood1.34 KM
Lambrook SchoolOther Independent School1.81 KM

Images

381D5FB8-6FD4-48B6-9945-B5C5217404C2.jpeg 6391C8D8-1B33-4D62-A6D1-00A5F2D10ECA.jpeg 239275E8-6018-469C-AB9F-4C29C7A1C30A.jpeg IMG_4245.jpeg 6BE8A44E-6B0F-4F0C-A0CB-6480A2329E48.jpeg 1DA2D3CE-75B7-4118-8606-C95B2D4760F2.jpeg FD427D54-C1C4-4D1F-A838-496C50D77DC2.jpeg 32703A1D-910C-4898-B992-8450AC33355F.jpeg AF7C90DE-A67E-45A2-BA4D-B63EF62F4EE4.jpeg A5B60998-1C54-4C49-998B-30429C4CA721.jpeg F56DB1C6-9A8A-4DBE-A501-47193FCC5FBE.jpeg 589AF000-10E4-4884-8299-DCD83BFEE096.jpeg 157A266F-3C46-412D-A33D-030C650B0A7A.jpeg listing_613895_0003_fbeeb3a9 listing_613895_0018_33b80953 listing_613895_0019_8f699526 (1) listing_613895_0020_cd3bf691

Nearby Streets

NameAverage PriceAverage SqftDistance
Edmunds Lane £ 000.00 KM
Burnthouse Gardens £ 000.00 KM
The Chestnuts £ 315,00000.00 KM
Forest Way £ 270,00000.00 KM
Forest Way £ 300,00000.00 KM

Nearby Transport

NameNLCTLCDistance
Martins Heron5692MAO2.25 KM
Bracknell5693BCE2.99 KM
Ascot (Berks)5666ACT6.29 KM
Bagshot5681BAG8.27 KM

Nearby Listings

AddressPriceTypeScoreDistance
Cheshire Park, Warfield £ 650,000BUY8 / 100.00 KM
Yorkshire Place, Warfield, Bracknell, Bracknell Forest, RG42 £ 685,000BUY7 / 100.10 KM
Lincolnshire Gardens, Warfield, Bracknell £ 385,000BUY6 / 100.18 KM
Staffordshire Croft, Warfield, Bracknell £ 350,000BUY7 / 100.21 KM
Staffordshire Croft, Warfield, Bracknell £ 350,000BUY6 / 100.23 KM

Nearby Properties

AddressPriceDistance
24 Cheshire Park £ 470,0000.01 KM
14 Cheshire Park £ 590,0000.01 KM
5 Cheshire Park £ 475,0000.01 KM
6 Cheshire Park £ 525,0000.01 KM
26 Cheshire Park £ 610,0000.01 KM