Summerson Close, Rochester, Kent. ME1
By Moxy Property Consultants
£ 290,000
Reviews
3 out of 5 stars
Moxy Property Consultants says ..
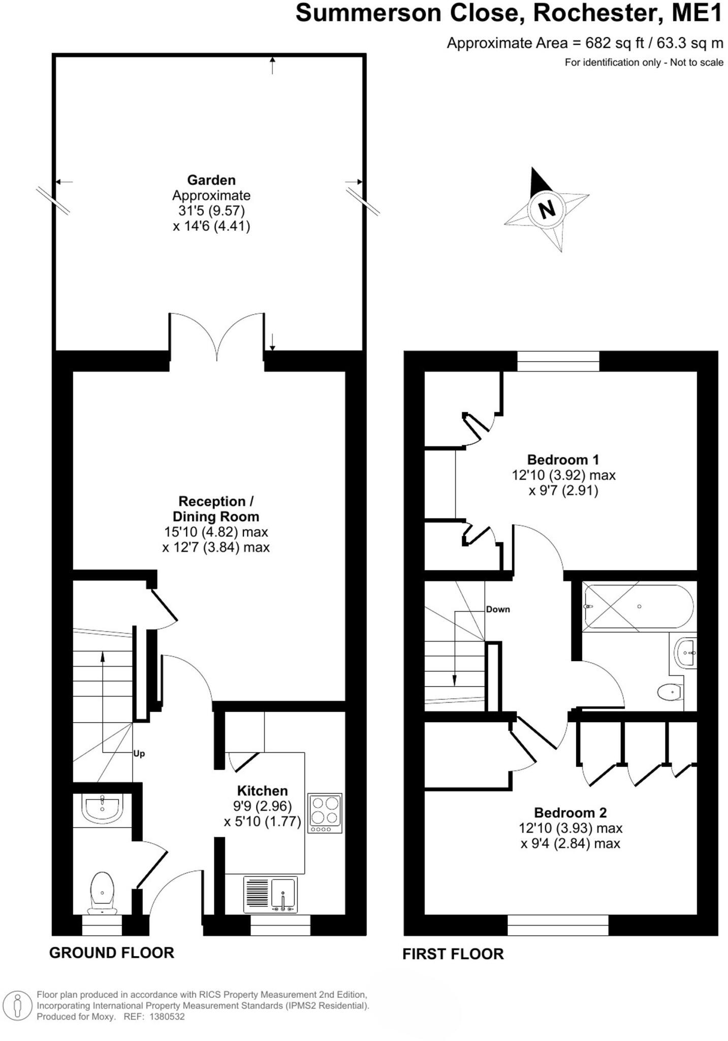
A super stunning, two bedroom home in prime ME1 location with two allocated parking spaces, rear garden, kitchen and bathroom. Close to Grammar Schools, M2/A2, bus routes, and Historic Rochester.
Property Oracle says ..
This is a two-bedroom property located on Summerson Close, Rochester. The property is in good condition, with modern interiors and a well-maintained garden. The location offers access to nearby schools and transportation links. The asking price of £290,000 seems reasonable when compared to similar properties in the area. The property offers a good balance of location, condition, and price.
Therefore, we give this property 7 / 10. *Disclaimer: This is our option and does constitute a recommendation or financial advice. Do your own research. *
- Price
- 7
- Condition
- 9
- Location
- 7
- Land
- 7
- Bedrooms
- 2
- Bathrooms
- 1
- Sqft (est)
- 990.35
The heatmap indicates the level of crime in the area. The color of the heatmap indicates the crime severity and recency.
Metrics Year-on-Year
- Average area value
- 328,564.00 £Increased by 9.70 %
- Est sale value
- 470,416.25 £Increased by 39.30 %
- Average area rental value
- 1,006.00 £/moDecreased by 27.10 %
- Est letting value
- 990.35 £/moUnchanged by 0.00 %
- Est rental Yield
- 3.67 %Decreased by 33.63 %
- Crime Rate
- 12.00 %Unchanged by 0.00 %
Agent Activity
Moxy Property Consultants created the listing.
Nearby Schools
| Name | Type | Ofsted | Distance |
|---|---|---|---|
| The Rochester Grammar School | Academy Converter | 0.13 KM | |
| Sir Joseph Williamson'S Mathematical School | Academy Converter | 0.27 KM | |
| Delce Academy | Academy Converter | 0.44 KM | |
| St William Of Perth Roman Catholic Primary School | Voluntary Aided School | Good | 0.50 KM |
| Delce Children'S Centre | Children's Centre | 0.60 KM |
Images
Nearby Streets
| Name | Average Price | Average Sqft | Distance |
|---|---|---|---|
| Anchor Road | £ 365,000 | 0 | 0.00 KM |
| Frobisher Gardens | £ 0 | 0 | 0.00 KM |
| Pennant Road | £ 0 | 0 | 0.00 KM |
| Leander Road | £ 0 | 0 | 0.00 KM |
| Hooper's Place | £ 0 | 0 | 0.00 KM |
Nearby Transport
| Name | NLC | TLC | Distance |
|---|---|---|---|
| Rochester | 5203 | RTR | 1.98 KM |
| Chatham | 5199 | CTM | 2.49 KM |
| Strood (Kent) | 5191 | SOO | 2.93 KM |
| Cuxton | 5201 | CUX | 4.37 KM |
| Gillingham (Kent) | 5169 | GLM | 5.69 KM |
Nearby Listings
| Address | Price | Type | Score | Distance |
|---|---|---|---|---|
| Summerson Close, Rochester, Kent. ME1 | £ 290,000 | BUY | 7 / 10 | 0.00 KM |
| Summerson Close, Rochester, Kent, ME1 | £ 260,000 | BUY | Unknown | 0.04 KM |
| Summerson Close, Rochester | £ 250,000 | BUY | 6 / 10 | 0.09 KM |
| Summerson Close, Rochester | £ 280,000 | BUY | 6 / 10 | 0.10 KM |
| The Tideway, Rochester, Kent | £ 205,000 | BUY | Unknown | 0.16 KM |
Nearby Properties
| Address | Price | Distance |
|---|---|---|
| 101 Summerson Close | £ 140,000 | 0.06 KM |
| 3 Summerson Close | £ 162,500 | 0.06 KM |
| 9 Summerson Close | £ 117,500 | 0.06 KM |
| 91 Summerson Close | £ 320,000 | 0.06 KM |
| 2 Summerson Close | £ 160,000 | 0.06 KM |