Hudson Moody says ..
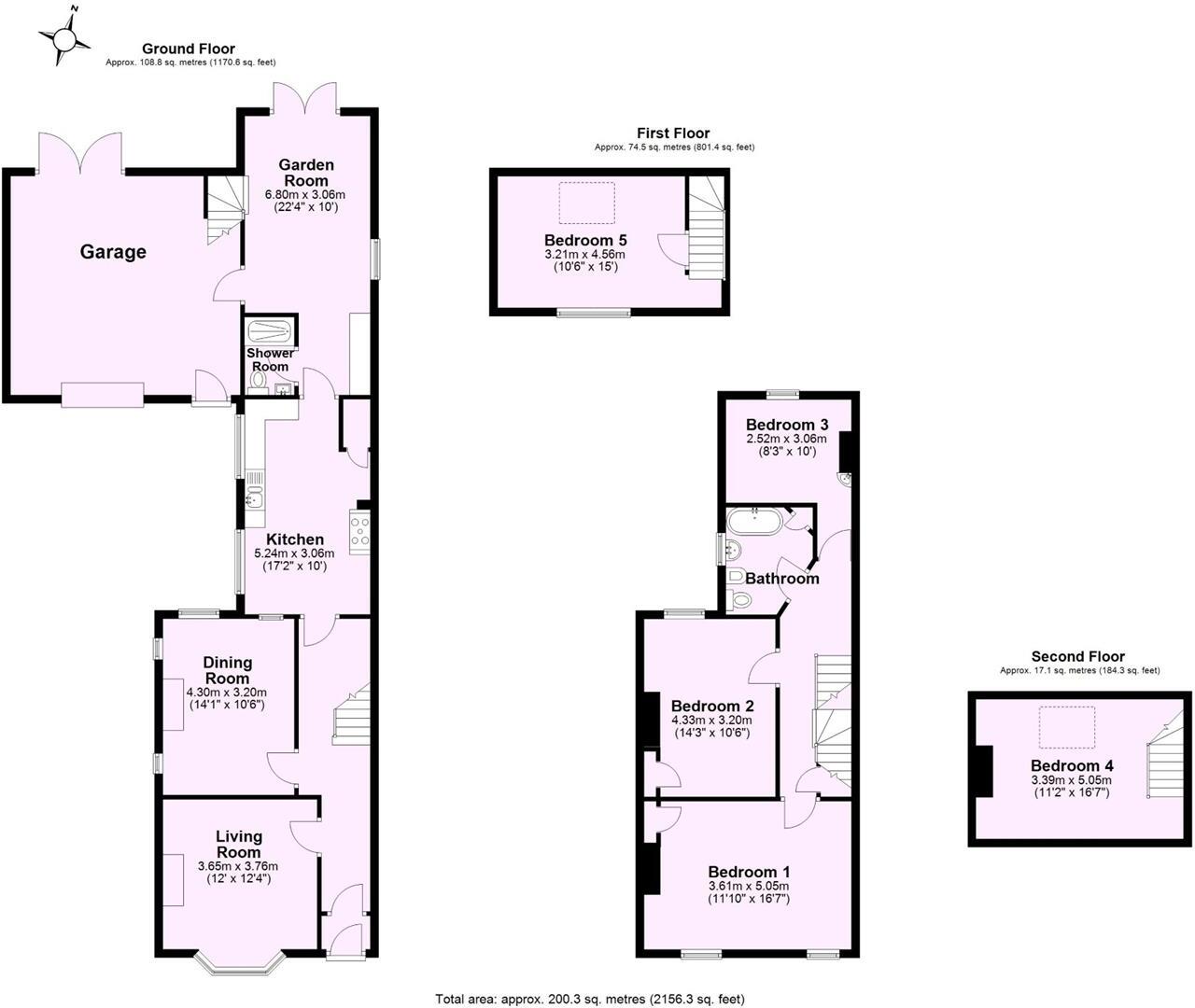
An imposing detached family home, set within a generous plot, including a large garden and double garage. Situated on Malton Road, in the Heworth area of York, close to The Stray.
Property Oracle says ..
Therefore, we give this property 7 / 10. *Disclaimer: This is our option and does constitute a recommendation or financial advice. Do your own research. *
- Price
- 6
- Condition
- 6
- Location
- 8
- Land
- 8
- Bedrooms
- 5
- Bathrooms
- 2
The heatmap indicates the level of crime in the area. The color of the heatmap indicates the crime severity and recency.
Metrics Year-on-Year
- Average area value
- 494,993.00 £Increased by 52.44 %
- Average area rental value
- 1,198.00 £/moDecreased by 2.44 %
- Est rental Yield
- 2.90 %Decreased by 36.12 %
- Crime Rate
- 2.00 %Unchanged by 0.00 %
from 324,713.00 £
from 1,228.00 £/mo
from 4.54 %
from 2.00 %
Agent Activity
Hudson Moody created the listing.
Nearby Schools
| Name | Type | Ofsted | Distance |
|---|---|---|---|
| Yearsley Grove Primary School | Community School | Good | 0.85 KM |
| Heworth Church Of England Primary Academy | Academy Converter | Good | 1.00 KM |
| Hempland Primary School | Academy Converter | 1.32 KM | |
| Tang Hall Primary Academy | Academy Converter | Good | 1.46 KM |
| The Avenues Children'S Centre | Children's Centre | 1.56 KM |
Images
Nearby Streets
| Name | Average Price | Average Sqft | Distance |
|---|---|---|---|
| Healey Grove | £ 0 | 0 | 0.00 KM |
| Theresa Close | £ 212,475 | 0 | 0.00 KM |
| Homestead Close | £ 0 | 0 | 0.00 KM |
| Lime Avenue | £ 500,000 | 0 | 0.00 KM |
| Heworth Road | £ 0 | 0 | 0.00 KM |
Nearby Transport
| Name | NLC | TLC | Distance |
|---|---|---|---|
| York | 8263 | YRK | 4.40 KM |
Nearby Listings
| Address | Price | Type | Score | Distance |
|---|---|---|---|---|
| Malton Road, York, YO31 9LT | £ 650,000 | BUY | 7 / 10 | 0.00 KM |
| Development Site, Malton Road, York | £ 500,000 | BUY | 6 / 10 | 0.00 KM |
| Laburnum Garth, York | £ 240,000 | BUY | 6 / 10 | 0.14 KM |
| Straylands Grove, York, North Yorkshire, YO31 | £ 450,000 | BUY | 6 / 10 | 0.15 KM |
| Sefton Avenue, York | £ 325,000 | BUY | 6 / 10 | 0.17 KM |
Nearby Properties
| Address | Price | Distance |
|---|---|---|
| Elmgarth | £ 235,000 | 0.03 KM |
| Ashbourne | £ 295,000 | 0.03 KM |
| High Lea | £ 293,000 | 0.03 KM |
| Linwood Croft | £ 262,500 | 0.03 KM |
| Ruhe | £ 400,000 | 0.03 KM |