Darwin Drive, Southall, Middlesex, UB1
By John Martin Estates
£ 395,000
Reviews
2 out of 5 stars
John Martin Estates says ..
A three bedroom link semi-detached property located conveniently equidistant between Greenford and Southall Broadways and close to Jubilee and Southall Parks as well as Dormers Wells Leisure Centre.
Property Oracle says ..
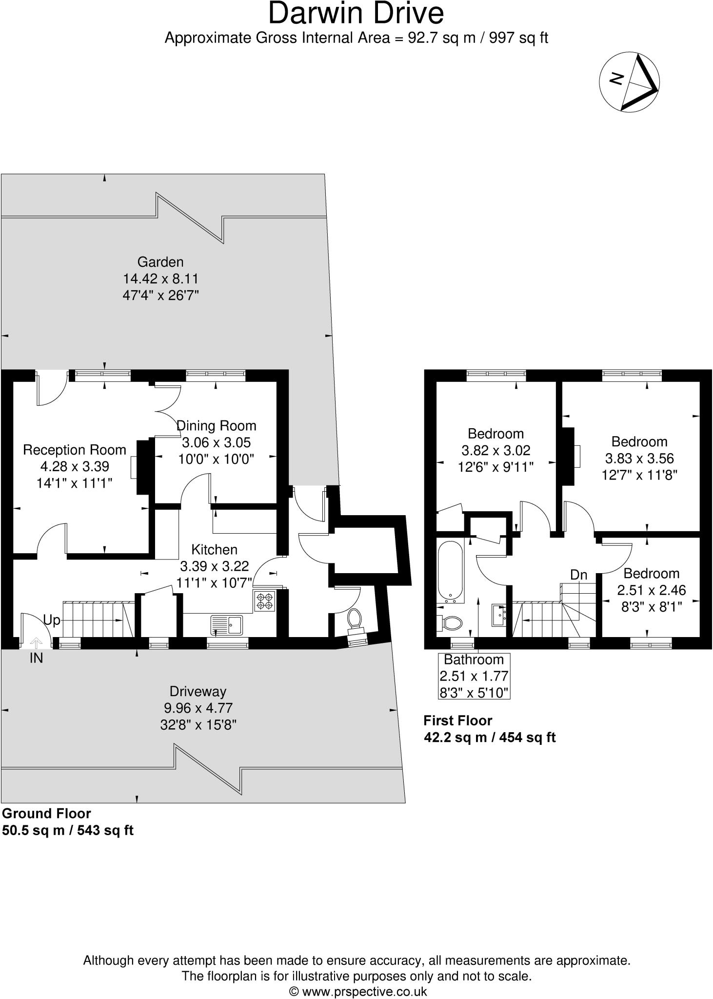
This three-bedroom property located on Darwin Drive in Southall, UB1 3JY, presents a significant renovation project. While the address offers a convenient location near transport links (Southall train station) and schools (Allenby Primary School, Dormers Wells Infant/Junior/High schools being nearby), the property’s current condition requires extensive work. The provided photos clearly show outdated interiors, requiring complete refurbishment of the kitchen and bathrooms, and extensive work to update the interior finishes throughout. The garden, while present, is overgrown and will need considerable landscaping. The asking price of £395,000 reflects the potential value after renovation, but buyers should budget heavily for refurbishment costs. Lack of precise square footage data for nearby comparable properties makes definitive price comparison difficult, but considering the general pricing trends in Southall and the needed work, this price might be reasonable for a buyer comfortable with a complete renovation. Potential buyers should obtain a professional survey to assess the structural condition thoroughly before making an offer.
Therefore, we give this property 5 / 10. *Disclaimer: This is our option and does constitute a recommendation or financial advice. Do your own research. *
- Price
- 7
- Condition
- 4
- Location
- 7
- Land
- 5
- Bedrooms
- 3
- Bathrooms
- 1
- Sqft (est)
- 997.00
The heatmap indicates the level of crime in the area. The color of the heatmap indicates the crime severity and recency.
Metrics Year-on-Year
- Average area value
- 523,317.00 £Increased by 7.74 %
- Est sale value
- 665,996.00 £Increased by 23.93 %
- Average area rental value
- 1,867.00 £/moDecreased by 17.83 %
- Est letting value
- 1,994.00 £/moUnchanged by 0.00 %
- Est rental Yield
- 4.28 %Decreased by 23.71 %
- Crime Rate
- 8.00 %Unchanged by 0.00 %
Agent Activity
John Martin Estates created the listing.
Nearby Schools
| Name | Type | Ofsted | Distance |
|---|---|---|---|
| Allenby Primary School | Community School | Good | 0.56 KM |
| Dormers Wells Infant School | Academy Sponsor Led | 0.59 KM | |
| Dormers Wells Junior School | Academy Sponsor Led | 0.61 KM | |
| Dormers Wells Children'S Centre | Children's Centre Linked Site | 0.63 KM | |
| Dormers Wells High School | Academy Converter | 0.69 KM |
Images
Nearby Streets
| Name | Average Price | Average Sqft | Distance |
|---|---|---|---|
| Faraday Road | £ 400,000 | 0 | 0.00 KM |
| Bingley Road | £ 635,000 | 0 | 0.00 KM |
| Avon Road | £ 305,000 | 0 | 0.00 KM |
| Lyndhurst Road | £ 0 | 0 | 0.00 KM |
| Thurston Road | £ 600,000 | 0 | 0.00 KM |
Nearby Transport
| Name | NLC | TLC | Distance |
|---|---|---|---|
| Southall | 3187 | STL | 2.43 KM |
| Hanwell | 3191 | HAN | 2.56 KM |
| Greenford | 3136 | GFD | 3.11 KM |
| South Greenford | 3138 | SGN | 3.14 KM |
| Castle Bar Park | 3098 | CBP | 3.26 KM |
Nearby Listings
| Address | Price | Type | Score | Distance |
|---|---|---|---|---|
| Darwin Drive, Southall, Middlesex, UB1 | £ 395,000 | BUY | 5 / 10 | 0.00 KM |
| Darwin Drive, Greenford, UB1 3JY | £ 550,000 | BUY | 6 / 10 | 0.06 KM |
| Greenford, UB6 | £ 575,000 | BUY | 6 / 10 | 0.16 KM |
| Kings Avenue, Southall, Middlesex, UB6 | £ 675,000 | BUY | 6 / 10 | 0.17 KM |
| Kings Avenue, Greenford | £ 550,000 | BUY | 5 / 10 | 0.17 KM |
Nearby Properties
| Address | Price | Distance |
|---|---|---|
| 4 Darwin Drive | £ 265,000 | 0.00 KM |
| 14 Darwin Drive | £ 400,000 | 0.00 KM |
| 45a Darwin Drive | £ 230,000 | 0.06 KM |
| 29 Darwin Drive | £ 202,000 | 0.06 KM |
| 31 Darwin Drive | £ 134,000 | 0.06 KM |