HA
Spey Avenue, Inverness, IV2 6DS
By Hamish Homes Ltd
£ 165,000
Reviews
3 out of 5 stars
Hamish Homes Ltd says ..
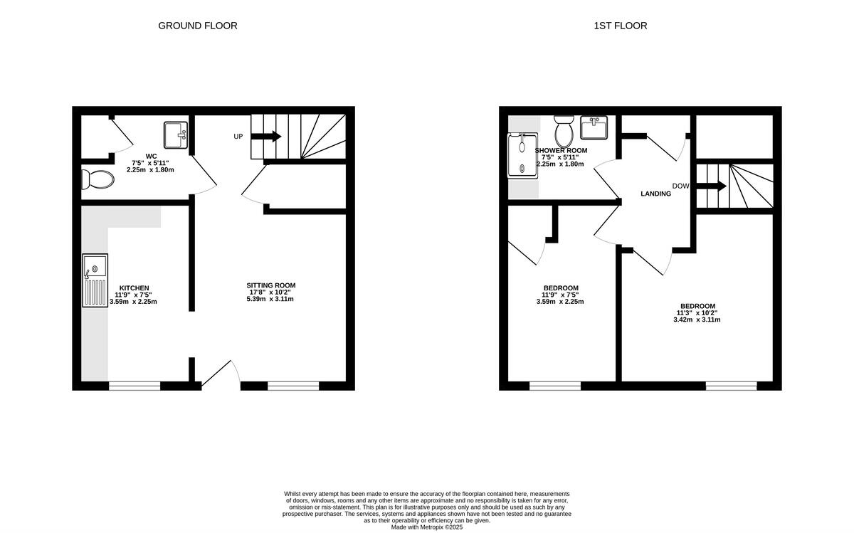
Modern Two Bedroom Home In Sought After Milton Of Leys Area, Perfect For First-Time Buyers Or Investors
Property Oracle says ..
Therefore, we give this property 6 / 10. *Disclaimer: This is our option and does constitute a recommendation or financial advice. Do your own research. *
- Price
- 8
- Condition
- 8
- Location
- 7
- Land
- 3
- Bedrooms
- 2
- Bathrooms
- 2
The heatmap indicates the level of crime in the area. The color of the heatmap indicates the crime severity and recency.
Metrics Year-on-Year
- Average area value
- 317,000.00 £Increased by 13.74 %
- Average area rental value
- 900.00 £/moIncreased by 1.69 %
- Est rental Yield
- 3.41 %Decreased by 10.50 %
- Crime Rate
- 0.00 %
from 278,697.00 £
from 885.00 £/mo
from 3.81 %
from 0.00 %
Agent Activity
Hamish Homes Ltd created the listing.
Images
Nearby Streets
| Name | Average Price | Average Sqft | Distance |
|---|---|---|---|
| Spey Avenue | £ 171,333 | 0 | 0.00 KM |
| Kincraig Drive | £ 268,333 | 0 | 0.00 KM |
| Atholl Place | £ 197,750 | 0 | 0.00 KM |
| Blair Grove | £ 172,500 | 0 | 0.00 KM |
| Brock Road | £ 249,600 | 0 | 0.00 KM |
Nearby Transport
| Name | NLC | TLC | Distance |
|---|---|---|---|
| Inverness | 8649 | INV | 4.78 KM |
Nearby Listings
| Address | Price | Type | Score | Distance |
|---|---|---|---|---|
| Spey Avenue, Inverness, IV2 6DS | £ 165,000 | BUY | 6 / 10 | 0.00 KM |
| Spey Avenue, Inverness, IV2 | £ 165,000 | BUY | 7 / 10 | 0.01 KM |
| 50 Spey Avenue, Milton of Leys, Inverness. IV2 6DS | £ 165,000 | BUY | 6 / 10 | 0.06 KM |
| 4 Spey Avenue, Inverness, IV2 6DS | £ 165,000 | BUY | 6 / 10 | 0.10 KM |
| 27 Spey Avenue, Inverness, IV2 6DS | £ 230,000 | BUY | Unknown | 0.10 KM |