GO
Lavender Avenue, Worcester Park, KT4
By Goodfellows
£ 625,000
Reviews
3 out of 5 stars
Goodfellows says ..
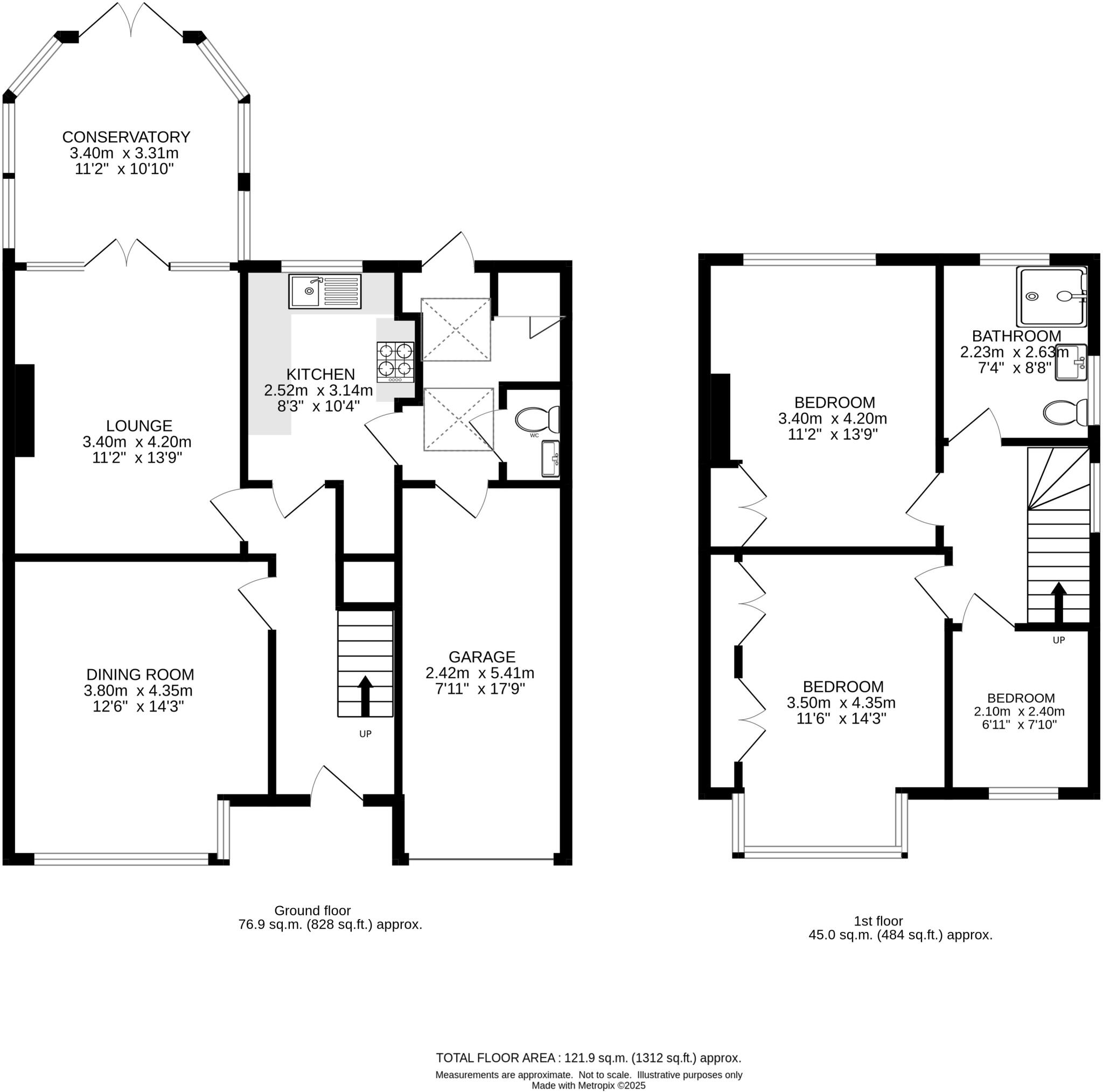
Situated in a sought after residential area, is this sizeable three bedroom semi detached family home. Offered to the market also with no onward chain AND the potential to extend further, an internal viewing is more than advised. Currently, the house has a front and rear reception roo...
Property Oracle says ..
Therefore, we give this property 6 / 10. *Disclaimer: This is our option and does constitute a recommendation or financial advice. Do your own research. *
- Price
- 6
- Condition
- 6
- Location
- 7
- Land
- 7
- Bedrooms
- 3
- Bathrooms
- 1
The heatmap indicates the level of crime in the area. The color of the heatmap indicates the crime severity and recency.
Metrics Year-on-Year
- Average area value
- 866,667.00 £Increased by 67.38 %
- Average area rental value
- 2,225.00 £/moIncreased by 16.19 %
- Est rental Yield
- 3.08 %Decreased by 30.63 %
- Crime Rate
- 4.00 %Unchanged by 0.00 %
from 517,784.00 £
from 1,915.00 £/mo
from 4.44 %
from 4.00 %
Agent Activity
Goodfellows created the listing.
Nearby Schools
| Name | Type | Ofsted | Distance |
|---|---|---|---|
| Brookways School | Other Independent Special School | Good | 0.70 KM |
| Dorchester Primary School | Foundation School | Good | 0.83 KM |
| Green Oak Children'S Centre (Formally Nonsuch And Cheam Sure Start Children'S Centre) | Children's Centre | 0.88 KM | |
| Green Oak Children'S Centre (Formally Stonecot And Worcester Park Children'S Centre) | Children's Centre | 0.88 KM | |
| St Cecilia'S Catholic Primary School | Voluntary Aided School | Outstanding | 0.92 KM |
Images
Nearby Streets
| Name | Average Price | Average Sqft | Distance |
|---|---|---|---|
| Woodbine Lane | £ 520,000 | 0 | 0.00 KM |
| Chiltern Close | £ 500,000 | 0 | 0.00 KM |
| Stanton Close | £ 0 | 0 | 0.00 KM |
| Esher Avenue | £ 587,500 | 0 | 0.00 KM |
| London Road | £ 239,000 | 0 | 0.00 KM |
Nearby Transport
| Name | NLC | TLC | Distance |
|---|---|---|---|
| Worcester Park | 5579 | WCP | 1.97 KM |
| Stoneleigh | 5606 | SNL | 2.41 KM |
| Cheam | 5352 | CHE | 2.59 KM |
| Motspur Park | 5645 | MOT | 2.69 KM |
| West Sutton | 5293 | WSU | 2.79 KM |
Nearby Listings
| Address | Price | Type | Score | Distance |
|---|---|---|---|---|
| Lavender Avenue, Worcester Park, KT4 | £ 625,000 | BUY | 6 / 10 | 0.00 KM |
| Lavender Avenue, Packham Court Lavender Avenue, KT4 | £ 275,000 | BUY | 5 / 10 | 0.04 KM |
| Lavender Avenue, Worcester Park, Surrey | £ 270,000 | BUY | 6 / 10 | 0.05 KM |
| Packham Court, Farm Way, Worcester Park | £ 270,000 | BUY | 5 / 10 | 0.07 KM |
| Lavender Avenue, Worcester Park | £ 650,000 | BUY | 6 / 10 | 0.11 KM |
Nearby Properties
| Address | Price | Distance |
|---|---|---|
| 22 Lavender Avenue | £ 560,000 | 0.09 KM |
| 50 Lavender Avenue | £ 458,000 | 0.09 KM |
| 14 Lavender Avenue | £ 220,000 | 0.09 KM |
| 40 Lavender Avenue | £ 305,000 | 0.09 KM |
| 38 Lavender Avenue | £ 343,000 | 0.09 KM |