St. Julians Farm Road, London, SE27
By At Home with Hannah
£ 420,000
Reviews
3 out of 5 stars
At Home with Hannah says ..
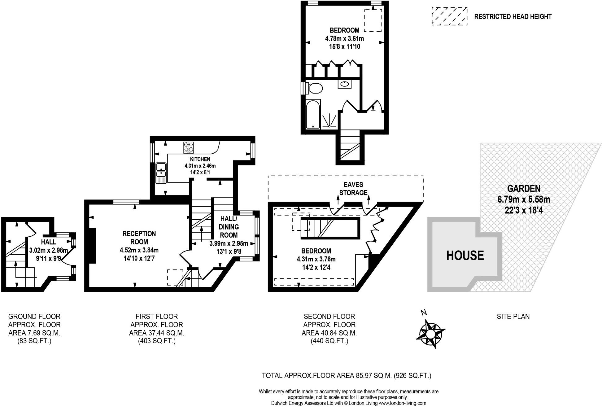
Spacious and light-filled two bed Victorian maisonette with gorgeous period features in the heart of West Norwood.
Property Oracle says ..
This maisonette is located in the Knight’s Hill area of Lambeth, London. The property is a two-bedroom maisonette with one bathroom. It benefits from a small garden. The area has good transport links with West Norwood station being approximately 0.54km away. There are also several schools nearby, including Julian’s School (rated Good by Ofsted) which is 0.34km from the property. The property itself appears to be a period property that has had some modernisation, particularly in the kitchen and bathroom. The property is in good condition and benefits from a recently fitted kitchen. However, some areas such as the flooring and some walls could benefit from some updating. The list price of £420,000 is significantly lower than the average price for the area (£810,624), and the price per sqft is also lower than average. Considering the condition, location, and size, the property seems to be reasonably priced, although further investigation into the specific details of the property would be needed to confirm this.
Therefore, we give this property 6 / 10. *Disclaimer: This is our option and does constitute a recommendation or financial advice. Do your own research. *
- Price
- 9
- Condition
- 7
- Location
- 8
- Land
- 3
- Bedrooms
- 2
- Bathrooms
- 1
- Sqft (est)
- 925.37
The heatmap indicates the level of crime in the area. The color of the heatmap indicates the crime severity and recency.
Metrics Year-on-Year
- Average area value
- 696,167.00 £Decreased by 17.95 %
- Est sale value
- 576,505.51 £Decreased by 14.42 %
- Average area rental value
- 2,133.00 £/moDecreased by 1.25 %
- Est letting value
- 925.37 £/moUnchanged by 0.00 %
- Est rental Yield
- 3.68 %Increased by 20.26 %
- Crime Rate
- 5.00 %Unchanged by 0.00 %
Agent Activity
At Home with Hannah created the listing.
Nearby Schools
| Name | Type | Ofsted | Distance |
|---|---|---|---|
| Julian'S School | Foundation School | Good | 0.34 KM |
| Crown Lane Primary School | Community School | Good | 0.72 KM |
| Crown Lane Primary School & Children'S Centre | Children's Centre | 0.74 KM | |
| Silburn Reid | Miscellaneous | 0.85 KM | |
| Hitherfield Primary School | Community School | Good | 1.00 KM |
Images
Nearby Streets
| Name | Average Price | Average Sqft | Distance |
|---|---|---|---|
| Tredwell Road | £ 0 | 0 | 0.00 KM |
| Yeomans Close | £ 0 | 0 | 0.00 KM |
| Eden Road | £ 0 | 0 | 0.00 KM |
| Church Road | £ 0 | 0 | 0.00 KM |
| Auckland Hill | £ 0 | 0 | 0.00 KM |
Nearby Transport
| Name | NLC | TLC | Distance |
|---|---|---|---|
| West Norwood | 5438 | WNW | 0.54 KM |
| Tulse Hill | 5390 | TUH | 1.15 KM |
| West Dulwich | 5086 | WDU | 2.22 KM |
| Streatham Hill | 5435 | SRH | 2.27 KM |
| Norbury | 5428 | NRB | 2.56 KM |
Nearby Listings
| Address | Price | Type | Score | Distance |
|---|---|---|---|---|
| St. Julians Farm Road, London, SE27 | £ 420,000 | BUY | 6 / 10 | 0.00 KM |
| St Julians Farm Road, West Norwood, London, SE27 | £ 450,000 | BUY | Unknown | 0.01 KM |
| St. Julians Farm Road, London, SE27 | £ 375,000 | BUY | 5 / 10 | 0.02 KM |
| Wolfington Road, West Norwood, London, SE27 | £ 400,000 | BUY | 6 / 10 | 0.05 KM |
| Wolfington Road, London, SE27 | £ 285,000 | BUY | 5 / 10 | 0.06 KM |
Nearby Properties
| Address | Price | Distance |
|---|---|---|
| 85 St Julian's Farm Road | £ 840,000 | 0.00 KM |
| 63 St Julian's Farm Road | £ 533,500 | 0.00 KM |
| 55 St Julians Farm Road | £ 249,995 | 0.00 KM |
| 69 St Julians Farm Road | £ 1,090,000 | 0.00 KM |
| 77 St Julians Farm Road | £ 1,250,000 | 0.00 KM |