Russell Road, Mitcham
By Toomey Estate Agents
£ 490,000
Reviews
3 out of 5 stars
Toomey Estate Agents says ..
*** A SPACIOUS THREE BEDROOM END OF TERRACE HOUSE WITH GARAGE AND DRIVEWAY TO SIDE *** Offered for sale with NO FORWARD CHAIN is the spacious three bedroom halls adjoining end of terrace house which forms part of this well regarded road in the heart of Mitcham. The property benefits ...
Property Oracle says ..
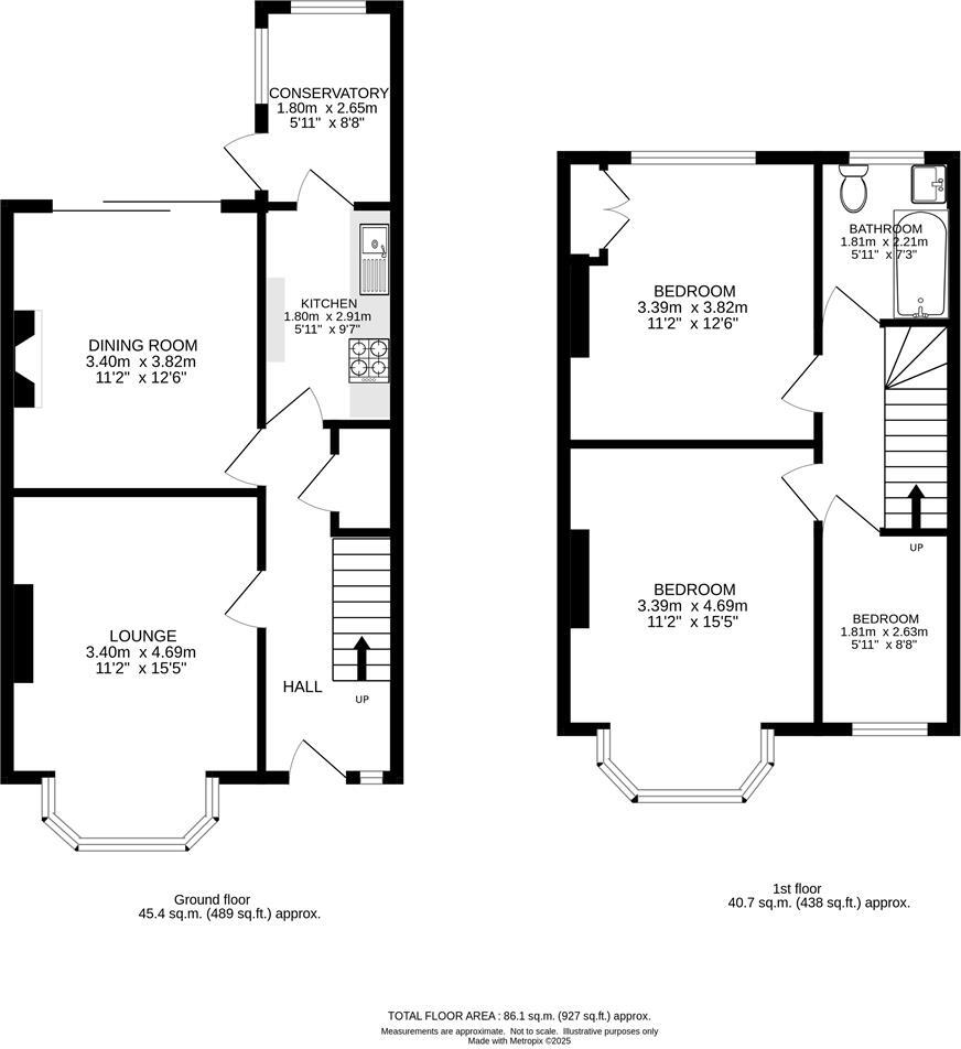
This property is a 3-bedroom end of terrace house located on Russell Road, Mitcham, in the CR4 3AP postcode. It benefits from being close to several primary schools with good Ofsted ratings, including Cricket Green School (Outstanding) which is less than 0.2km away. Mitcham Eastfields and Mitcham Junction train stations are also within reasonable commuting distance. The property itself is approximately 825 sqft and sits on a plot of 927 sqft, including a garden and a garage. The interior requires modernisation, as evidenced in the photographs. The kitchen and bathroom are dated, and the decor throughout the house is tired. The asking price of £490,000 is slightly above the average price for the area (£397,240), however, given the size of the plot and proximity to good schools and transport links, it may represent reasonable value for money, especially considering the potential for increased value following modernisation. Nearby comparable properties on Russell Road have sold for between £235,000 and £427,000, highlighting the variability in pricing within the street.
Therefore, we give this property 6 / 10. *Disclaimer: This is our option and does constitute a recommendation or financial advice. Do your own research. *
- Price
- 6
- Condition
- 4
- Location
- 8
- Land
- 7
- Bedrooms
- 3
- Bathrooms
- 1
- Sqft (est)
- 824.70
- Lot (est)
- 926.77
The heatmap indicates the level of crime in the area. The color of the heatmap indicates the crime severity and recency.
Metrics Year-on-Year
- Average area value
- 320,000.00 £Decreased by 17.89 %
- Est sale value
- 268,027.50 £Decreased by 9.97 %
- Average area rental value
- 929.00 £/moDecreased by 15.00 %
- Est letting value
- 0.00 £/moDecreased by 100.00 %
- Est rental Yield
- 3.48 %Increased by 3.26 %
- Crime Rate
- 15.00 %Unchanged by 0.00 %
Agent Activity
Toomey Estate Agents created the listing.
Nearby Schools
| Name | Type | Ofsted | Distance |
|---|---|---|---|
| Cricket Green School | Community Special School | Outstanding | 0.19 KM |
| Rise Education | Other Independent School | Good | 0.36 KM |
| Date Valley School | Other Independent School | 0.36 KM | |
| St Peter And Paul Catholic Primary School | Voluntary Aided School | Good | 0.45 KM |
| Melrose School | Community Special School | Good | 0.47 KM |
Images
Nearby Streets
| Name | Average Price | Average Sqft | Distance |
|---|---|---|---|
| Peartree Close | £ 425,000 | 0 | 0.00 KM |
| Church Place | £ 0 | 0 | 0.00 KM |
| Field Gate Lane | £ 0 | 0 | 0.00 KM |
| Westfield Road | £ 425,000 | 0 | 0.00 KM |
| Miles Road | £ 0 | 0 | 0.00 KM |
Nearby Transport
| Name | NLC | TLC | Distance |
|---|---|---|---|
| Mitcham Eastfields | 5069 | MTC | 1.66 KM |
| Mitcham Junction | 5427 | MIJ | 1.71 KM |
| Tooting | 5389 | TOO | 2.01 KM |
| Haydons Road | 5289 | HYR | 3.28 KM |
| Hackbridge | 5364 | HCB | 3.31 KM |
Nearby Listings
| Address | Price | Type | Score | Distance |
|---|---|---|---|---|
| Russell Road, Mitcham | £ 490,000 | BUY | 6 / 10 | 0.00 KM |
| Russell Road, Mitcham, CR4 | £ 475,000 | BUY | 5 / 10 | 0.01 KM |
| Russell Road, Mitcham | £ 450,000 | BUY | Unknown | 0.02 KM |
| Russell Road, Mitcham, CR4 | £ 500,000 | BUY | 6 / 10 | 0.05 KM |
| Church Road, Mitcham | £ 325,000 | BUY | 5 / 10 | 0.16 KM |
Nearby Properties
| Address | Price | Distance |
|---|---|---|
| 25 Russell Road | £ 360,000 | 0.04 KM |
| 14 Russell Road | £ 427,000 | 0.04 KM |
| 16 Russell Road | £ 339,000 | 0.04 KM |
| 6 Russell Road | £ 64,500 | 0.04 KM |
| 3 Russell Road | £ 84,500 | 0.04 KM |