JO
Beeches Residential Home 28 South Street Louth LN11 9JT
By John Taylors
£ 600,000
Reviews
3 out of 5 stars
John Taylors says ..
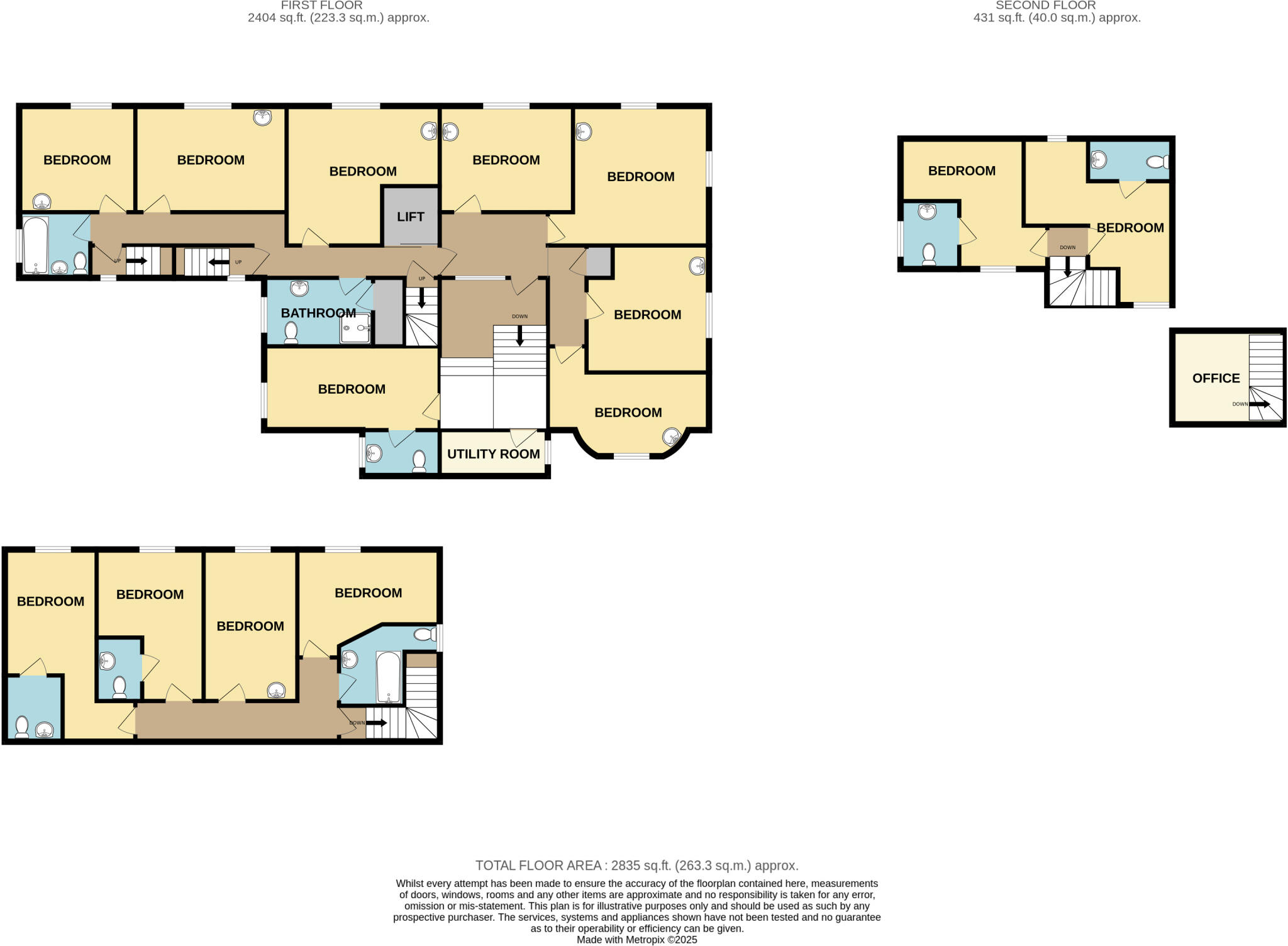
An attractive Grade II listed early 19th century building with 22 bedrooms, gardens, and a small car park providing parking for around three cars. The property is arranged over two floors plus an attic room and also includes a sub floor cellar. A lift provides access from the ground floor to the ...
Property Oracle says ..
Therefore, we give this property 6 / 10. *Disclaimer: This is our option and does constitute a recommendation or financial advice. Do your own research. *
- Price
- 7
- Condition
- 5
- Location
- 7
- Land
- 8
- Bedrooms
- 22
- Bathrooms
- 14
- Sqft (est)
- 3,807.00
The heatmap indicates the level of crime in the area. The color of the heatmap indicates the crime severity and recency.
Metrics Year-on-Year
- Average area value
- 524,714.00 £Increased by 15.54 %
- Est sale value
- 2,348,919.00 £Increased by 48.67 %
- Average area rental value
- 1,989.00 £/moIncreased by 4.74 %
- Est letting value
- 7,614.00 £/moIncreased by 100.00 %
- Est rental Yield
- 4.55 %Decreased by 9.36 %
- Crime Rate
- 9.00 %Unchanged by 0.00 %
from 454,148.00 £
from 1,579,905.00 £
from 1,899.00 £/mo
from 3,807.00 £/mo
from 5.02 %
from 9.00 %
Agent Activity
John Taylors created the listing.
Nearby Schools
| Name | Type | Ofsted | Distance |
|---|---|---|---|
| King Edward Vi Grammar School | Academy Converter | 0.18 KM | |
| Louth Kidgate Primary Academy | Academy Converter | Outstanding | 0.66 KM |
| Greenwich House School | Other Independent School | Good | 1.12 KM |
| St Michael'S Church Of England School, Louth | Voluntary Controlled School | Good | 1.26 KM |
| Louth Academy | Academy Sponsor Led | 1.39 KM |
Images
Nearby Streets
| Name | Average Price | Average Sqft | Distance |
|---|---|---|---|
| Butcher Lane | £ 0 | 0 | 0.00 KM |
| Westgate | £ 0 | 0 | 0.00 KM |
| Pawnshop Passage | £ 105,000 | 0 | 0.00 KM |
| Westgate Place | £ 0 | 0 | 0.00 KM |
| Roman Way | £ 745,000 | 0 | 0.00 KM |
Nearby Listings
| Address | Price | Type | Score | Distance |
|---|---|---|---|---|
| Beeches Residential Home 28 South Street Louth LN11 9JT | £ 600,000 | BUY | 6 / 10 | 0.00 KM |
| The Beeches, 28 South Street, Louth, Lincolnshire, LN11 | £ 460,000 | BUY | 6 / 10 | 0.00 KM |
| The Beeches, 28 South Street, Louth, Lincolnshire, LN11 | £ 360,000 | BUY | 6 / 10 | 0.00 KM |
| Edward Street, Louth | £ 200,000 | BUY | Unknown | 0.02 KM |
| 35a George Street, Louth LN11 9JU | £ 180,000 | BUY | 6 / 10 | 0.07 KM |
Nearby Properties
| Address | Price | Distance |
|---|---|---|
| 17a George Street | £ 290,000 | 0.08 KM |
| 35b George Street | £ 139,000 | 0.08 KM |
| 37 George Street | £ 383,000 | 0.08 KM |
| 12b George Street | £ 39,000 | 0.08 KM |
| 16a George Street | £ 35,500 | 0.08 KM |