The Dumbles, Lambley, Nottingham
By FHP Living
£ 895,000
Reviews
3 out of 5 stars
FHP Living says ..
FHP Living are thrilled to present this stunning, detached home located in the charming village of Lambley. This property offers a tranquil setting in a delightful village, while being conveniently close to local amenities and beautiful scenic views.
Property Oracle says ..
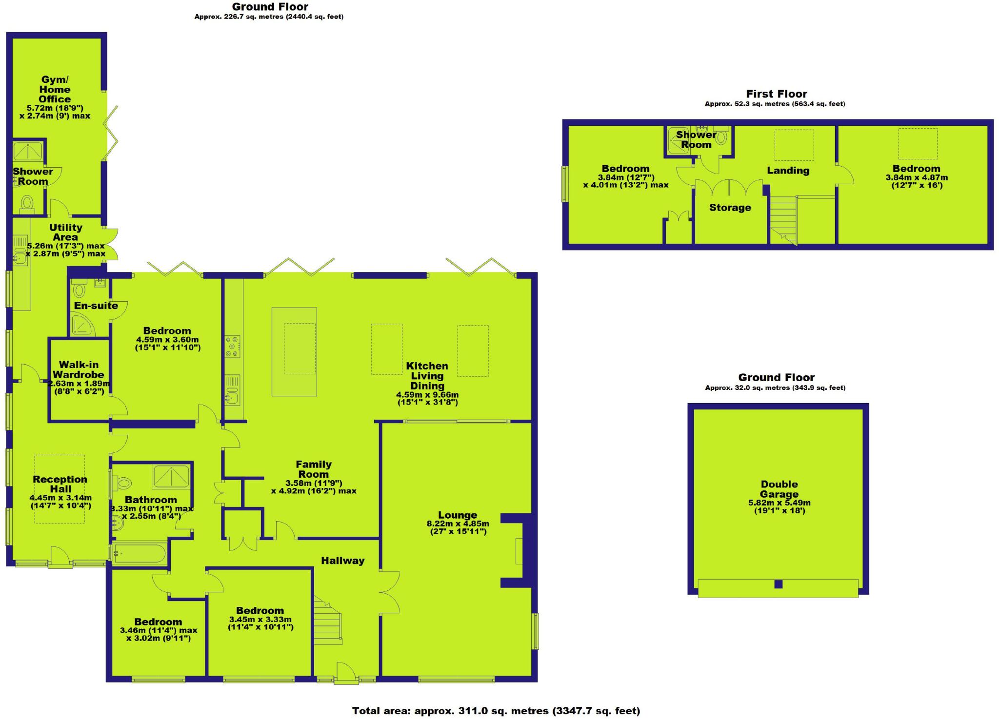
This five-bedroom, four-bathroom detached property located in Lambley, Nottinghamshire, presents as a high-end family home. The property benefits from a significant recent extension that has created a stunning open-plan kitchen, dining, and living space, ideal for modern family living. The extension boasts bi-fold doors opening directly onto a well-maintained garden with a hot tub and covered seating areas. The property appears immaculately presented, with contemporary interiors and finishes throughout. The inclusion of a modern kitchen and multiple living spaces provides ample living area. The location in Lambley offers a balance between quiet village life and access to nearby amenities and transport links. While some potential buyers may find the price high, depending on the square footage and specifics of the garden, this could be a desirable property for families looking for a spacious, modern, and well-located home. The lack of explicit plot size information, and lack of comparables with confirmed SQFT hinders the price analysis. A larger plot size, confirmed SQFT, and average price per square foot would make an evaluation more precise.
Therefore, we give this property 7 / 10. *Disclaimer: This is our option and does constitute a recommendation or financial advice. Do your own research. *
- Price
- 7
- Condition
- 9
- Location
- 7
- Land
- 6
- Bedrooms
- 5
- Bathrooms
- 4
- Sqft (est)
- 3,347.58
The heatmap indicates the level of crime in the area. The color of the heatmap indicates the crime severity and recency.
Metrics Year-on-Year
- Average area value
- 850,000.00 £Increased by 50.05 %
- Est sale value
- 2,524,075.32 £Increased by 158.22 %
- Average area rental value
- 950.00 £/moDecreased by 15.10 %
- Est letting value
- 0.00 £/mo
- Est rental Yield
- 1.34 %Decreased by 43.46 %
- Crime Rate
- 56.00 %Unchanged by 0.00 %
Agent Activity
FHP Living created the listing.
Nearby Schools
| Name | Type | Ofsted | Distance |
|---|---|---|---|
| Lambley Primary School | Community School | Good | 0.45 KM |
| Wood'S Foundation Cofe Primary School | Voluntary Aided School | Outstanding | 2.06 KM |
| Willow Farm Primary School | Academy Converter | 3.15 KM | |
| Carlton Le Willows Academy | Academy Converter | Good | 3.24 KM |
| Burton Joyce Primary School | Academy Converter | Good | 3.36 KM |
Images
Nearby Streets
| Name | Average Price | Average Sqft | Distance |
|---|---|---|---|
| Chapel Lane | £ 0 | 0 | 0.00 KM |
| Grange Close | £ 0 | 0 | 0.00 KM |
| Park Lane | £ 800,000 | 0 | 0.00 KM |
| Cornwalls Hill | £ 1,000,000 | 0 | 0.00 KM |
Nearby Transport
| Name | NLC | TLC | Distance |
|---|---|---|---|
| Burton Joyce | 6200 | BUJ | 3.51 KM |
| Carlton | 6201 | CTO | 4.62 KM |
| Netherfield | 6241 | NET | 5.05 KM |
| Radcliffe (Nottinghamshire) | 6242 | RDF | 6.87 KM |
| Lowdham | 6202 | LOW | 7.33 KM |
Nearby Listings
| Address | Price | Type | Score | Distance |
|---|---|---|---|---|
| The Dumbles, Lambley, Nottingham | £ 895,000 | BUY | 7 / 10 | 0.00 KM |
| Steeles Way, Lambley, Nottingham | £ 375,000 | BUY | 7 / 10 | 0.27 KM |
| Orchard Rise, Lambley, Nottingham | £ 300,000 | BUY | Unknown | 0.30 KM |
| Green Lane, Lambley | £ 325,000 | BUY | 7 / 10 | 0.35 KM |
| Main Street, Lambley, Nottingham | £ 400,000 | BUY | 7 / 10 | 0.39 KM |
Nearby Properties
| Address | Price | Distance |
|---|---|---|
| 10 The Dumbles | £ 405,000 | 0.00 KM |
| 19 Steeles Way | £ 230,000 | 0.29 KM |
| 17 Steeles Way | £ 217,000 | 0.29 KM |
| 9 Steeles Way | £ 157,500 | 0.29 KM |
| 2 Steeles Way | £ 280,000 | 0.29 KM |