Pomp Properties says ..
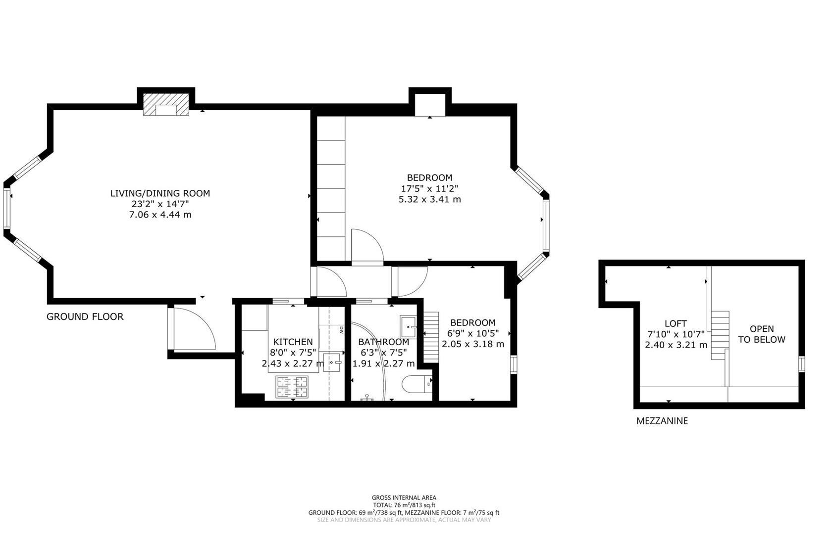
Positioned on the raised ground floor of a charming period conversion, this elegant flat enjoys a peaceful setting on a leafy residential street within the prestigious Royal Borough of Kensington and Chelsea. Rich in character, the property showcases beautiful period details such as lofty ceiling...
Property Oracle says ..
Therefore, we give this property 6 / 10. *Disclaimer: This is our option and does constitute a recommendation or financial advice. Do your own research. *
- Price
- 8
- Condition
- 7
- Location
- 8
- Land
- 1
- Bedrooms
- 0
- Bathrooms
- 0
- Sqft (est)
- 791.58
The heatmap indicates the level of crime in the area. The color of the heatmap indicates the crime severity and recency.
Metrics Year-on-Year
- Average area value
- 1,614,130.00 £Decreased by 28.76 %
- Est sale value
- 1,468,380.90 £Increased by 46.41 %
- Average area rental value
- 2,563.00 £/moDecreased by 18.89 %
- Est letting value
- 1,583.16 £/moIncreased by 100.00 %
- Est rental Yield
- 1.91 %Increased by 14.37 %
- Crime Rate
- 3.00 %Unchanged by 0.00 %
from 2,265,638.00 £
from 1,002,931.86 £
from 3,160.00 £/mo
from 791.58 £/mo
from 1.67 %
from 3.00 %
Agent Activity
Pomp Properties created the listing.
Nearby Schools
| Name | Type | Ofsted | Distance |
|---|---|---|---|
| The Cardinal Vaughan Memorial Rc School | Academy Converter | 0.29 KM | |
| Masbro Childrens Centre | Children's Centre | 0.33 KM | |
| St Mary'S Catholic Primary School | Voluntary Aided School | Good | 0.44 KM |
| Norland Place School | Other Independent School | 0.51 KM | |
| Sial | Other Independent School | Good | 0.54 KM |
Images
Nearby Streets
| Name | Average Price | Average Sqft | Distance |
|---|---|---|---|
| Sinclair Road | £ 0 | 0 | 0.00 KM |
| Royal Crescent | £ 895,000 | 0 | 0.00 KM |
| Sinclair Road | £ 0 | 0 | 0.00 KM |
| Holland Gardens | £ 0 | 0 | 0.00 KM |
| Norland Road | £ 0 | 0 | 0.00 KM |
Nearby Transport
| Name | NLC | TLC | Distance |
|---|---|---|---|
| Kensington (Olympia) | 3092 | KPA | 0.56 KM |
| Shepherd'S Bush | 9587 | SPB | 0.60 KM |
| West Brompton | 8875 | WBP | 2.57 KM |
| Kensal Green | 1447 | KNL | 3.44 KM |
| Queens Park (London) | 1419 | QPW | 3.69 KM |
Nearby Listings
| Address | Price | Type | Score | Distance |
|---|---|---|---|---|
| Elsham Road, London, W14 | £ 785,000 | BUY | 7 / 10 | 0.00 KM |
| Elsham Road | £ 730,000 | BUY | 6 / 10 | 0.00 KM |
| Elsham Road, London, W14 | £ 800,000 | BUY | Unknown | 0.00 KM |
| Elsham Road, Holland Park | £ 1,400,000 | BUY | Unknown | 0.00 KM |
| Elsham Road, Kensington, London, W14 | £ 895,000 | BUY | 7 / 10 | 0.00 KM |
Nearby Properties
| Address | Price | Distance |
|---|---|---|
| 33a Elsham Road | £ 767,500 | 0.00 KM |
| 41a Elsham Road | £ 600,000 | 0.00 KM |
| 41e Elsham Road | £ 250,000 | 0.00 KM |
| 34d Elsham Road | £ 410,000 | 0.01 KM |
| 39 Elsham Road | £ 4,000,000 | 0.01 KM |