Churchill Avenue, Aldershot, Hampshire, GU12
By Bridges Estate Agents
£ 525,000
Reviews
3 out of 5 stars
Bridges Estate Agents says ..
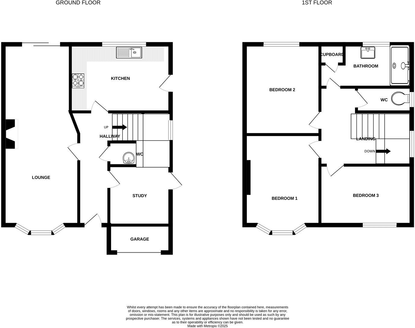
A semi-detached family home positioned in one of Aldershot's most sought after locations. The home is set over two floors and with internal accommodation presented in good order throughout. The property benefits from three bedrooms and two reception rooms - alongside a garage that has been conver...
Property Oracle says ..
This three-bedroom, two-bathroom house located on Churchill Avenue in Aldershot, Hampshire is presented for sale at £525,000. The property appears well-maintained and benefits from a convenient location close to Aldershot train station and several schools. The interior photos depict comfortable and livable spaces, though some aspects such as the kitchen may benefit from updating. The garden is of average size with a patio area. The property’s proximity to Manor Park, a conservation area, suggests a desirable location. However, a precise assessment of the property’s value requires clarification on the actual property’s total square footage, as this crucial detail is missing from the provided data, and the average price per square foot cannot be reliably established. Additionally, there’s no information on the property’s energy efficiency rating or other critical features (garage, off-street parking etc.). which would influence the overall value. Given the data provided, this property appears reasonably priced in the context of similar homes in the immediate vicinity on Churchill Avenue, although a more detailed analysis is needed to provide a complete valuation.
Therefore, we give this property 6 / 10. *Disclaimer: This is our option and does constitute a recommendation or financial advice. Do your own research. *
- Price
- 7
- Condition
- 6
- Location
- 7
- Land
- 4
- Bedrooms
- 3
- Bathrooms
- 2
- Sqft (est)
- 1,000.00
The heatmap indicates the level of crime in the area. The color of the heatmap indicates the crime severity and recency.
Metrics Year-on-Year
- Average area value
- 383,000.00 £Increased by 11.30 %
- Est sale value
- 519,000.00 £Increased by 48.29 %
- Average area rental value
- 1,425.00 £/moDecreased by 0.90 %
- Est letting value
- 1,000.00 £/moUnchanged by 0.00 %
- Est rental Yield
- 4.46 %Decreased by 10.98 %
- Crime Rate
- 5.00 %Unchanged by 0.00 %
Agent Activity
Bridges Estate Agents created the listing.
Nearby Schools
| Name | Type | Ofsted | Distance |
|---|---|---|---|
| St Michael'S Church Of England Controlled Junior School | Voluntary Controlled School | Requires improvement | 0.25 KM |
| St Michael'S Church Of England Controlled Infant School | Voluntary Controlled School | Outstanding | 0.50 KM |
| Park Primary School | Community School | Good | 0.66 KM |
| Sunflowers Children'S Centre | Children's Centre Linked Site | 0.72 KM | |
| Alderwood School | Community School | Good | 1.22 KM |
Images
Nearby Streets
| Name | Average Price | Average Sqft | Distance |
|---|---|---|---|
| Churchill Avenue | £ 566,667 | 0 | 0.00 KM |
| Church Hill | £ 90,000 | 0 | 0.00 KM |
| Newport Road | £ 307,778 | 0 | 0.00 KM |
| Church Road | £ 395,000 | 0 | 0.00 KM |
| Orchard Way | £ 400,000 | 0 | 0.00 KM |
Nearby Transport
| Name | NLC | TLC | Distance |
|---|---|---|---|
| Aldershot | 5623 | AHT | 0.92 KM |
| North Camp | 5636 | NCM | 4.48 KM |
| Ash | 5641 | ASH | 4.52 KM |
| Ash Vale | 5547 | AHV | 4.84 KM |
| Farnham | 5545 | FNH | 5.50 KM |
Nearby Listings
| Address | Price | Type | Score | Distance |
|---|---|---|---|---|
| Churchill Avenue, Aldershot, Hampshire, GU12 | £ 525,000 | BUY | 6 / 10 | 0.00 KM |
| Church Hill, Aldershot | £ 375,000 | BUY | 6 / 10 | 0.10 KM |
| Church Hill, Aldershot, Hampshire | £ 475,000 | BUY | 7 / 10 | 0.11 KM |
| Elston Road, Aldershot, Hampshire, GU12 | £ 425,000 | BUY | Unknown | 0.12 KM |
| Church Lane East, Aldershot, Hampshire, GU11 | £ 220,000 | BUY | 6 / 10 | 0.13 KM |
Nearby Properties
| Address | Price | Distance |
|---|---|---|
| 17 Churchill Avenue | £ 364,500 | 0.02 KM |
| 21 Churchill Avenue | £ 242,000 | 0.02 KM |
| 22 Churchill Avenue | £ 250,000 | 0.02 KM |
| 11 Churchill Avenue | £ 269,950 | 0.02 KM |
| 5 Churchill Avenue | £ 505,000 | 0.02 KM |