Silverdale Road, Warrington
By Edward Mellor Ltd
£ 260,000
Reviews
3 out of 5 stars
Edward Mellor Ltd says ..
The property forms part of an established and popular residential area and one that provides excellent convenience for the ever varied range of facilities available in both Stockton Heath village and Warrington town centre. Built to a traditional design of brick elevations, the house has been ...
Property Oracle says ..
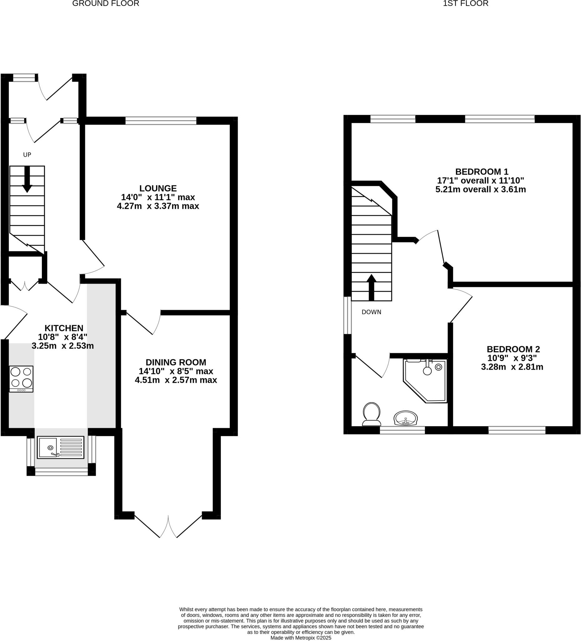
This property is a 3-bedroom semi-detached house located in Latchford West, Warrington. The location benefits from being relatively close to several primary and secondary schools, all with a good Ofsted rating, and is also within reasonable commuting distance of Warrington Bank Quay and Warrington Central train stations. The property itself appears to be in generally good condition, although some of the interior decor and finishes appear dated. The kitchen has been recently updated, however, the rest of the property could benefit from some modernisation. There is a good-sized rear garden with a double garage. The list price of £260,000 is slightly above the average price for the area (£253,150), but considering the property’s size (943 sq ft), the inclusion of a double garage, and its relatively good location, the price seems reasonable. However, it is worth noting that several comparable properties on Silverdale Road have sold for less. A buyer should carefully consider this and obtain a professional valuation before making an offer.
Therefore, we give this property 7 / 10. *Disclaimer: This is our option and does constitute a recommendation or financial advice. Do your own research. *
- Price
- 7
- Condition
- 7
- Location
- 8
- Land
- 7
- Bedrooms
- 3
- Bathrooms
- 1
- Sqft (est)
- 943.24
The heatmap indicates the level of crime in the area. The color of the heatmap indicates the crime severity and recency.
Metrics Year-on-Year
- Average area value
- 183,878.00 £Decreased by 22.92 %
- Est sale value
- 201,853.36 £Decreased by 17.37 %
- Average area rental value
- 1,019.00 £/moIncreased by 15.93 %
- Est letting value
- 943.24 £/mo
- Est rental Yield
- 6.65 %Increased by 50.45 %
- Crime Rate
- 1.00 %Unchanged by 0.00 %
Agent Activity
Edward Mellor Ltd created the listing.
Nearby Schools
| Name | Type | Ofsted | Distance |
|---|---|---|---|
| Latchford St James Cofe Primary School | Voluntary Aided School | Good | 0.95 KM |
| Priestley College | Academy 16-19 Converter | Good | 1.05 KM |
| Stockton Heath Primary School | Community School | Good | 1.10 KM |
| Utc Warrington | University Technical College | Good | 1.74 KM |
| St Thomas' Cofe Primary School | Voluntary Aided School | Good | 2.04 KM |
Images
Nearby Streets
| Name | Average Price | Average Sqft | Distance |
|---|---|---|---|
| Derwent Road | £ 297,000 | 0 | 0.00 KM |
| Rydal Avenue | £ 286,650 | 0 | 0.00 KM |
| Wordsworth Avenue | £ 228,333 | 0 | 0.00 KM |
| Silverdale Road | £ 266,719 | 0 | 0.00 KM |
| Wallis Street | £ 0 | 0 | 0.00 KM |
Nearby Transport
| Name | NLC | TLC | Distance |
|---|---|---|---|
| Warrington Bank Quay | 2384 | WBQ | 1.40 KM |
| Warrington Central | 2390 | WAC | 1.64 KM |
| Padgate | 2387 | PDG | 5.17 KM |
| Warrington West | 6583 | WAW | 5.28 KM |
| Sankey For Penketh | 2388 | SNK | 6.53 KM |
Nearby Listings
| Address | Price | Type | Score | Distance |
|---|---|---|---|---|
| Silverdale Road, Warrington | £ 260,000 | BUY | 7 / 10 | 0.00 KM |
| Silverdale Road WA4 | £ 235,000 | BUY | 6 / 10 | 0.05 KM |
| Silverdale Road, Warrington, WA4 | £ 295,000 | BUY | 6 / 10 | 0.07 KM |
| St John Avenue WA4 | £ 225,000 | BUY | 6 / 10 | 0.13 KM |
| St. John Avenue, Warrington, Cheshire, WA4 | £ 265,000 | BUY | Unknown | 0.13 KM |
Nearby Properties
| Address | Price | Distance |
|---|---|---|
| 76 Silverdale Road | £ 100,000 | 0.04 KM |
| 57 Silverdale Road | £ 120,000 | 0.04 KM |
| 63 Silverdale Road | £ 115,000 | 0.04 KM |
| 72 Silverdale Road | £ 120,000 | 0.04 KM |
| 70 Silverdale Road | £ 175,000 | 0.04 KM |