Wellington Road North, Heaton Norris
By Gascoigne Halman
£ 280,000
Reviews
3 out of 5 stars
Gascoigne Halman says ..
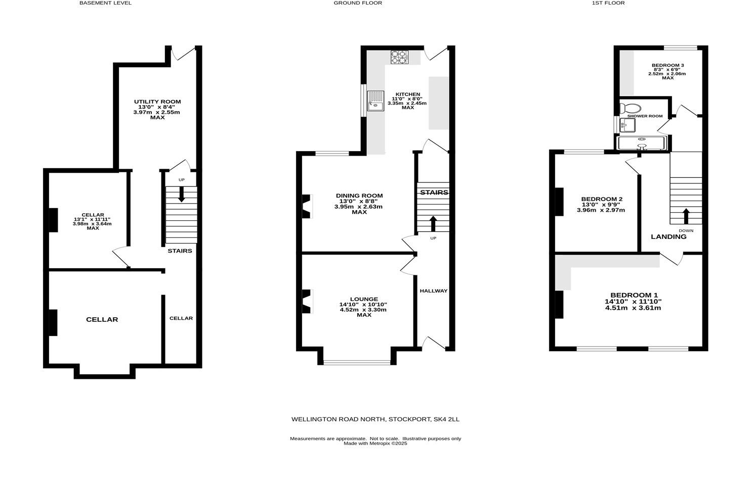
This exquisitely presented three-bedroom mid-terrace family home over three floors is finished to a very high standard, set in a convenient location, close to local amenities, schools and transport links. Viewing Highly recommended to appreciate this fabulous home.
Property Oracle says ..
This three-bedroom terraced property is located on Wellington Road North in Heaton Norris, Stockport. The property benefits from being close to several primary and secondary schools, including All Saints Church of England Primary School (0.20km) and Moat House Primary School (0.61km), both rated as ‘Good’ or ‘Outstanding’ by Ofsted. Several train stations are also within a reasonable distance, providing convenient access to Stockport and Manchester. The property itself appears well-maintained and recently updated, with a modern kitchen and bathroom. While the plot size is small, there is a paved rear yard suitable for outdoor seating. The list price of £280,000 is slightly above the average price for the area (£273,113), but considering the property’s condition and proximity to amenities, it could be considered reasonable. However, a more detailed comparison with similar properties in the area would be needed to fully assess its value.
Therefore, we give this property 6 / 10. *Disclaimer: This is our option and does constitute a recommendation or financial advice. Do your own research. *
- Price
- 7
- Condition
- 8
- Location
- 8
- Land
- 3
- Bedrooms
- 3
- Bathrooms
- 1
- Sqft (est)
- 933.00
The heatmap indicates the level of crime in the area. The color of the heatmap indicates the crime severity and recency.
Metrics Year-on-Year
- Average area value
- 288,000.00 £Decreased by 2.19 %
- Est sale value
- 279,900.00 £Increased by 3.09 %
- Average area rental value
- 1,220.00 £/moIncreased by 10.71 %
- Est letting value
- 933.00 £/moUnchanged by 0.00 %
- Est rental Yield
- 5.08 %Increased by 13.14 %
- Crime Rate
- 0.00 %
Agent Activity
Gascoigne Halman created the listing.
Nearby Schools
| Name | Type | Ofsted | Distance |
|---|---|---|---|
| All Saints Church Of England Primary School Stockport | Voluntary Controlled School | Good | 0.20 KM |
| St Anne'S Roman Catholic High School, A Voluntary Academy | Academy Sponsor Led | 0.50 KM | |
| Moat House | Pupil Referral Unit | Outstanding | 0.61 KM |
| Whitehill Primary School | Community School | Good | 0.85 KM |
| Progress Schools - Stockport | Other Independent School | Good | 0.96 KM |
Images
Nearby Streets
| Name | Average Price | Average Sqft | Distance |
|---|---|---|---|
| Cromwell Street | £ 0 | 0 | 0.00 KM |
| Denbigh Street | £ 165,000 | 0 | 0.00 KM |
| Cheviot Close | £ 187,500 | 0 | 0.00 KM |
| Cotswold Road | £ 365,000 | 0 | 0.00 KM |
| Dublane Avenue | £ 225,000 | 0 | 0.00 KM |
Nearby Transport
| Name | NLC | TLC | Distance |
|---|---|---|---|
| Heaton Chapel | 2861 | HTC | 1.44 KM |
| Stockport | 2771 | SPT | 1.45 KM |
| Reddish South | 2857 | RDS | 2.43 KM |
| Davenport | 2770 | DVN | 3.42 KM |
| Reddish North | 2979 | RDN | 3.91 KM |
Nearby Listings
| Address | Price | Type | Score | Distance |
|---|---|---|---|---|
| Wellington Road North, Heaton Norris | £ 280,000 | BUY | 6 / 10 | 0.00 KM |
| Belmont Street, Stockport, Greater Manchester, SK4 | £ 170,000 | BUY | Unknown | 0.07 KM |
| Cheviot Close, Heaton Norris, Stockport, SK4 | £ 215,000 | BUY | Unknown | 0.09 KM |
| Cotswold Road, Heaton Norris SK4 1JS | £ 235,000 | BUY | 6 / 10 | 0.12 KM |
| Ellen Street, Heaton Norris, Stockport, SK4 | £ 200,000 | BUY | Unknown | 0.13 KM |
Nearby Properties
| Address | Price | Distance |
|---|---|---|
| 142 Wellington Road North | £ 235,000 | 0.03 KM |
| 150 Wellington Road North | £ 157,500 | 0.03 KM |
| 128 Wellington Road North | £ 180,000 | 0.03 KM |
| 146 Wellington Road North | £ 170,000 | 0.03 KM |
| 144 Wellington Road North | £ 164,950 | 0.03 KM |