H J Burt says ..
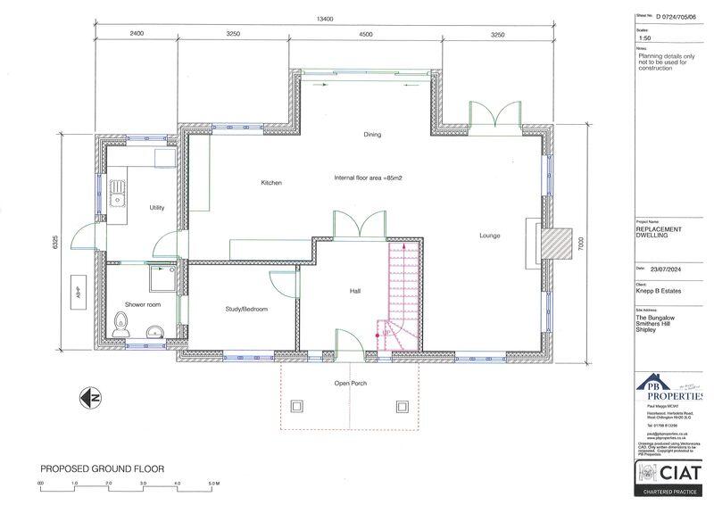
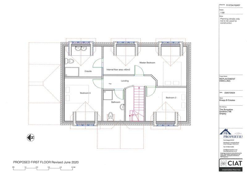
The rarely available self-build rural building plot was recently granted consent (DC/25/1095) for demolition of the existing bungalow and construction of a replacement dwelling with detached carport/storage building and alterations to the vehicle access and set on an overall plot of in excess of ...
Property Oracle says ..
This detached property on Smithers Hill Lane, Shipley, presents a unique opportunity for a buyer looking to undertake a self-build project. While the existing structure requires extensive renovation, the property benefits from a large plot size and a rural location. The listing price reflects the condition of the property, making it an attractive investment for those willing to renovate or rebuild. The surrounding area offers a mix of countryside charm and accessibility to nearby towns, making it a potentially desirable location once the property is improved.
Therefore, we give this property 6 / 10. *Disclaimer: This is our option and does constitute a recommendation or financial advice. Do your own research. *
- Price
- 7
- Condition
- 3
- Location
- 6
- Land
- 9
- Bedrooms
- 4
- Bathrooms
- 3
The heatmap indicates the level of crime in the area. The color of the heatmap indicates the crime severity and recency.
Metrics Year-on-Year
- Average area value
- 511,071.00 £Increased by 4.04 %
- Average area rental value
- 1,750.00 £/moIncreased by 11.96 %
- Est rental Yield
- 4.11 %Increased by 7.59 %
- Crime Rate
- 0.00 %
Agent Activity
H J Burt created the listing.
Nearby Schools
| Name | Type | Ofsted | Distance |
|---|---|---|---|
| Shipley Cofe Primary School | Voluntary Controlled School | Good | 1.16 KM |
| William Penn School | Voluntary Controlled School | Good | 2.60 KM |
| Barns Green Primary School | Community School | Good | 5.47 KM |
| Ashington Cofe Primary School | Voluntary Controlled School | Good | 5.71 KM |
| Muntham House School | Non-maintained Special School | Good | 6.11 KM |
Images
Nearby Streets
| Name | Average Price | Average Sqft | Distance |
|---|---|---|---|
| Jendens Farm | £ 3,900,000 | 0 | 0.00 KM |
| Broomers Corner | £ 0 | 0 | 0.00 KM |
| Green Street | £ 1,250,000 | 0 | 0.00 KM |
| Bakers Lane | £ 500,000 | 0 | 0.00 KM |
Nearby Transport
| Name | NLC | TLC | Distance |
|---|---|---|---|
| Christs Hospital | 5319 | CHH | 7.82 KM |
| Billingshurst | 5464 | BIG | 8.12 KM |
Nearby Listings
| Address | Price | Type | Score | Distance |
|---|---|---|---|---|
| Shipley, Nr. Horsham | £ 500,000 | BUY | 6 / 10 | 0.00 KM |
| Saucelands Lane, Shipley, Horsham, West Sussex, RH13 | £ 3,500,000 | BUY | 7 / 10 | 1.50 KM |
| Saucelands Lane, Shipley, Horsham, West Sussex, RH13 | £ 3,500,000 | BUY | 8 / 10 | 1.50 KM |
| Church Close, Shipley, RH13 | £ 425,000 | BUY | 6 / 10 | 1.68 KM |
| Dragons Lane, Shipley | £ 775,000 | BUY | 7 / 10 | 1.92 KM |
Nearby Properties
| Address | Price | Distance |
|---|---|---|
| Knights Farm | £ 2,100,000 | 0.12 KM |
| Hall Cottage | £ 235,000 | 1.15 KM |
| Carters Cottage | £ 440,000 | 1.15 KM |
| Green Gates | £ 618,500 | 1.58 KM |
| 3 Kings Platt | £ 632,500 | 1.60 KM |