Eric Lloyd & Co says ..
Nestled on the hillside above the picturesque harbour of Brixham this TWO BEDROOM CHARACTER COTTAGE is being offered for sale with NO ONWARD CHAIN. The property boasts brilliant harbour and sea views from all forward facing windows, as well as far reaching sea views from the rear garden. North Vi...
Property Oracle says ..
This two-bedroom terraced cottage in Brixham, Devon, offers stunning harbour and sea views. Its hillside location provides excellent vantage points, showcased beautifully in the provided photographs. The interior reveals a property that is clean and functional, but would likely benefit from some cosmetic enhancements to feel more modern and updated. The kitchen and bathroom, while functional, appear dated compared to modern standards. The small garden is a notable feature, but its limited size and current condition might not appeal to all buyers. The property’s price seems reasonably competitive given its location and views, and its close proximity to multiple schools, however, the lack of explicit square footage on comparable properties limits a definitive valuation.
Therefore, we give this property 6 / 10. *Disclaimer: This is our option and does constitute a recommendation or financial advice. Do your own research. *
- Price
- 7
- Condition
- 6
- Location
- 8
- Land
- 3
- Bedrooms
- 2
- Bathrooms
- 1
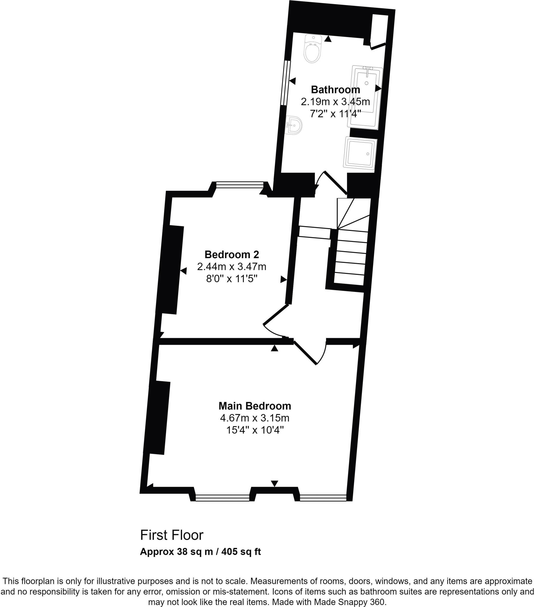
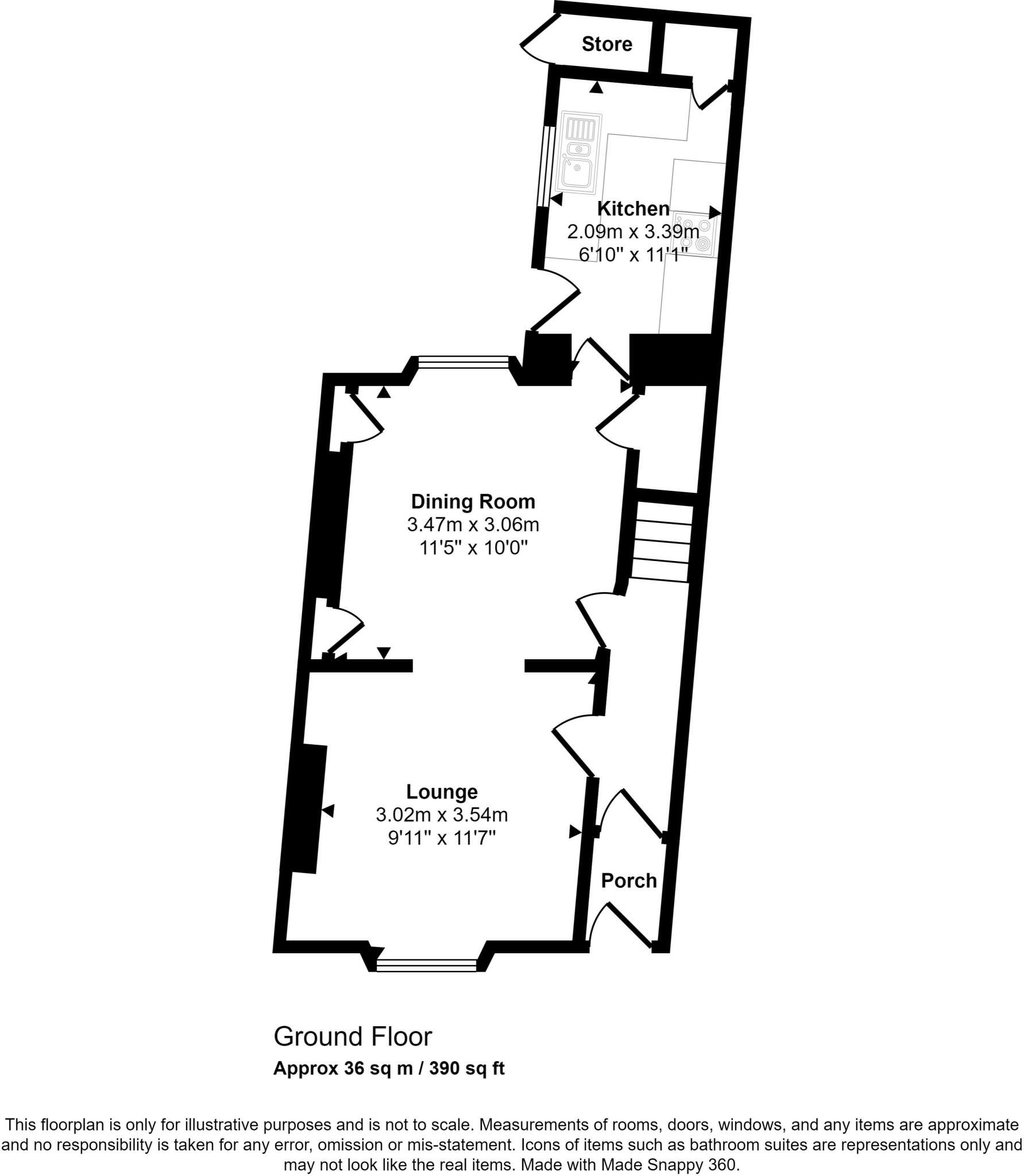
- Sqft (est)
- 390.00
The heatmap indicates the level of crime in the area. The color of the heatmap indicates the crime severity and recency.
Metrics Year-on-Year
- Average area value
- 321,850.00 £Decreased by 11.58 %
- Est sale value
- 124,020.00 £Decreased by 13.59 %
- Average area rental value
- 888.00 £/moIncreased by 0.57 %
- Est letting value
- 0.00 £/mo
- Est rental Yield
- 3.31 %Increased by 13.75 %
- Crime Rate
- 18.00 %Unchanged by 0.00 %
Agent Activity
Eric Lloyd & Co created the listing.
Nearby Schools
| Name | Type | Ofsted | Distance |
|---|---|---|---|
| Brixham College | Academy Converter | Good | 0.44 KM |
| Brixham Church Of England Primary School | Academy Converter | 0.50 KM | |
| Furzeham Primary School | Community School | Good | 0.55 KM |
| Furzeham Children'S Centre | Children's Centre Linked Site | 1.04 KM | |
| Eden Park Primary & Nursery School | Academy Converter | Good | 1.39 KM |
Images
Nearby Streets
| Name | Average Price | Average Sqft | Distance |
|---|---|---|---|
| The Strand | £ 0 | 0 | 0.00 KM |
| Lyte's Road | £ 0 | 0 | 0.00 KM |
| Fern Close | £ 342,500 | 0 | 0.00 KM |
| Cavern Steps | £ 195,000 | 0 | 0.00 KM |
| Furze Lane | £ 285,000 | 0 | 0.00 KM |
Nearby Transport
| Name | NLC | TLC | Distance |
|---|---|---|---|
| Paignton | 3427 | PGN | 7.36 KM |
| Torquay | 3434 | TQY | 8.10 KM |
| Torre | 3432 | TRR | 9.46 KM |
Nearby Listings
| Address | Price | Type | Score | Distance |
|---|---|---|---|---|
| North View Road, Brixham | £ 325,000 | BUY | 6 / 10 | 0.00 KM |
| NORTH VIEW ROAD, BRIXHAM | £ 365,000 | BUY | 5 / 10 | 0.00 KM |
| North View Road, Harbour Area, Brixham | £ 425,000 | BUY | Unknown | 0.02 KM |
| North View Road, Brixham | £ 325,000 | BUY | 6 / 10 | 0.04 KM |
| KING STREET BRIXHAM | £ 315,000 | BUY | Unknown | 0.06 KM |
Nearby Properties
| Address | Price | Distance |
|---|---|---|
| 13 North View Road | £ 210,000 | 0.03 KM |
| 81 North View Road | £ 295,000 | 0.03 KM |
| 1 North View Road | £ 172,000 | 0.03 KM |
| 45 North View Road | £ 265,000 | 0.03 KM |
| 33 North View Road | £ 222,000 | 0.03 KM |