High Street, Totnes, Devon
By Wood's Estate Agents and Auctioneers
£ 495,000
Reviews
2 out of 5 stars
Wood's Estate Agents and Auctioneers says ..
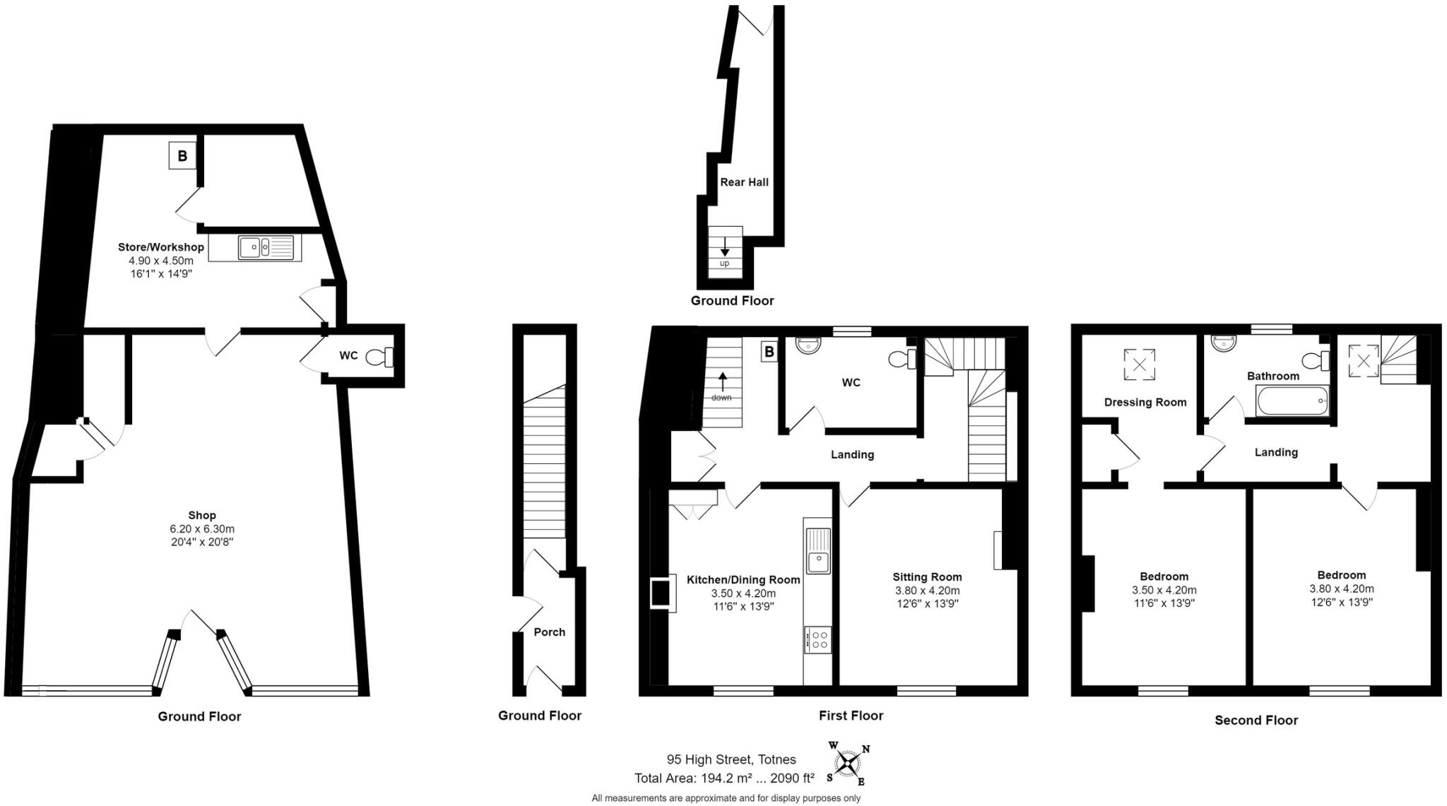
A great opportunity to acquire a Grade II listed mixed use property comprising of shop premises with a spacious two bedroom maisonette over. Offered for sale with no onward chain.
Property Oracle says ..
This property is a two-bedroom maisonette situated on the High Street in Totnes, Devon. Its central location provides easy access to amenities, transportation, and highly-rated schools. The property’s age and features suggest it may be a Grade II listed building, adding historical character. The provided photographs reveal an interior in need of some modernisation; the kitchen and bathrooms appear dated, and the overall aesthetic is somewhat tired. However, the structural integrity of the building seems sound. There is no garden or additional land associated with this property. The absence of information on average square foot pricing in the area makes a definitive judgment on value difficult. Considering the strong location and size, the asking price of £495,000 appears reasonable, though modernization costs should be factored in for prospective buyers. Further investigation of the property’s history and potential rental income could provide more clarity on its overall value. In summary, this property offers a blend of convenience, character, and potential, but requires careful consideration of its condition and associated renovation costs.
Therefore, we give this property 5 / 10. *Disclaimer: This is our option and does constitute a recommendation or financial advice. Do your own research. *
- Price
- 7
- Condition
- 5
- Location
- 8
- Land
- 1
- Bedrooms
- 2
- Bathrooms
- 1
- Sqft (est)
- 2,090.00
The heatmap indicates the level of crime in the area. The color of the heatmap indicates the crime severity and recency.
Metrics Year-on-Year
- Average area value
- 418,833.00 £Increased by 5.75 %
- Est sale value
- 846,450.00 £Increased by 5.47 %
- Average area rental value
- 1,017.00 £/moDecreased by 11.64 %
- Est letting value
- 0.00 £/moDecreased by 100.00 %
- Est rental Yield
- 2.91 %Decreased by 16.62 %
- Crime Rate
- 43.00 %Unchanged by 0.00 %
Agent Activity
Wood's Estate Agents and Auctioneers created the listing.
Nearby Schools
| Name | Type | Ofsted | Distance |
|---|---|---|---|
| The Grove School | Community School | Outstanding | 0.38 KM |
| Totnes Progressive School | Other Independent School | 0.60 KM | |
| King Edward Vi Community College | Foundation School | Good | 0.89 KM |
| On Track Education - Totnes | Other Independent Special School | Good | 1.19 KM |
| Roc College (Part Of United Response) | Special Post 16 Institution | Good | 1.43 KM |
Images
Nearby Streets
| Name | Average Price | Average Sqft | Distance |
|---|---|---|---|
| North Street Mews | £ 325,000 | 0 | 0.00 KM |
| Priory Gardens | £ 0 | 0 | 0.00 KM |
| Heath Court | £ 0 | 0 | 0.00 KM |
| Mansion Way | £ 0 | 0 | 0.00 KM |
| Swallowfields | £ 415,000 | 0 | 0.00 KM |
Nearby Transport
| Name | NLC | TLC | Distance |
|---|---|---|---|
| Totnes | 3558 | TOT | 0.61 KM |
Nearby Listings
| Address | Price | Type | Score | Distance |
|---|---|---|---|---|
| High Street, Totnes, Devon | £ 495,000 | BUY | 5 / 10 | 0.00 KM |
| High Street, Totnes, Devon | £ 795,000 | BUY | 6 / 10 | 0.01 KM |
| 88 High Street, Totnes | £ 260,000 | BUY | 5 / 10 | 0.01 KM |
| Leechwell Street, Totnes, TQ9 | £ 525,000 | BUY | 5 / 10 | 0.03 KM |
| High Street, Totnes | £ 450,000 | BUY | 7 / 10 | 0.03 KM |
Nearby Properties
| Address | Price | Distance |
|---|---|---|
| 74a High Street | £ 466,500 | 0.02 KM |
| 82a High Street | £ 315,000 | 0.02 KM |
| Skittle Cottage | £ 275,000 | 0.04 KM |
| 1 Collins Road | £ 235,000 | 0.04 KM |
| 97a High Street | £ 156,000 | 0.05 KM |