Adams Estates says ..
This recently refurbished 3 bedroom property is conveniently located off Wokingham Rd, giving you easy access to bus routes, local amenities and outstanding local schools.
Property Oracle says ..
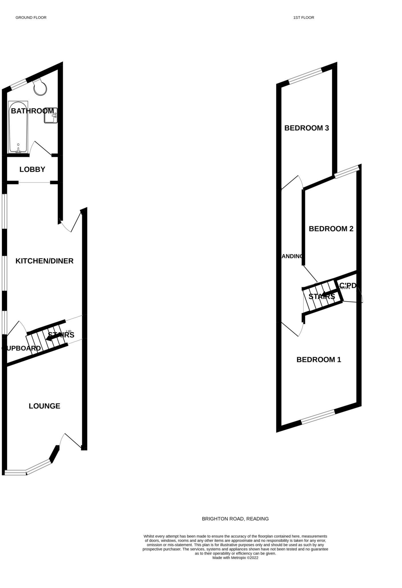
This is a three-bedroom end-of-terrace property located on Brighton Road, Reading. The property appears to be in good condition, with a modern kitchen and bathroom. It is located within a reasonable distance of local schools and transportation links. The asking price of £330,000 is slightly below the average for the street, but is higher than the average price per square foot for the area. Overall, this property presents a solid opportunity for prospective buyers looking for a well-maintained home in a convenient location. The property is being marketed by Adams Estates.
Therefore, we give this property 6 / 10. *Disclaimer: This is our option and does constitute a recommendation or financial advice. Do your own research. *
- Price
- 7
- Condition
- 8
- Location
- 7
- Land
- 4
- Bedrooms
- 3
- Bathrooms
- 1
- Sqft (est)
- 670.34
The heatmap indicates the level of crime in the area. The color of the heatmap indicates the crime severity and recency.
Metrics Year-on-Year
- Average area value
- 339,299.00 £Increased by 1.34 %
- Est sale value
- 244,003.76 £Increased by 25.52 %
- Average area rental value
- 1,364.00 £/moIncreased by 34.92 %
- Est letting value
- 670.34 £/mo
- Est rental Yield
- 4.82 %Increased by 33.15 %
- Crime Rate
- 18.00 %Unchanged by 0.00 %
Agent Activity
Adams Estates created the listing.
Nearby Schools
| Name | Type | Ofsted | Distance |
|---|---|---|---|
| Alfred Sutton Primary School | Community School | Good | 0.35 KM |
| Utc Reading | University Technical College | Outstanding | 0.68 KM |
| Maiden Erlegh School In Reading | Free Schools | Good | 0.68 KM |
| Earley St Peter'S Church Of England Primary School | Academy Converter | Good | 0.81 KM |
| Aldryngton Primary School | Community School | Outstanding | 1.44 KM |
Images
Nearby Streets
| Name | Average Price | Average Sqft | Distance |
|---|---|---|---|
| Grange Avenue | £ 372,500 | 0 | 0.00 KM |
| A3290 | £ 0 | 0 | 0.00 KM |
| Milton Road | £ 0 | 0 | 0.00 KM |
| Oaklands | £ 223,333 | 0 | 0.00 KM |
| Hexham Close | £ 0 | 0 | 0.00 KM |
Nearby Transport
| Name | NLC | TLC | Distance |
|---|---|---|---|
| Earley | 5694 | EAR | 1.99 KM |
| Reading | 3149 | RDG | 4.30 KM |
| Winnersh Triangle | 5698 | WTI | 4.93 KM |
| Reading West | 3160 | RDW | 6.22 KM |
| Winnersh | 5697 | WNS | 6.67 KM |
Nearby Listings
| Address | Price | Type | Score | Distance |
|---|---|---|---|---|
| Brighton Road, Reading | £ 330,000 | BUY | 6 / 10 | 0.00 KM |
| Pitcroft Avenue, Reading | £ 410,000 | BUY | 6 / 10 | 0.04 KM |
| Brighton Road, Reading, Berkshire, RG6 | £ 320,000 | BUY | 6 / 10 | 0.05 KM |
| Pitcroft Avenue, Reading | £ 325,000 | BUY | 6 / 10 | 0.05 KM |
| Pitcroft Avenue, Reading | £ 300,000 | BUY | 7 / 10 | 0.07 KM |
Nearby Properties
| Address | Price | Distance |
|---|---|---|
| 19 Brighton Road | £ 173,000 | 0.00 KM |
| 36 Brighton Road | £ 135,000 | 0.00 KM |
| 45 Brighton Road | £ 225,000 | 0.00 KM |
| 18 Brighton Road | £ 282,500 | 0.00 KM |
| 7 Brighton Road | £ 300,000 | 0.00 KM |