Callum Drive, South Shields
SU

Callum Drive, South Shields

By Susan Spokes Real Estate

£ 360,000

Reviews

3 out of 5 stars

Susan Spokes Real Estate says ..

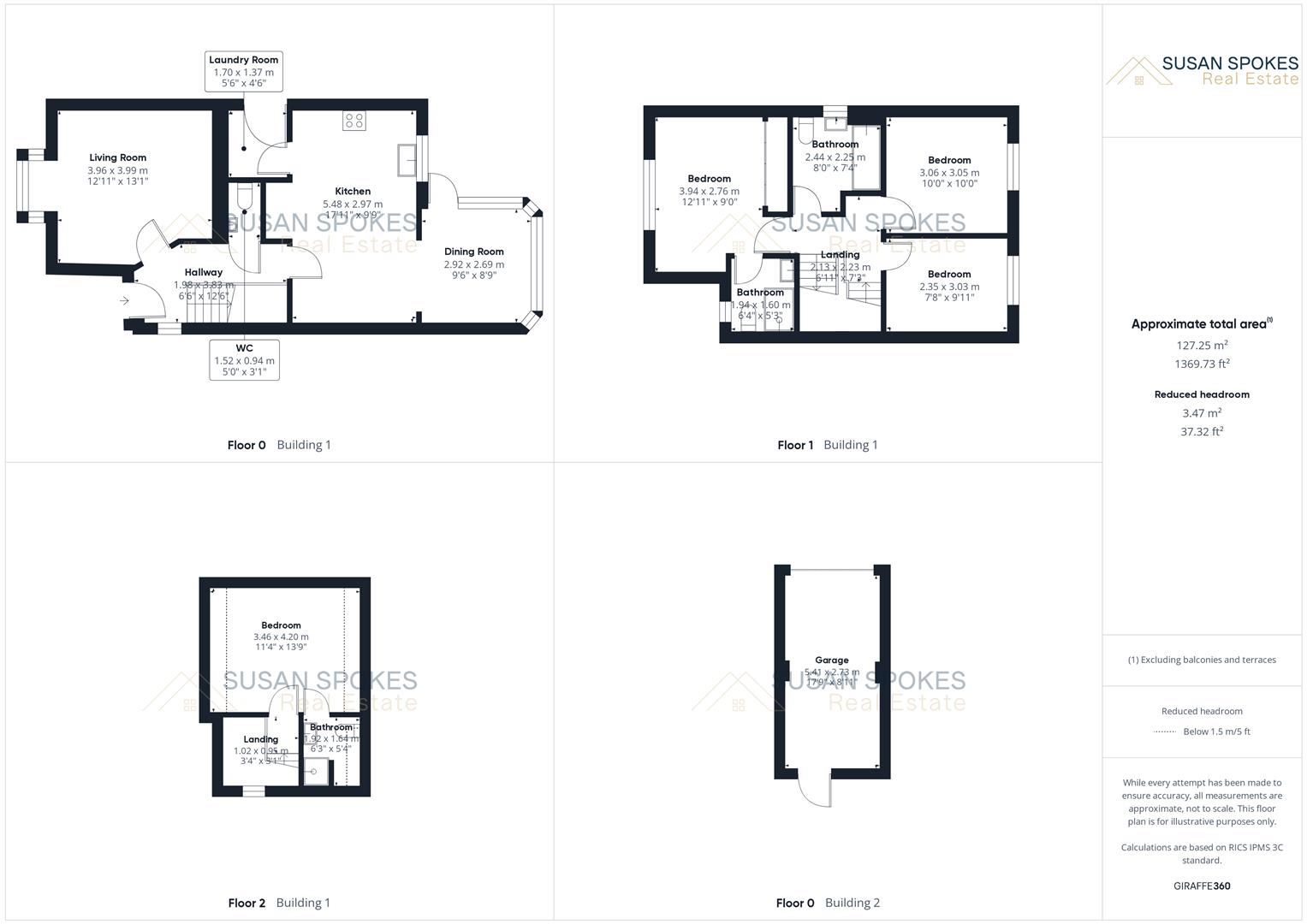
This wonderful detached family home is situated in a highly sought-after residential area. Boasting two reception rooms, a spacious kitchen/diner, and four bedrooms, including three bathrooms, this property offers ample space for modern living. The home is beautifully presented througho...

Property Oracle says ..

Therefore, we give this property 7 / 10. *Disclaimer: This is our option and does constitute a recommendation or financial advice. Do your own research. *

Price
8
Condition
8
Location
7
Land
7
Bedrooms
4
Bathrooms
3
Sqft (est)
1,331.50

The heatmap indicates the level of crime in the area. The color of the heatmap indicates the crime severity and recency.

Metrics Year-on-Year

Average area value
410,714.00 £
Increased by 0.52 %
from 408,604.00 £
Est sale value
559,230.00 £
Increased by 4.48 %
from 535,263.00 £
Average area rental value
1,363.00 £/mo
Decreased by 8.52 %
from 1,490.00 £/mo
Est letting value
1,331.50 £/mo
Unchanged by 0.00 %
from 1,331.50 £/mo
Est rental Yield
3.98 %
Decreased by 9.13 %
from 4.38 %
Crime Rate
2.00 %
Unchanged by 0.00 %
from 2.00 %

Agent Activity

  • Susan Spokes Real Estate created the listing.

Nearby Schools

NameTypeOfstedDistance
St Gregory'S Rc Voluntary Aided Primary SchoolVoluntary Aided SchoolOutstanding0.44 KM
Bamburgh SchoolCommunity Special SchoolGood0.51 KM
Sea View Primary SchoolCommunity SchoolGood0.59 KM
Horsley Hill Children'S CentreChildren's Centre0.62 KM
Harton AcademyAcademy Converter1.08 KM

Images

6c723f85-IMG_2828.jpeg 8e037cc0-IMG_2823.jpeg 78eb1e7f-IMG_2824.jpeg ab28d611-IMG_2822.jpeg bc3e9444-IMG_2831.jpeg CAM01858G0-PR0105-STILL038.jpg CAM01858G0-PR0105-STILL005.jpg CAM01858G0-PR0105-STILL003.jpg CAM01858G0-PR0105-STILL004.jpg CAM01858G0-PR0105-STILL001.jpg CAM01858G0-PR0105-STILL008.jpg CAM01858G0-PR0105-STILL006.jpg CAM01858G0-PR0105-STILL009.jpg CAM01858G0-PR0105-STILL007.jpg CAM01858G0-PR0105-STILL010.jpg CAM01858G0-PR0105-STILL011.jpg CAM01858G0-PR0105-STILL013.jpg CAM01858G0-PR0105-STILL017.jpg CAM01858G0-PR0105-STILL018.jpg CAM01858G0-PR0105-STILL016.jpg CAM01858G0-PR0105-STILL014.jpg CAM01858G0-PR0105-STILL021.jpg CAM01858G0-PR0105-STILL023.jpg CAM01858G0-PR0105-STILL024.jpg CAM01858G0-PR0105-STILL026.jpg CAM01858G0-PR0105-STILL027.jpg CAM01858G0-PR0105-STILL029.jpg CAM01858G0-PR0105-STILL030.jpg CAM01858G0-PR0105-STILL035.jpg CAM01858G0-PR0105-STILL032.jpg CAM01858G0-PR0105-STILL034.jpg CAM01858G0-PR0105-STILL037.jpg

Nearby Streets

NameAverage PriceAverage SqftDistance
Bideford Gardens £ 199,95000.00 KM
Saint Cuthbert's Avenue £ 000.00 KM
Marsden Road £ 224,99800.00 KM
Bulmer Road £ 230,00000.00 KM
Coquet Avenue £ 000.00 KM

Nearby Transport

NameNLCTLCDistance
Sunderland7640SUN9.27 KM

Nearby Listings

AddressPriceTypeScoreDistance
Callum Drive, South Shields £ 360,000BUY7 / 100.00 KM
Callum Drive, South Shields £ 349,995BUY6 / 100.00 KM
Callum Drive, South Shields £ 368,500BUYUnknown0.02 KM
Callum Drive, South Shields £ 550,000BUYUnknown0.06 KM
Callum Drive, South Shields £ 349,950BUYUnknown0.08 KM

Nearby Properties

AddressPriceDistance
2 Callum Drive £ 127,0000.01 KM
21 Callum Drive £ 250,0000.01 KM
27 Callum Drive £ 320,0000.01 KM
9 Callum Drive £ 140,0000.01 KM
3 Callum Drive £ 230,0000.01 KM