MADE says ..
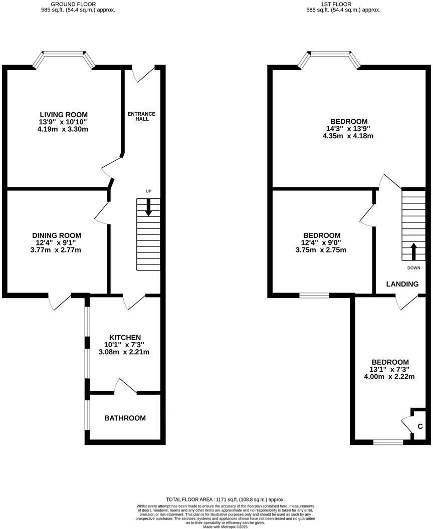
A bright and spacious three bedroom VICTORIAN HOUSE occupying a sought after location on the West Hill within immediate reach of a local shop and Ore railway station. Hastings Old Town and Hastings Town centre are equidistant offering additional shopping and leisure facilities along with access t...
Property Oracle says ..
Therefore, we give this property 6 / 10. *Disclaimer: This is our option and does constitute a recommendation or financial advice. Do your own research. *
- Price
- 5
- Condition
- 7
- Location
- 7
- Land
- 6
- Bedrooms
- 3
- Bathrooms
- 1
- Sqft (est)
- 736.81
The heatmap indicates the level of crime in the area. The color of the heatmap indicates the crime severity and recency.
Metrics Year-on-Year
- Average area value
- 277,222.00 £Decreased by 5.45 %
- Est sale value
- 260,093.93 £Increased by 23.00 %
- Average area rental value
- 750.00 £/moDecreased by 40.00 %
- Est letting value
- 0.00 £/moDecreased by 100.00 %
- Est rental Yield
- 3.25 %Decreased by 36.52 %
- Crime Rate
- 12.00 %Unchanged by 0.00 %
from 293,190.00 £
from 211,464.47 £
from 1,250.00 £/mo
from 736.81 £/mo
from 5.12 %
from 12.00 %
Agent Activity
MADE created the listing.
Nearby Schools
| Name | Type | Ofsted | Distance |
|---|---|---|---|
| Ark Castledown Primary Academy | Academy Sponsor Led | 0.30 KM | |
| The Flagship School | Free Schools Special | 0.37 KM | |
| The Baird Primary Academy | Academy Sponsor Led | Good | 0.49 KM |
| Torfield School | Academy Special Converter | Outstanding | 0.53 KM |
| Hastings Town Children'S Centre | Children's Centre | 0.69 KM |
Images
Nearby Streets
| Name | Average Price | Average Sqft | Distance |
|---|---|---|---|
| Saint George's Road | £ 0 | 0 | 0.00 KM |
| St George's Road | £ 0 | 0 | 0.00 KM |
| St Mary's Road | £ 0 | 0 | 0.00 KM |
| St James's Road | £ 0 | 0 | 0.00 KM |
| St Mary's Terrace | £ 0 | 0 | 0.00 KM |
Nearby Transport
| Name | NLC | TLC | Distance |
|---|---|---|---|
| Ore | 5021 | ORE | 0.43 KM |
| Hastings | 5219 | HGS | 1.53 KM |
| St Leonards Warrior Square | 5239 | SLQ | 3.33 KM |
| Three Oaks | 5028 | TOK | 4.91 KM |
| West St Leonards | 5242 | WLD | 5.58 KM |
Nearby Listings
| Address | Price | Type | Score | Distance |
|---|---|---|---|---|
| St. Georges Road, Hastings | £ 285,000 | BUY | 6 / 10 | 0.00 KM |
| St. Georges Road, Hastings | £ 280,000 | BUY | 6 / 10 | 0.00 KM |
| St. Georges Road, Hastings | £ 280,000 | BUY | 6 / 10 | 0.00 KM |
| St. Georges Road, Hastings | £ 250,000 | BUY | 7 / 10 | 0.02 KM |
| St Georges Road, Hastings | £ 239,950 | BUY | 4 / 10 | 0.03 KM |
Nearby Properties
| Address | Price | Distance |
|---|---|---|
| 75 St Georges Road | £ 337,500 | 0.04 KM |
| 35 St Georges Road | £ 52,000 | 0.04 KM |
| 5b St Georges Road | £ 80,000 | 0.04 KM |
| 15b St Georges Road | £ 92,500 | 0.04 KM |
| 36 St Georges Road | £ 315,000 | 0.05 KM |