Holt Way, Hook, Hampshire, RG27
By Mackenzie Smith
£ 720,000
Reviews
3 out of 5 stars
Mackenzie Smith says ..
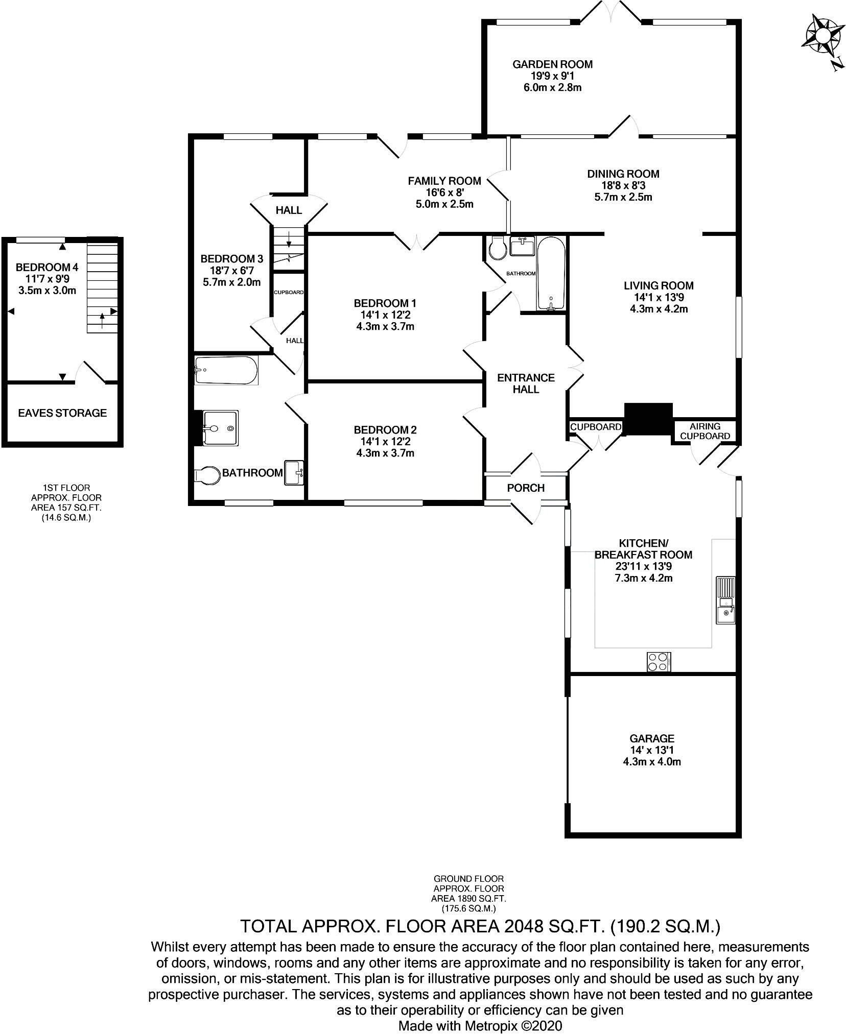
A refurbished detached bungalow located in a quiet cul de sac with no onward chain. The layout of the accommodation offers a flexible set up which will suit a number of different requirements. Complimented by a South facing garden, large driveway and a double garage.
Property Oracle says ..
This is a four-bedroom bungalow in Hook, Hampshire. The property has been recently renovated and is in good condition. It benefits from a modern kitchen and bathrooms, a good-sized garden, and convenient access to local schools and transportation links. While the interior is modern, the exterior could use some cosmetic improvements. The asking price of £720,000 appears to be high compared to similar properties in the area.
Therefore, we give this property 6 / 10. *Disclaimer: This is our option and does constitute a recommendation or financial advice. Do your own research. *
- Price
- 4
- Condition
- 8
- Location
- 7
- Land
- 7
- Bedrooms
- 4
- Bathrooms
- 2
- Sqft (est)
- 165.67
The heatmap indicates the level of crime in the area. The color of the heatmap indicates the crime severity and recency.
Metrics Year-on-Year
- Average area value
- 309,833.00 £Decreased by 41.90 %
- Est sale value
- 80,681.29 £Increased by 35.28 %
- Average area rental value
- 1,358.00 £/moDecreased by 12.33 %
- Est letting value
- 331.34 £/moIncreased by 100.00 %
- Est rental Yield
- 5.26 %Increased by 50.72 %
- Crime Rate
- 16.00 %Unchanged by 0.00 %
Agent Activity
Mackenzie Smith created the listing.
Nearby Schools
| Name | Type | Ofsted | Distance |
|---|---|---|---|
| Hook Infant School | Community School | Outstanding | 1.00 KM |
| Hook Junior School | Community School | Outstanding | 1.00 KM |
| Robert May'S School | Academy Converter | Good | 3.60 KM |
| Whitewater Church Of England Primary School | Voluntary Controlled School | Requires improvement | 3.76 KM |
| Wisteria Children'S Centre | Children's Centre Linked Site | 3.76 KM |
Images
Nearby Streets
| Name | Average Price | Average Sqft | Distance |
|---|---|---|---|
| Whitewater Rise | £ 575,000 | 0 | 0.00 KM |
| Redes Close | £ 835,000 | 0 | 0.00 KM |
| Postchaise Close | £ 0 | 0 | 0.00 KM |
| St Johns Close | £ 0 | 0 | 0.00 KM |
| The Orchard | £ 0 | 0 | 0.00 KM |
Nearby Transport
| Name | NLC | TLC | Distance |
|---|---|---|---|
| Hook | 5523 | HOK | 1.45 KM |
| Winchfield | 5528 | WNF | 4.72 KM |
Nearby Listings
| Address | Price | Type | Score | Distance |
|---|---|---|---|---|
| Holt Way, Hook, Hampshire, RG27 | £ 720,000 | BUY | 6 / 10 | 0.00 KM |
| Coltsfoot Place, Hook, Hampshire, RG27 | £ 365,000 | BUY | 7 / 10 | 0.06 KM |
| Coltsfoot Place, Hook, Hampshire, RG27 | £ 375,000 | BUY | 6 / 10 | 0.06 KM |
| Rosebay Gardens, Hook, Hampshire, RG27 | £ 400,000 | BUY | 6 / 10 | 0.13 KM |
| Rosebay Gardens, Hook, Hampshire, RG27 | £ 325,000 | BUY | 6 / 10 | 0.13 KM |
Nearby Properties
| Address | Price | Distance |
|---|---|---|
| 14 Coltsfoot Place | £ 198,000 | 0.05 KM |
| 9 Coltsfoot Place | £ 164,950 | 0.05 KM |
| 18 Coltsfoot Place | £ 300,000 | 0.05 KM |
| 15 Coltsfoot Place | £ 332,500 | 0.06 KM |
| 19 Coltsfoot Place | £ 292,500 | 0.06 KM |