MA
Green Lane, South Chailey, BN8
By Mansell McTaggart
£ 550,000
Reviews
3 out of 5 stars
Mansell McTaggart says ..
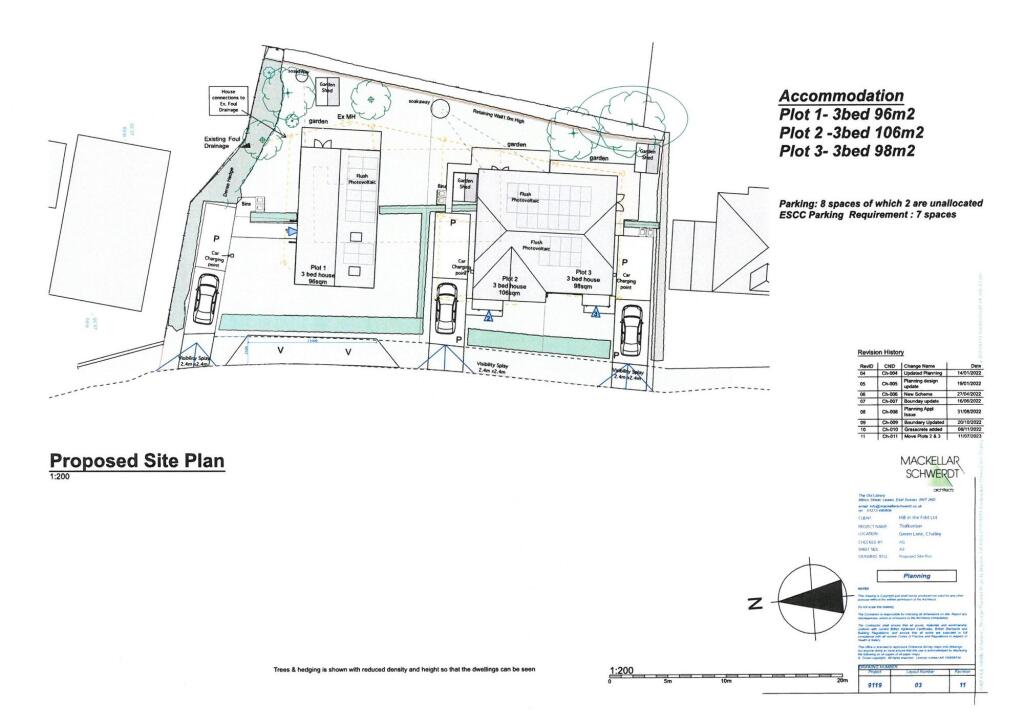
Planning permission for demolition of existing dwelling and the erection of 3 three bedroom dwellings (one detached & 2 semi-detached properties) by Lewes District Council Ref LW/22/0593 & LW 23/0413
Property Oracle says ..
Therefore, we give this property 6 / 10. *Disclaimer: This is our option and does constitute a recommendation or financial advice. Do your own research. *
- Price
- 7
- Condition
- 3
- Location
- 7
- Land
- 8
- Bedrooms
- 3
- Bathrooms
- 1
The heatmap indicates the level of crime in the area. The color of the heatmap indicates the crime severity and recency.
Metrics Year-on-Year
- Average area value
- 754,167.00 £Increased by 18.59 %
- Average area rental value
- 4,125.00 £/moIncreased by 119.41 %
- Est rental Yield
- 6.56 %Increased by 84.79 %
- Crime Rate
- 96.00 %Unchanged by 0.00 %
from 635,945.00 £
from 1,880.00 £/mo
from 3.55 %
from 96.00 %
Agent Activity
Mansell McTaggart created the listing.
Nearby Schools
| Name | Type | Ofsted | Distance |
|---|---|---|---|
| Chailey School | Community School | Good | 1.16 KM |
| Chailey St Peter'S Church Of England Primary School | Voluntary Controlled School | Good | 1.47 KM |
| Chailey Heritage School | Non-maintained Special School | Outstanding | 3.14 KM |
| Newick Church Of England Primary School | Voluntary Controlled School | Outstanding | 4.44 KM |
| Plumpton Primary School | Community School | Good | 4.67 KM |
Images
Nearby Streets
| Name | Average Price | Average Sqft | Distance |
|---|---|---|---|
| St. James Walk | £ 0 | 0 | 0.00 KM |
| Swan Close | £ 0 | 0 | 0.00 KM |
Nearby Transport
| Name | NLC | TLC | Distance |
|---|---|---|---|
| Cooksbridge | 5336 | CBR | 4.86 KM |
| Plumpton | 5332 | PMP | 4.95 KM |
| Lewes | 5329 | LWS | 9.07 KM |
Nearby Listings
| Address | Price | Type | Score | Distance |
|---|---|---|---|---|
| Green Lane, South Chailey, BN8 | £ 550,000 | BUY | 6 / 10 | 0.00 KM |
| Green Lane, South Chailey, BN8 | £ 500,000 | BUY | 7 / 10 | 0.05 KM |
| Green Lane, South Chailey, BN8 | £ 725,000 | BUY | 7 / 10 | 0.05 KM |
| Green Lane, South Chailey, BN8 | £ 950,000 | BUY | 7 / 10 | 0.09 KM |
| Green Lane, South Chailey, BN8 | £ 500,000 | BUY | Unknown | 0.13 KM |
Nearby Properties
| Address | Price | Distance |
|---|---|---|
| Linnets | £ 275,000 | 0.05 KM |
| Twiggs | £ 425,000 | 0.05 KM |
| Two Willows | £ 327,500 | 0.05 KM |
| Toad Hall | £ 580,000 | 0.05 KM |
| 10 Green Lane | £ 195,000 | 0.05 KM |