GRANGE ROAD, MIDDLESBROUGH
By Progression Property
£ 475,000
Reviews
1 out of 5 stars
Progression Property says ..
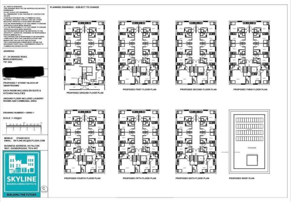
A PRIME TOWN CENTRE DEVELOPMENT OPPORTUNITY WHICH IS LOCATED INSIDE THE 'MIDDLESBROUGH DEVELOPMENT COPRPORATION' ZONE. POSITIONED WITHIN A FAVOURABLE SPOT FOR STUDENT ACCOMMODATION DUE TO ITS CLOSE ACCESS TO LINTHORPE ROAD AND BOROUGH ROAD, AS WELL AS BEING EQUALLY AS CONVENIENTLY POSITIONED FOR ...
Property Oracle says ..
The property is located on Grange Road in Middlesbrough, a central location. Proximity to Teesside University (0.58km) and several primary schools (Newport Primary, Ayresome Primary, Abingdon Primary) suggests good access to education. Middlesbrough train station is also within close proximity (0.70km), providing convenient transport links. This contributes to a positive location score. The provided images reveal the property to be in need of significant renovation. The interior shots showcase exposed flooring, damaged walls, and a general lack of fixtures and fittings. The exterior, while structurally sound, appears dated and requires modernisation. This significantly impacts the condition score. The lack of a garden further affects the overall assessment. The list price of £475,000 is considerably higher than the average house price in the area (£259,400). Considering the property’s condition and the need for extensive renovation, the price appears high. While the absence of square footage data prevents a precise price-per-square-foot comparison, the significant price difference relative to comparable properties in the area suggests it may not represent good value for money. Nearby properties show a wide range of prices, but none approach the list price of this property in its current state.
Therefore, we give this property 3 / 10. *Disclaimer: This is our option and does constitute a recommendation or financial advice. Do your own research. *
- Price
- 3
- Condition
- 3
- Location
- 7
- Land
- 1
- Bedrooms
- 0
- Bathrooms
- 0
The heatmap indicates the level of crime in the area. The color of the heatmap indicates the crime severity and recency.
Metrics Year-on-Year
- Average area value
- 487,124.00 £Increased by 94.35 %
- Average area rental value
- 1,220.00 £/moIncreased by 6.46 %
- Est rental Yield
- 3.01 %Decreased by 45.17 %
- Crime Rate
- 33.00 %Unchanged by 0.00 %
Agent Activity
Progression Property created the listing.
Nearby Schools
| Name | Type | Ofsted | Distance |
|---|---|---|---|
| Teesside University | Higher Education Institutions | Outstanding | 0.58 KM |
| Newport Primary School | Foundation School | Good | 0.94 KM |
| Ayresome Primary School | Academy Sponsor Led | 0.96 KM | |
| Abingdon Children'S Centre | Children's Centre | 1.26 KM | |
| Abingdon Primary School | Foundation School | Good | 1.28 KM |
Images
Nearby Streets
| Name | Average Price | Average Sqft | Distance |
|---|---|---|---|
| Borough Road | £ 390,000 | 0 | 0.00 KM |
| Davison Street | £ 0 | 0 | 0.00 KM |
| Johnson Street | £ 0 | 0 | 0.00 KM |
| Newport Road | £ 0 | 0 | 0.00 KM |
| Bolckow Street | £ 0 | 0 | 0.00 KM |
Nearby Transport
| Name | NLC | TLC | Distance |
|---|---|---|---|
| Middlesbrough | 7929 | MBR | 0.70 KM |
| James Cook University Hospital | 9507 | JCH | 4.22 KM |
| Marton | 7947 | MTO | 5.63 KM |
| Billingham | 7910 | BIL | 5.65 KM |
| South Bank | 7953 | SBK | 6.99 KM |
Nearby Listings
| Address | Price | Type | Score | Distance |
|---|---|---|---|---|
| GRANGE ROAD, MIDDLESBROUGH | £ 475,000 | BUY | 3 / 10 | 0.00 KM |
| GRANGE ROAD, MIDDLESBROUGH | £ 975,000 | BUY | 3 / 10 | 0.05 KM |
| GRANGE ROAD, MIDDLESBROUGH | £ 450,000 | BUY | 4 / 10 | 0.05 KM |
| GRANGE ROAD, MIDDLESBROUGH | £ 495,000 | BUY | 3 / 10 | 0.07 KM |
| Borough Road, Middlesbrough | £ 280,000 | BUY | 6 / 10 | 0.16 KM |
Nearby Properties
| Address | Price | Distance |
|---|---|---|
| 74 St Aidans Drive | £ 60,000 | 0.10 KM |
| 59 St Aidans Drive | £ 47,500 | 0.10 KM |
| 34 - 36 Borough Road | £ 375,000 | 0.17 KM |
| 47 Borough Road | £ 50,000 | 0.20 KM |
| 6a Borough Road | £ 50,000 | 0.20 KM |