Irlams says ..
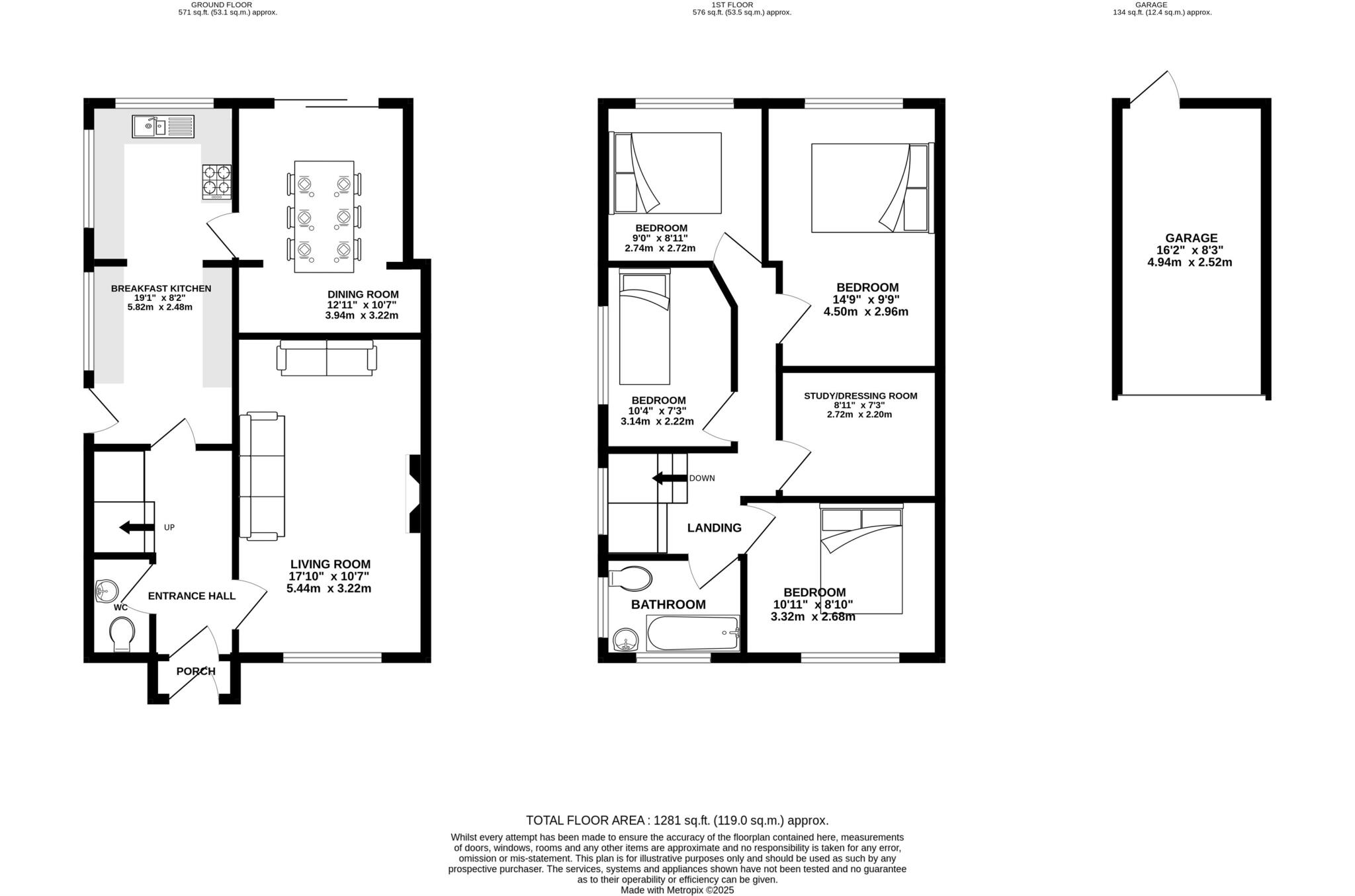
No Chain. A deceptively spacious and extended, four bedroom semi-detached family home enjoying an envious position at the head of a quiet crescent. The property is located within walking distance of Knutsford Town Centre and benefits from large enclosed rear garden and detached garage complete wi...
Property Oracle says ..
This is a four-bedroom semi-detached property located in Knutsford, Cheshire. The property appears to be in generally good condition, although the kitchen could benefit from modernisation. It features a large garden with mature trees and a shed. The property is conveniently located near local schools and transportation links. The listing price is higher than the average price per square foot for the area.
Therefore, we give this property 7 / 10. *Disclaimer: This is our option and does constitute a recommendation or financial advice. Do your own research. *
- Price
- 6
- Condition
- 7
- Location
- 7
- Land
- 8
- Bedrooms
- 4
- Bathrooms
- 1
- Sqft (est)
- 345.84
The heatmap indicates the level of crime in the area. The color of the heatmap indicates the crime severity and recency.
Metrics Year-on-Year
- Average area value
- 678,106.00 £Increased by 15.18 %
- Est sale value
- 202,662.24 £Increased by 35.96 %
- Average area rental value
- 1,651.00 £/moDecreased by 17.16 %
- Est letting value
- 345.84 £/moUnchanged by 0.00 %
- Est rental Yield
- 2.92 %Decreased by 28.08 %
- Crime Rate
- 9.00 %Unchanged by 0.00 %
Agent Activity
Irlams created the listing.
Nearby Schools
| Name | Type | Ofsted | Distance |
|---|---|---|---|
| St Vincent'S Catholic Primary School | Voluntary Aided School | Good | 0.33 KM |
| Knutsford Children'S Centre | Children's Centre | 0.46 KM | |
| Manor Park Primary School And Nursery | Academy Converter | 0.49 KM | |
| Adelaide Heath Academy | Academy Special Sponsor Led | 1.24 KM | |
| Egerton Primary School | Academy Converter | 1.53 KM |
Images
Nearby Streets
| Name | Average Price | Average Sqft | Distance |
|---|---|---|---|
| Richmond Hill | £ 575,000 | 0 | 0.00 KM |
| Warwick Close | £ 0 | 0 | 0.00 KM |
| Hollow Lane | £ 235,000 | 0 | 0.00 KM |
| Beechwood | £ 0 | 0 | 0.00 KM |
| Brook Lane | £ 0 | 0 | 0.00 KM |
Nearby Transport
| Name | NLC | TLC | Distance |
|---|---|---|---|
| Knutsford | 2848 | KNF | 1.01 KM |
| Mobberley | 2849 | MOB | 4.40 KM |
| Ashley | 2850 | ASY | 6.42 KM |
| Plumley | 2308 | PLM | 7.00 KM |
| Hale (Manchester) | 2845 | HAL | 8.70 KM |
Nearby Listings
| Address | Price | Type | Score | Distance |
|---|---|---|---|---|
| Sharston Crescent, Knutsford | £ 470,000 | BUY | 7 / 10 | 0.00 KM |
| Manor Park South, Knutsford | £ 325,000 | BUY | 5 / 10 | 0.06 KM |
| Sharston Crescent, Knutsford, Cheshire, WA16 | £ 360,000 | BUY | 7 / 10 | 0.13 KM |
| Sharston Crescent, Knutsford, Cheshire, WA16 | £ 550,000 | BUY | 6 / 10 | 0.13 KM |
| Woodside, Knutsford | £ 550,000 | BUY | Unknown | 0.23 KM |
Nearby Properties
| Address | Price | Distance |
|---|---|---|
| Morven | £ 880,000 | 0.08 KM |
| 22 Woodside | £ 353,000 | 0.11 KM |
| 19 Woodside | £ 285,000 | 0.11 KM |
| 13 Woodside | £ 320,000 | 0.11 KM |
| 11 Woodside | £ 467,500 | 0.11 KM |